陕西文化艺术博物院 | 麟和建筑 | 2024 | 中国陕西



陕西文化艺术博物院项目位于西安西咸新区,东临西三环,西依阿房宫遗址,规划用地面积9.4万平方米,总建筑面积13.5万平方米,主要包括演艺剧院、丝路艺术馆及综合文化配套设施。项目一期为演艺剧院,整体长220米、宽66米,建筑面积3.2万平方米,常态化上演史诗幻境演出“赳赳大秦”,汇聚建筑设计、文化创意、编剧舞美、智能技术等团队,打造西安创新文化地标,列入陕西省“十四五”重大文旅项目、陕西省重大文化产业项目等,以“文化+科技+旅游”创新模式带动区域整体与文旅产业升级。项目投入使用后,被选为西安十大新文化地标。


▽项目西南向鸟瞰©是然摄影-苏圣亮

vsszan206176041456351.jpg

▽建筑外景©是然摄影-苏圣亮

vsszan206176041456352.jpg

▽沿沣东大道晨景©是然摄影-苏圣亮

vsszan206176041456353.jpg



项目位于重要的历史文化环境,在国家文物部门划定的阿房宫前殿遗址的建设控制地带内,周边分布着阿房宫、上林苑等重要古迹文化遗址。基地内有一类建设控制地带8米、二类建设控制地带18米的限高要求。



▽模型©麟和建筑工作室

vsszan206176041456354.jpg

▽建筑通过连桥与广场衔接©是然摄影-苏圣亮

vsszan206176041456355.jpg

▽通透界面与文化配套产生对话©是然摄影-苏圣亮

vsszan206176041456356.jpg

▽屋顶与立面细节©是然摄影-苏圣亮

vsszan206176041456357.jpg



设计积极回应独特的历史文脉与严苛的外部条件制约,总体建筑群体采用“下沉与消隐”设计策略,场地整体下沉1.5米,造就平展内含的场所氛围和基调。建筑总体规划借鉴秦汉“里坊雏形”格局,呼应多个方向的城市空间与人流来向,以纵横错落的街巷为框架,在大体量的演艺剧院、美术馆和配套建筑之间设置公共空间,多层级的“广场、庭园、平台、坡道”成为公共空间系统核心组织要素,造就立体而有节奏的步行系统。


▽手绘草稿©麟和建筑工作室

vsszan206176041456358.jpg
vsszan206176041456359.jpg
vsszan2061760414563510.jpg

▽建筑主体整体下沉策略©是然摄影-苏圣亮

vsszan2061760414563511.jpg

▽下沉庭院及连桥©是然摄影-苏圣亮

vsszan2061760414563512.jpg
vsszan2061760414563513.jpg
vsszan2061760414563514.jpg



一期演艺剧院试图与历史文化场景形成延续、差异与对话,探索历史文化场景中当代建筑的独特性姿态。剧院体量最大,设在整体场地离遗址最远处、18米限高的东南角,舞台基坑部分下沉5-8米不等;下沉建筑体量借鉴秦代建筑的夯土基座要素,建筑与场地紧紧嵌接在一起,如同从大地中自然生长而出;粗面肌理的混凝土挂板构成的叠涩处理和横向线条,强化基座的水平延展感。上部建筑主体与屋盖采用全通透玻璃立面和雾面半反射纯铝质屋顶,折板形超白通透玻璃材料与施工工艺塑造出立面轻盈通透的当代感;建筑内部方盒形的剧院形体则直观地加以表达,并与展现秦文化的巨型浮雕相结合,突出厚重的历史感与轻盈的当代感。


▽材料对比形成建筑竖向层©是然摄影-苏圣亮

vsszan2061760414563515.jpg

▽粗面肌理的混凝土挂板©是然摄影-苏圣亮

vsszan2061760414563516.jpg



演艺剧院与“赳赳大秦”剧目同步展开设计、建造与排演,建筑团队与舞台剧作大师乔治·西平团队紧密协同,为演艺提供一个160米长、40米宽的室内移动座席与舞台一体化空间,1500座观众席可自如移动;同时,结合移动升降舞台场景和数智化声光电媒体技术,塑造了一个全景沉浸式的演艺空间。设计颠覆传统剧院的固定座席演出模式,突破舞台与观众席的二分法,打破边界、融为一体,形成一座独一无二的“超级剧院” 新范式。主体演艺空间周边布设立体化门厅、休息厅、咖啡与文创等功能;演员与后勤道具流线围绕主体演艺空间周边和上下立体化展开,巨大的天幕钢构空间内部、下部及周边通道形成演员空间;移动式座席和全景式舞台为设计和消防等提出独创性挑战和创新。


▽主门厅©是然摄影-苏圣亮

vsszan2061760414563517.jpg

▽观众休息廊©是然摄影-苏圣亮

vsszan2061760414563518.jpg

▽移动式观众席与超大进深舞台©是然摄影-苏圣亮

vsszan2061760414563519.jpg



演艺剧院演出六幕剧情,首创行进式坐席、多空间贯穿式剧场以及多媒体沉浸视听效果,使之成为全球首个行进式高科技剧院和最大的沉浸式超级剧场,获得吉尼斯世界记录最大的剧院舞台认证。


▽礼仪广场及建筑主入口夜景©是然摄影-苏圣亮

vsszan2061760414563520.jpg
vsszan2061760414563521.jpg

▽人与建筑©是然摄影-苏圣亮

vsszan2061760414563522.jpg

▽项目区位图©麟和建筑工作室

vsszan2061760414563523.jpg

▽总平面图©麟和建筑工作室

vsszan2061760414563524.jpg

▽地下一层平面图©麟和建筑工作室

vsszan2061760414563525.jpg

▽地下二层平面图©麟和建筑工作室

vsszan2061760414563526.jpg

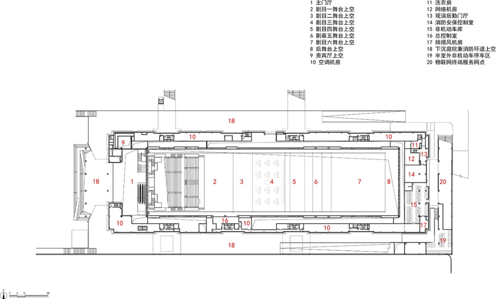
▽一层平面图©麟和建筑工作室

vsszan2061760414563527.jpg

▽二层平面图©麟和建筑工作室

vsszan2061760414563528.jpg

▽北立面图©麟和建筑工作室

vsszan2061760414563529.jpg

▽东立面图©麟和建筑工作室

vsszan2061760414563530.jpg

▽西立面图©麟和建筑工作室

vsszan2061760414563531.jpg

▽剖面图©麟和建筑工作室

vsszan2061760414563532.jpg
vsszan2061760414563533.jpg

▽细节大样图©麟和建筑工作室

vsszan2061760414563534.jpg
vsszan2061760414563535.jpg
vsszan2061760414563536.jpg
vsszan2061760414563537.jpg
vsszan2061760414563538.jpg
vsszan2061760414563539.jpg
vsszan2061760414563540.jpg
vsszan2061760414563541.jpg
vsszan2061760414563542.jpg
vsszan2061760414563543.jpg


项目名称:陕西文化艺术博物院一期项目
项目类型:文化建筑-剧院
设计方:同济大学建筑设计研究院(集团)有限公司麟和建筑工作室
公司网站:www.atelierlplus.com
联系邮箱:academy@atelierlplus.com
项目设计:2019
完成年份:2024
设计团队:
主创建筑师:李麟学
项目负责人:李麟学、周凯锋
项目经理:周凯锋、沈伟宇
建筑设计/一体化设计总控:李麟学、周凯锋、刘旸、姜咏茜、叶心成、单云翔、王彦雯、焦岩、郭乾立、倪润尔、李岚、董之卉、吴雨末、张琪
结构设计:虞终军、王建峰、潘华、王郑成、殷腾宗、苏晨霄
给排水设计:秦立为、尹乐平
暖通设计:王希星、花莉、杨添翼
电气设计:黄生优、张深、张文杰、徐君伟
施工驻场设计:李阳
绿建设计:西安木牛能源技术服务有限公司
室内设计:深圳市极尚建设集团股份有限公司,倪阳、朱桂增、师琪、刘棋、莫炽坚
景观设计:上海北斗星景观设计工程有限公司
幕墙设计:华纳工程咨询(北京)有限公司&天合联创设计有限公司,余满红、郭超、王晓虎
泛光设计:北京东方华脉建筑设计咨询有限责任公司
声学设计:华东建筑设计研究院有限公司声学及剧院专项设计研究所
舞台机械设计:北京北特圣迪科技发展有限公司
舞美演艺设计:陕西神采演出艺术有限责任公司
舞台视觉总设计:乔治·西平
演艺总导演:周莉亚、韩真
设计顾问:屈培青,张超文,中国建筑西北设计研究院有限公司屈培青工作室
项目地址:陕西省西安市未央区天台路与沣东大道十字东北角
建筑面积:90440㎡(其中地上27281㎡,地下63159㎡)
摄影版权:©是然摄影 苏圣亮
合作方:
客户:陕西文化产业(西咸新区)投资有限公司
材料:高强混凝土预制挂板、阳极氧化铝板、沟渠式防水一体板
品牌:高强混凝土预制挂板——陕西巨匠文化建材科技有限公司、阳极氧化铝板——中国铝业公司、沟渠式防水一体板——杭州法莱科技有限公司

AI文本分析中……
AI色彩命名中……
95qabc2026-1-4 20:33:48
谢谢分享!!!谢谢分享!
syhgdesign2026-1-6 01:58:41
感谢楼主辛苦分享
您需要登录后才可以回帖 登录 | 注册序赞号

快速回复 返回顶部 返回列表