艾园 · 画廊度假酒店 | 光元意维设计 | 2025 | 中国重庆
vsszan206263090011151.png



酒店空间具有“公共空间的社交属性”与“住客的个人精神私密性”,它跳脱出纯粹的身体休息,更赋予不同感官上的综合体验。
重庆永川,在茶山竹海的环绕中,在神女湖与博物馆不停地翻涌静止中,【栖境入画 · 画廊酒店】便从大地之下生长而出。
历时4年半,设计师郭翼并未简单复制符号,而是将永川的人文历史,内化为空间的精神底色与色彩材质,让地域文化成为可感知的氛围。且本案精准捕捉了度假酒店的核心矛盾——社交感与私密性——对外,建筑以谦和体量与周围环境温和对话;对内,通过“园中宿·宿中园”的独特格局”、“框景”窗棂与“星海观月”水院,实现了公共活力与私密深度的共存。同时,设计师将建筑、室内、景观视为一个完整的“入境”旅行来设计,从城市画卷步入地下艺术聚落,空间于起承转合间缓缓展开。这不仅是短暂休憩之所,亦是在地文化、当代生活与时间维度共同写就的一首空间叙事诗。


vsszan206263090011152.png

中庭主楼

vsszan206263090011153.png

中庭水景

vsszan206263090011154.png

中庭夜景





vsszan206263090011155.png



层积之地:永川的人文画卷
在重庆永川,时间以温柔的笔触层叠书写。远望箕山山脉,茶山叠翠,竹海涌浪,勾勒出天际线的绵延画卷。这片自唐代便受茶圣陆羽踏足礼赞的嘉木之地,其孕育的清雅气韵,与宋明以降文人托物言志的竹节风骨,共同奠定了此地深厚的精神底色。
画卷近处,神女湖如一颗镶嵌于山麓的碧色明珠,与相依的南瓜山共构出一幅山水平远的灵性图景。湖畔的永川博物馆,静默守护着从巴渝古风到近代码头的所有记忆层积。而我们的场地,便置身于这宏大的自然画卷与厚重的文化场域之间,一侧是城市广场的现代脉搏,一侧是博物馆的沉静身影。


vsszan206263090011156.png

鸟瞰酒店全景

vsszan206263090011157.png

鸟瞰酒店全景

vsszan206263090011158.png

建筑概念草图

vsszan206263090011159.png



项目区位
设计的初衷始于一份谦和的对话:建筑体量谦退而内敛,以水平延展的屋檐与素雅的立面,避免对博物馆形成视觉争夺,转而寻求一种气韵上的共鸣。我们意图在这幅既有的人文山水长卷中,以当代笔法,悄然续写一隅可栖、可游、可悟的“栖境”——它不再是孤立的物体,而是从层积之地生长而出,连接城市公共生活与私密精神休憩的渡口与画境。


vsszan2062630900111510.png

西苑客房局部

vsszan2062630900111511.png

西苑局部

vsszan2062630900111512.png

西苑客房看中庭








入画与观想
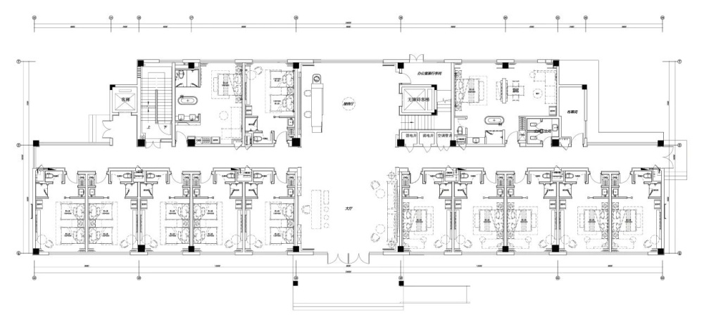
项目以“画廊酒店”为名,旨在构建一场从宏大自然画卷步入具体艺术心灵的旅程。历时四年半的营造,这座建筑、室内、景观一体化的作品,以“宋韵雅境”为美学基调,将公众可享的金弹子盆景园与静谧的酒店栖所融为一体,形成“园中宿,宿中园”的独特格局。设计从城市界面开始,便精心处理公共与私密的边界,使市民可自由游赏园林之胜,而酒店住客则在共享同一片诗意图景时,保有专属的静谧与深度体验。


vsszan2062630900111513.png

总平面

vsszan2062630900111514.png

大门局部

vsszan2062630900111515.png

金弹子园局部

vsszan2062630900111516.png

局部








起承转合的空间叙事
游观体验始于南侧主入口。一组石阶引导客人拾级而上,经由一道素雅的廊道屏障,将市井喧嚣温和隔绝。屏障一转,视线豁然开朗:以大门水景为中轴,主楼建筑静静倒映于一池浅水之中,奠定了空间的第一重静谧基调。


vsszan2062630900111517.png
vsszan2062630900111518.png

滑动看游线分析、管控分析

vsszan2062630900111519.png

酒店主入口

vsszan2062630900111520.png
vsszan2062630900111521.png



鸟瞰下沉庭院
步入大堂,是一个由明入暗、由放至收的精心设计。外部明亮的山光水色瞬间被收敛,代之以低饱和度的色彩、幽微的灯光与亲肤的材质,感官在此刻沉静下来。然而,当目光穿过幽暗的大堂,尽头整面的通透玻璃却将后园葱茏的景色框成一幅鲜活的动态画作。这一“抑扬”的强烈对比,不仅完成了情绪从城市浮躁到栖息安宁的转换,更以“框景”手法,预告了后续游园画卷的展开。


vsszan2062630900111522.png

大堂入口

vsszan2062630900111523.png

大堂大门局部

vsszan2062630900111524.png

大堂茶台

vsszan2062630900111525.png

大堂接待

vsszan2062630900111526.png

大堂休息








窗景如画的多元卷轴
62间客房,是这场观画体验的私密包厢。每扇窗皆经过精心构图,截取截然不同的画意:或远眺箕山竹海的氤氲轮廓,或俯视盆景园金弹子的苍劲枝干,或凝望市民广场充满烟火气的生动场景,或静对内庭水石相映的山水意境,更有的独享下沉庭院“星海观月”的深邃意境。窗,成为连接内部栖居与外部世界的画框,让“人在画中游”的意境渗透至每一刻安住。


vsszan2062630900111527.png

西苑

vsszan2062630900111528.png

大床房

vsszan2062630900111529.png
vsszan2062630900111530.png
vsszan2062630900111531.png
vsszan2062630900111532.png
vsszan2062630900111533.png

↑ 滑动查看不同房型 ↓

vsszan2062630900111534.png
vsszan2062630900111535.png
vsszan2062630900111536.png








地下艺术聚落与身心谧境
负一层是本次设计的灵魂笔触,它超越了常规功能集合,构筑了一个集艺术审美与深度疗愈于一体的地下谧境。
核心的下沉庭院水景,以“星海观月,金阁听琴”为概念,塑造出环绕浅水池的洄游式动线。空间的基底是素朴的灰与雅,而在水院一端的视觉终点,一座以纤细铜构与暖色光晕勾勒的“金阁”悄然伫立。它在深幽背景中,如一颗温润的星辰,亦如一幅立体画作,带来意想不到的视觉惊喜。这处金阁不仅是一座亭,更是一个可容纳琴音、茶事或小型演出的静谧舞台,使“听琴”之意得以具象。


vsszan2062630900111537.png

水亭

vsszan2062630900111538.png

水亭局部

vsszan2062630900111539.png

下沉水景


水面如绢,倒映着天光与金阁的轮廓。池中央,一面以碧绿色石材精心打磨的圆形玉盘静卧水中,宛如一枚凝结的翡翠。当山雨来临,雨滴从空中坠落,轻灵地敲击在玉盘之上,发出清越而错落的“嘀嗒”声响,正应和了“大珠小珠落玉盘”的古典诗意。此刻,金色的视觉暖意、雨珠的灵动声响、水面漾开的涟漪与空间中弥漫的静谧感全然交融,共同谱写出一曲可观、可听、可感的沉浸式情境乐章。


vsszan2062630900111540.png

下沉水亭日景

vsszan2062630900111541.png

下沉水亭夜景

vsszan2062630900111542.png

下沉水亭夜景


环绕水池的廊道串联起各功能区,其中“千秋画馆” 作为点睛之笔常年举办艺术展览,其存在不仅点明了“画廊酒店”之名的由来,更实现了从室外宏大山水画卷到室内精微艺术画作的意境贯通。而位于同一层的SPA空间,则以引入天光与绿树的“光之天井”为核心,将疗愈提升至与自然对话的精神层面。


vsszan2062630900111543.png

SPA过道

vsszan2062630900111544.png
vsszan2062630900111545.png
vsszan2062630900111546.png

滑动看 | SPA区








材料诗学与时间意境
本案坚持“本土性、时间性、诗意性”的材料哲学。粗粝的石板、随时间氧化变化的铜件、会留下使用痕迹的木材,空间色调来源于永川本土的茶色、竹青与天色灰蓝,材质多用哑光木质,触感温润。共同诉说着“非瞬时之美”——设计为时间的参与留白,让建筑与自然一起生长、变化,日趋温润。


vsszan2062630900111547.png

过度中庭

vsszan2062630900111548.png

茶室

vsszan2062630900111549.png

客房电梯间

vsszan2062630900111550.png
vsszan2062630900111551.png

滑动看早餐厅








栖于境,归于心
这并非一座普通的酒店。它是在城市与自然、公共与私密、历史与当代的多重张力间,寻得的一种平衡而诗意的栖居答案。它让市民共享一座可游的园林,让住客私藏一片可栖的画境。
从城市画卷中悄然入境,于内部园林中深度游观,在艺术画廊前静心观想,最终归于客房窗前的安然栖止——这便是一场完整的、由外至内的“入境”之旅,邀请每一位行者,在此重获内心的宁静、丰盈与完整。


vsszan2062630900111552.png

中庭水亭

vsszan2062630900111553.png

游客休息中心

vsszan2062630900111554.png

园林局部

vsszan2062630900111555.png
vsszan2062630900111556.png
vsszan2062630900111557.png

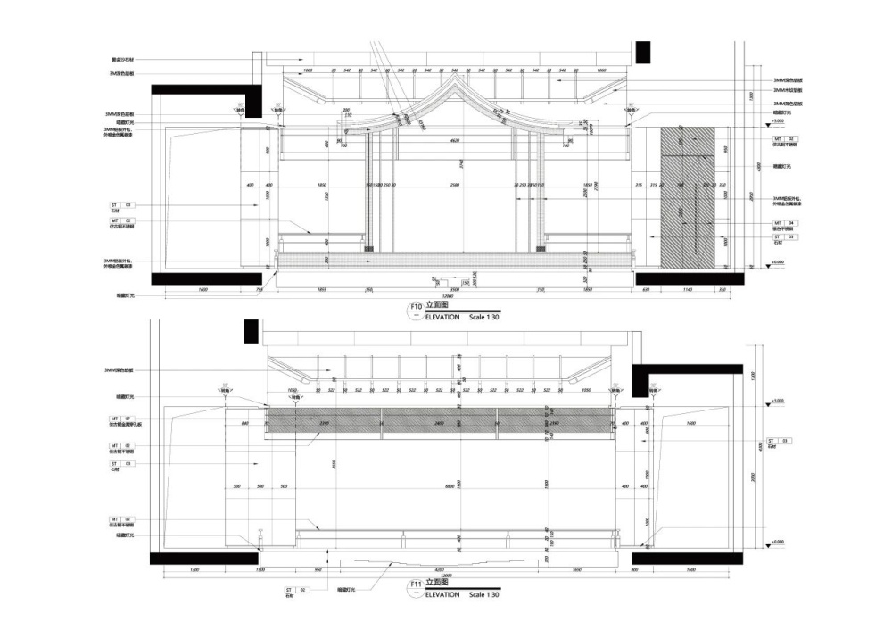
滑动看负一层总平面/回廊剖面/水亭立面 © 光元意维

vsszan2062630900111558.png

酒店大堂客房层 © 光元意维

vsszan2062630900111559.png

酒店主楼及负一层剖面图 © 光元意维

vsszan2062630900111560.png

下沉庭院分析 © 光元意维



项目名称 Name | 艾园 · 画廊度假酒店
项目地点 Location | 重庆永川 神女湖东畔
业主单位 Client | 爱你一万年酒店管理有限公司
设计内容 Content | 建筑 室内 景观 软装
主持设计 Lead Designer | 郭翼
规划与建筑方案设计 Planning and Architectural Concept Design | 刘彦君、郭翼
室内设计 Interior Design | 光元意维设计有限公司 & G·space design & 雅田空间
室内团队 Team | 郭翼、胡智翔、夏敏、苟嫣
景观设计 Landscape Design | 成都因澈思明景观设计有限公司、张素杰、郭翼
软装陈设 Soft Furnishing | 郭翼、深圳易虎空间
建筑施工图 Construction drawings | 重庆大地建筑勘察设计有限公司:樊汝彬等
项目面积 Area | 建筑面积10932㎡,景观面积11200㎡
项目时间 Time | 2021年6月 - 2025年10月
项目文案 Copywriting | 郭翼


vsszan2062630900111562.png

郭翼

光元意维设计 & G·space design 设计总监


重庆光元意维设计有限公司
我们注重空间的秩序与形式感,善于将生活型态和美学意识转化成一种无声的却可以感知的设计语言。团队成员拥有多年服务高端酒店、地产空间的设计经验。为地产、酒店、商业、私宅等领域提供高品质的设计一体化服务。


    • 转自:走鹊
    • 图片©光元意维设计
    • 编辑:序赞网
    • 阅读原文
    AI文本分析中……
    AI色彩命名中……
    syhgdesign2026-1-10 23:43:26
    感谢楼主辛苦分享
    您需要登录后才可以回帖 登录 | 注册序赞号

    快速回复 返回顶部 返回列表