深圳罗湖美术馆 | reMIX临界 | 2023 | 中国深圳



愿景:开放的艺术公园
在过去40年的快速城市化过程中,深圳的城市景观发生天翻地覆的变化。而作为特区最早开发的高密度城区,罗湖区已率先来到城市更新阶段的前沿:文体设施、城市绿化与公共空间品质亟待改造提升。上世纪80-90年代,罗湖曾经是艺术、文学创作极其活跃的文化高地。而今天,随着越来越多的文体设施落户城市西侧,新兴文化与创新中心逐渐远离罗湖。


▽效果图 从南极路看向美术馆© reMIXStudio

vsszan206388141016061.jpg

▽效果图 从春风路望向美术馆© reMIXStudio

vsszan206388141016062.jpg



一个成熟的城市文化生态,不只需要大型,超大型的文化设施,也更需要容纳社区公共生活的场所。在这样的背景下,罗湖美术馆的升级改造,将是一次重新发现罗湖的重要机遇,为在地与国际艺术家创造新舞台、为片区注入新生活,也为中型片区型文化机构的探索和突破提供新的样板。


▽效果图 鸟瞰© reMIXStudio

vsszan206388141016063.jpg



作为片区五分钟步行圈内的宝贵公共绿地,我们将为城市提供一个真正开放的活力艺术公园。作为创新之都的艺术新地标,美术馆空间主动激发实验性新艺术,开放与通透的空间邀请公众进入艺术与它幕后的世界。重新发现罗湖,将涝渍频发的水文风险,转化为与水共存的宜居空间,和多姿多彩的文化新景观。


▽效果图 夜间的美术馆和艺术广场© reMIXStudio

vsszan206388141016064.jpg



场地策略:每个人的城市舞台
和大多数屹立于空旷场地中的美术馆不同,罗湖美术馆周边高层环绕,扩建五倍建筑规模的同时保持55%绿地率是一个艰巨的挑战。我们的策略是变挑战为机遇,塑造一个充分融入公园中的美术馆;与社区近距离的交融,使得美术馆更方便的实现公共教育使命,服务片区与城市的混合业态将为美术馆更可持续的运营提供支撑。我们将绿地置于西侧道路旁,使其具备最大的公共性和可达性,也为美术馆带来一个富有想象力的前场空间。


▽历史背景© reMIXStudio

vsszan206388141016065.jpg

▽场地现状© reMIXStudio

vsszan206388141016066.jpg

▽城市策略 绿地© reMIXStudio

vsszan206388141016067.jpg

▽分析图 场地周边平面© reMIXStudio

vsszan206388141016068.jpg

▽体型生成© reMIXStudio

vsszan206388141016069.jpg

▽全天候艺术街区© reMIXStudio

vsszan2063881410160610.jpg

▽三位一体© reMIXStudio

vsszan2063881410160611.jpg

▽功能分布© reMIXStudio

vsszan2063881410160612.jpg

▽基本动线© reMIXStudio

vsszan2063881410160613.jpg

▽功能分布© reMIXStudio

vsszan2063881410160614.jpg



在剖面上,美术馆分为漂浮画廊与地景画廊两个部分,中间嵌入城市舞台,舒缓的绿坡将人们自然带入美术馆的入口大厅。入口上方倾斜的镜面巨幕面向艺术草坪,每个人都可以看到自己,让日常的生活场景转化为艺术本身。艺术不再是高高在上曲高和寡,而是融入生活的日常,最大程度的激发公众对艺术的好奇和参与感。镜面亦是大屏幕,可以完全打开的建筑立面,室内台地和室外绿坡形成的双面舞台,可激发多种有想象力的使用场景,草坪音乐节、露天电影院、实验性新媒体艺术都可以在此发生。立体通高无柱的大厅空间,舞台式天花设计,为大型艺术装置展示、展览开幕式、演出等多种场景提供理想的空间和设施。在平面上,整个美术馆分为三个部分。除新的画廊体量外,北侧保留建筑成为公共教育中心,南侧三角地容纳文化设施。三者各有独立入口,又彼此相连,提供灵活的运营可能。


▽城市舞台 开幕式© reMIXStudio

vsszan2063881410160615.jpg

▽城市舞台 多场景分析© reMIXStudio

vsszan2063881410160616.jpg

▽城市舞台 多场景分析© reMIXStudio

vsszan2063881410160617.jpg

▽城市舞台 镜面巨幕© reMIXStudio

vsszan2063881410160618.jpg

▽效果图 从南极路看向美术馆© reMIXStudio

vsszan2063881410160619.jpg

▽艺术绿坡© reMIXStudio

vsszan2063881410160620.jpg

▽纵向功能布局© reMIXStudio

vsszan2063881410160621.jpg

▽剖透视 具备不同空间条件的画廊© reMIXStudio

vsszan2063881410160622.jpg

▽实体模型© reMIXStudio

vsszan2063881410160623.jpg



建筑空间
七个尺寸、净高、光照条件各不相同的展厅,垂直布置于丰富多变的剖面空间内。一部蓝绿渐变的半透明楼梯将一天一地两个画廊串联起来,形成令人耳目一新的参观体验。半透的表皮包裹下,渗透出的流光溢彩,如同水彩画一般。


▽漂浮画廊与地景画廊© reMIXStudio

vsszan2063881410160624.jpg

▽尺度分析 不同空间条件的画廊© reMIXStudio

vsszan2063881410160625.jpg



漂浮画廊由南北两个核心筒通过空间桁架托起,展览空间平面由顶层10*20轴网和其他层10*10构成,不同楼层间视线通透,彼此交互。立面的U型玻璃立面形成薄纱般表皮塑造柔和的基础光环境,顶层的大型画廊具有2000单层面积,模块化的空间方便划分成不同的艺术展览空间,顶部的天窗剖面设计利用漫反射引入间接光,可变滤光帘幕为不同艺术形式进一步提供精准适宜的光环境。


▽大型画廊© reMIXStudio

vsszan2063881410160626.jpg

▽中型画廊© reMIXStudio

vsszan2063881410160627.jpg



地景画廊通过对3米覆土空间的起伏和刻画,提供三个净高不同的展厅,并在三处适宜的位置以天窗引入自然光,满足更多的展陈需求。三个展厅通过开放展示区与南侧文化设施中的多功能厅和与书吧结合设计的美术馆商店相连。整个地景画廊多变动态的空间体验,与通透简洁的漂浮画廊形成鲜明反差。


▽展厅结构形式© reMIXStudio

vsszan2063881410160628.jpg

▽首层、二层展厅© reMIXStudio

vsszan2063881410160629.jpg

▽五层大型展厅© reMIXStudio

vsszan2063881410160630.jpg



在动线设计方面,多样的动线设计允许不同长度的参观路径。我们特别关注美术馆运营时间范围内外的不同动线场景,允许文化设施和公共教育中心拥有不同的运营时间,甚至7天24小时开放。此外,资深的艺术爱好者还可前往漂浮画廊三层研究室观摩研讨,并可以在相邻的沙龙咖啡厅和艺术研究者互动交流。美术馆办公区设置在四层临近研究区域,工作人员可以从漂浮画廊北侧的独立入口和专属电梯到达。


▽向公众开放的研究中心© reMIXStudio

vsszan2063881410160631.jpg



考虑到场地的内涝风险,我们将最重要的展览空间和珍品库房置于漂浮画廊中。便捷的货运流线,将卸货区与地上地下的各个馆藏和备展间连接起来。


▽B1层地景画廊© reMIXStudio

vsszan2063881410160632.jpg



景观设计
艺术公园被精心设计为四个区域,一并激活连接地块东南侧的闲置空间。阅读平台与图书馆联通,通透的界面,室内外充分渗透;艺术草坪是城市舞台的重要组成,舒缓的草坡既是观看演出的看台,又是周末休闲野餐或瑜伽的圣地;活力山丘为社区活动和前来美术馆的亲子家庭设计;共享广场则与周边地块共享共建,可以举办艺术市集,布置临时艺术装置。


▽作为城市公园的美术馆© reMIXStudio

vsszan2063881410160633.jpg

▽活力山丘© reMIXStudio

vsszan2063881410160634.jpg

▽雨洪管理策略© reMIXStudio

vsszan2063881410160635.jpg

▽降雨量应对© reMIXStudio

vsszan2063881410160636.jpg



改造后的美术馆通过建筑与景观一体化的整合设计,重建与水更友好的连接:多级生态与海绵措施,蓄滞净用相互结合,巧妙利用各类空间发展出蓝绿结合的雨水适应性景观,确保所有建筑空间的水安全。地下工程中还预留足够的额外蓄涝设施,以应对类似2023.08.26高标准暴雨事件带来的风险。作为新的城市公共空间,给大众带来水与自然的过程体验,让艺术与生态构成日常生活的新图景。


▽总平面图© reMIXStudio

vsszan2063881410160637.jpg

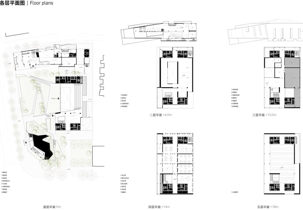
▽各层平面图© reMIXStudio

vsszan2063881410160638.jpg

▽剖面图© reMIXStudio

vsszan2063881410160639.jpg


项目信息
项目:罗湖美术馆升级改造工程全过程设计
年份:2023
建筑面积:26288平方米
类型:公共文化建筑
状态:竞赛前五名
地点:中国,广东省深圳市
业主:深圳市罗湖区政府投资项目前期工作管理中心
设计单位:reMIX临界工作室
主持建筑师:陈忱、Nicola Saladino、吕守拓
设计团队:郑新然、Marco Navarro、肖思齐、刘意、程犁天、王馨怡、王国屹
合作设计院:中国建筑设计研究院有限公司
美术馆展陈设计顾问:dUCKS scéno
景观及水专业顾问:瓦地工程设计咨询(北京)有限公司

AI文本分析中……
AI色彩命名中……
95qabc2026-1-14 19:21:36

谢谢分享!!!谢谢分享!
syhgdesign2026-1-15 17:58:06
感谢楼主辛苦分享
您需要登录后才可以回帖 登录 | 注册序赞号

快速回复 返回顶部 返回列表