蓝顶艺术中心3号楼 | 相对建筑 | 2025 | 中国四川



01 项目背景:艺术脉络的传承与新生
本项目坐落于成都具有标志性意义的蓝顶艺术区。蓝顶艺术群落源于二十多年前,由周春芽、何多苓等著名艺术家创立,是中国西南地区艺术生态的重要地标。此次改造的3号楼,正是这一深厚艺术脉络的一处物理载体。建筑原为艺术家的工作室与居所,经多年使用后出现了功能滞后、动线混乱及漏水破损等问题。新任业主作为艺术家,希望在不失工作室大尺度创作和展示的前提下,将生活空间与创作空间完美融合,为“家”注入灵魂,为“艺术”提供温床。


▽原始结构拆除示意© 相对建筑

vsszan206397141632301.jpg

▽建筑外观© 形在摄影

vsszan206397141632302.jpg

▽建筑外立面© 形在摄影

vsszan206397141632303.jpg



02 设计策略
克制与共生面对原有结构的限制与新的功能需求,我们采取了“保留、加建、重组”的复合策略:


▽展厅公共空间© 形在摄影

vsszan206397141632304.jpg



结构保留与功能重置:最大限度地保留了原有两层混凝土框架,以此为基础进行彻底的功能重置,将生活区、展览区与工作区清晰分离又有机串联。


▽混凝土框架© 形在摄影

vsszan206397141632305.jpg



体量加建:通过局部加建第三层,成功置入了一个逾300平方米的顶层工作室并在内置入一个有自然采光的花房,完美满足了业主对创作空间和植物热爱的需求。


▽中庭与植物陈设© 形在摄影

vsszan206397141632306.jpg



边界消融:运用落地推拉门、采光花房和横向长窗,将周围花园的绿意与天光最大限度地引入室内,物理边界被弱化,建筑、艺术与自然在此展开对话。


▽室内空间与景观© 形在摄影

vsszan206397141632307.jpg



多变的空间:在内部空间设计中结合原有结构和新建部分强调空间从矮到高,从窄到宽,从而增加整体空间的丰富性和体验感。


▽天窗下的中庭空间© 形在摄影

vsszan206397141632308.jpg



03 空间体验:一场光影交织的叙事诗
通过设计营造一场充满仪式感的沉浸式空间体验。


▽室内空间© 形在摄影

vsszan206397141632309.jpg



建筑外立面 · 克制表达与自然对话
建筑外立面选用经济实用的灰色防水涂料,浅灰的色调在茂密植被的映衬中,既清晰勾勒出建筑体量,又自然融入环境而不显突兀。临道路的东立面采用克制性的开窗策略,在满足室内采光的同时有效保护居住隐私。大小不一的窗户开口不仅构建了功能性的光影秩序,也为室内营造出温馨而富有层次的光影氛围。而朝向花园的其余三个立面,则大量运用落地窗和推拉门设计。这一处理不仅极大强化了建筑与自然的视觉联系,更通过物理界面的消隐,实现了室内外空间的渗透与融合,进一步呼应了“艺术与生活共生”的整体理念。


▽室内外空间的渗透与融合© 形在摄影

vsszan2063971416323010.jpg
vsszan2063971416323011.jpg



二层 · 生活的容器
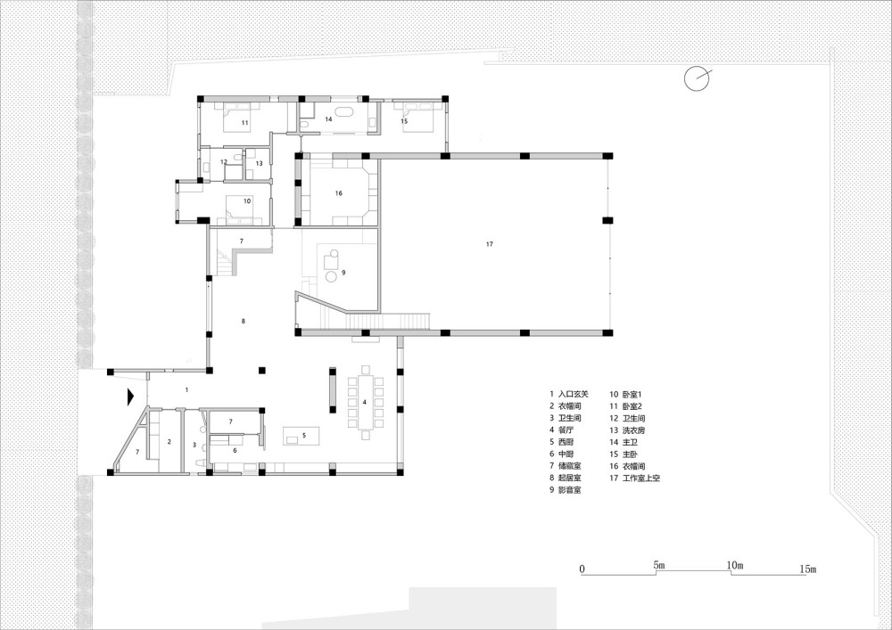
改造后的入口从侧面移至建筑正面,通过斜向退让与增加钢板挑檐,结合门前竹林,营造出“曲径通幽”的入场仪式。此层作为主要生活区,容纳了厨房、餐厅、起居室及卧室。设计通过刻意压低的入口廊道(层高2.2米)与其后挑高的起居中庭形成强烈对比,在空间的收放与明暗变化中,丰富了居住的情绪节奏。


▽二层起居空间© 形在摄影

vsszan2063971416323012.jpg

▽二层起居空间© 形在摄影

vsszan2063971416323013.jpg
vsszan2063971416323014.jpg
vsszan2063971416323015.jpg



三层 · 创作的高地
一部由钢板打造、结合书架的悬浮楼梯,引领主人步入三层的创作主场。工作室中心嵌入一个白色阳光板顶室内花房。阳光通过屋顶引入,简约空间中滋生几分自然温暖。混凝土与阳光板材质的交错映衬出和谐质感,柔化线条的同时让面与面之间完美结合,营造出舒适静谧的工作室氛围。这里安静、明亮、充满自然能量,是一个能无限激发创作灵感的理想容器。


▽三层工作室空间© 形在摄影

vsszan2063971416323016.jpg
vsszan2063971416323017.jpg

▽结构梁细部© 形在摄影

vsszan2063971416323018.jpg



一层 · 艺术的展场
从二层生活区一扇隐藏的门下行,空间情绪陡然转变——从亲密的生活尺度瞬间切换至6米挑高的宏大展览厅。原始的建筑肌理(交叉井字梁)被保留,巨大的落地窗将下沉花园的景色囊括入内。这里既是作品的展示场,亦是艺术与自然冥想的殿堂。


▽一层展览空间© 形在摄影

vsszan2063971416323019.jpg
vsszan2063971416323020.jpg

▽室内空间与艺术陈设© 形在摄影

vsszan2063971416323021.jpg
vsszan2063971416323022.jpg

▽一层礼堂© 形在摄影

vsszan2063971416323023.jpg
vsszan2063971416323024.jpg



04 结语
最终,建筑披上一袭经济的浅灰色外衣,谦逊地隐匿于自然环境之中。我们通过克制的设计手法,精准回应了艺术家业主的功能与精神需求,成功模糊了工作室与家的边界。在这里,生活即是艺术,艺术亦是生活。这不仅是一次旧建筑的重生,更是一次关于艺术创作与日常居住如何共生共融的深刻探索。


▽榻榻米起居空间© 形在摄影

vsszan2063971416323025.jpg
vsszan2063971416323026.jpg
vsszan2063971416323027.jpg

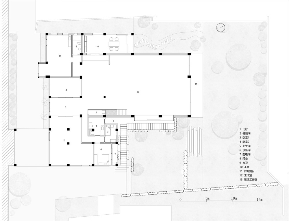
▽总平面图© 相对建筑

vsszan2063971416323028.jpg

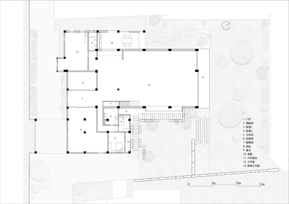
▽一层平面图© 相对建筑

vsszan2063971416323029.jpg

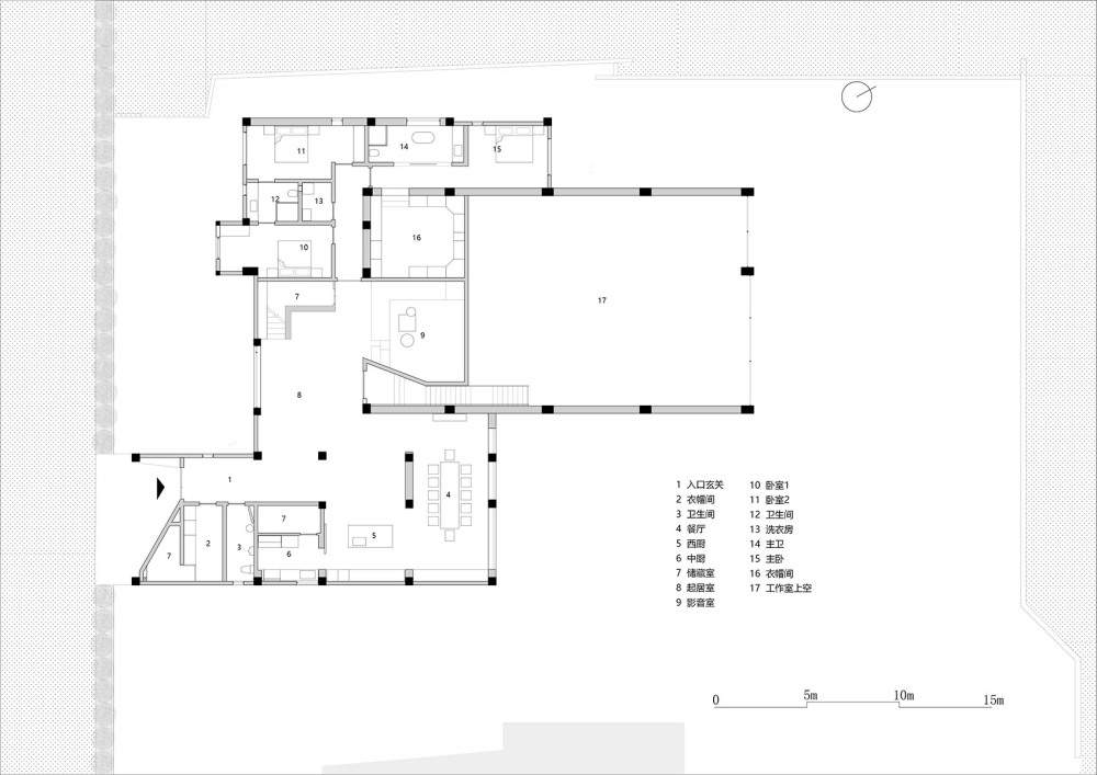
▽二层平面图© 相对建筑

vsszan2063971416323030.jpg

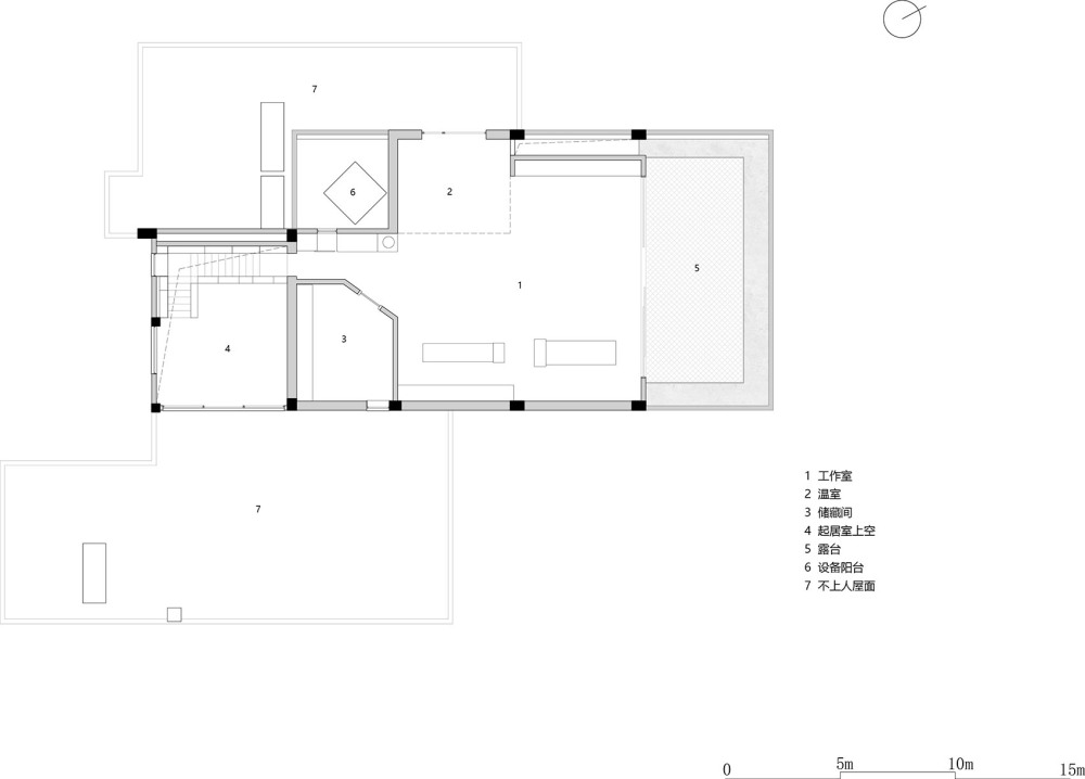
▽三层平面图© 相对建筑

vsszan2063971416323031.jpg

▽剖立面图© 相对建筑

vsszan2063971416323032.jpg
vsszan2063971416323033.jpg
vsszan2063971416323034.jpg
vsszan2063971416323035.jpg
vsszan2063971416323036.jpg
vsszan2063971416323037.jpg


项目名称:蓝顶艺术中心3号楼改造
设计单位:相对建筑
项目地点:中国,成都,三圣乡蓝顶艺术区
项目类型:建筑改造 / 艺术家工作室+住宅
关键词:艺术社群、空间重构、边界消融、光与自然、极简主义

AI文本分析中……
AI色彩命名中……
95qabc2026-1-14 19:11:18

谢谢分享!!!谢谢分享!
您需要登录后才可以回帖 登录 | 注册序赞号

快速回复 返回顶部 返回列表