Kellogg’s Bremen 酒店 | DMAA | 2024 | 德国



位于不来梅西部的Überseestadt是欧洲规模最大的城市更新项目之一。该项目在原Übersee港区范围内推进,占地约 300 公顷,正逐步塑造一片全新的城市城区。其中,Überseeinsel半岛保留了食品制造商家乐氏(Kellogg’s)曾经的生产设施,成为工业遗产更新的重要节点。


▽项目概览© Piet Niemann

vsszan206414151733401.jpg



整体更新策略旨在威悉河沿岸、毗邻市中心的位置,构建一个充满活力的混合功能综合体。临水一侧最具辨识度的核心元素,正是建于20世纪70年代的家乐氏筒仓——这一场地的非官方地标与精神象征,如今由DMAA建筑事务所改造为酒店,延续其工业身份的同时赋予其新的城市功能。


▽项目改造前后© DMAA

vsszan206414151733402.jpg

▽滨水视角© Piet Niemann

vsszan206414151733403.jpg



这些筒仓曾用于储存多达 5,000 吨的玉米、小麦或燕麦,其改造在结构与审美层面都极具挑战性。DMAA 的设计回应了业主的明确要求:在更新过程中最大限度地保留筒仓的工业特征与象征力量,使其成为新城区中的标志性存在。


▽分析图© DMAA

vsszan206414151733404.jpg

▽街景视角© Piet Niemann

vsszan206414151733405.jpg

▽酒店半鸟瞰© Piet Niemann

vsszan206414151733406.jpg

▽仰视改造后的筒仓© Piet Niemann

vsszan206414151733407.jpg

▽立面© Piet Niemann

vsszan206414151733408.jpg

▽立面细部© Piet Niemann

vsszan206414151733409.jpg



标志性的红色 “Kellogg’s” 标识依旧矗立在约40米高的筒仓之上。筒仓外壳内部被改造为117间圆形与半圆形酒店客房。原本作为维生素仓库的低层附属建筑,则被更新为包含会议功能的五层办公空间,其屋顶转化为一处可俯瞰周边景观的公共活动平台。


▽项目改造前后© DMAA

vsszan2064141517334010.jpg

▽滨水休闲区© Piet Niemann

vsszan2064141517334011.jpg

▽标志性的红色 “Kellogg’s” 标识© Piet Niemann

vsszan2064141517334012.jpg



客房的引入通过在厚达16厘米的混凝土筒体上切割窗洞得以实现。狭长而克制的开口在不同高度框取威悉河景观。筒仓漏斗状的出料口被整合进酒店大堂的空间设计中,各筒体之间亦被打通,以形成新的交通与进入系统。仅酒店改造部分,就切割并移除了约3,500立方米混凝土。


▽客房内部© Piet Niemann

vsszan2064141517334013.jpg

▽走廊© Piet Niemann

vsszan2064141517334014.jpg

▽客房细部© Piet Niemann

vsszan2064141517334015.jpg
vsszan2064141517334016.jpg

▽楼梯© Piet Niemann

vsszan2064141517334017.jpg
vsszan2064141517334018.jpg

▽建筑细部© Piet Niemann

vsszan2064141517334019.jpg
vsszan2064141517334020.jpg



改造后的筒仓与相邻、由原稻谷仓库转型而来的市场大厅共同构成一套完整的公共配套体系,涵盖餐饮空间、内部酿酒坊以及面向威悉河展开的大尺度露台,使这一工业遗址在新的城市语境中重新焕发生命力。


▽项目改造前后© DMAA

vsszan2064141517334021.jpg

▽仓库改造为酒吧© Piet Niemann

vsszan2064141517334022.jpg

▽酒吧细部© Piet Niemann

vsszan2064141517334023.jpg
vsszan2064141517334024.jpg

▽接待空间© Piet Niemann

vsszan2064141517334025.jpg

▽建造过程© Andreas Müller Fotografie

vsszan2064141517334026.jpg
vsszan2064141517334027.jpg

▽Überseeinsel区总体规划© DMAA

vsszan2064141517334028.jpg

▽场地平面图© DMAA

vsszan2064141517334029.jpg

▽总平面图© DMAA

vsszan2064141517334030.jpg

▽改造后的仓库一层平面图© DMAA

vsszan2064141517334031.jpg

▽改造后的仓库二层平面图© DMAA

vsszan2064141517334032.jpg

▽改造后的仓库三层平面图© DMAA

vsszan2064141517334033.jpg

▽改造后的仓库四平面图© DMAA

vsszan2064141517334034.jpg

▽改造后的仓库立面图© DMAA

vsszan2064141517334035.jpg
vsszan2064141517334036.jpg

▽改造后的仓库剖面图© DMAA

vsszan2064141517334037.jpg

▽筒仓酒店底层平面图© DMAA

vsszan2064141517334038.jpg

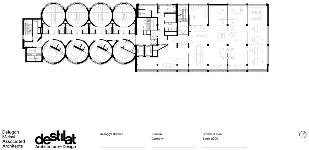
▽筒仓酒店标准层平面图© DMAA

vsszan2064141517334039.jpg

▽筒仓酒店八层平面图© DMAA

vsszan2064141517334040.jpg

▽筒仓酒店顶层活动空间平面图© DMAA

vsszan2064141517334041.jpg

▽筒仓酒店立面图© DMAA

vsszan2064141517334042.jpg
vsszan2064141517334043.jpg
vsszan2064141517334044.jpg

▽筒仓酒店剖面图© DMAA

vsszan2064141517334045.jpg
vsszan2064141517334046.jpg
vsszan2064141517334047.jpg
vsszan2064141517334048.jpg
vsszan2064141517334049.jpg
vsszan2064141517334050.jpg
vsszan2064141517334051.jpg
vsszan2064141517334052.jpg
vsszan2064141517334053.jpg
vsszan2064141517334054.jpg
vsszan2064141517334055.jpg
vsszan2064141517334056.jpg
vsszan2064141517334057.jpg
vsszan2064141517334058.jpg
vsszan2064141517334059.jpg
vsszan2064141517334060.jpg
vsszan2064141517334061.jpg


Project Information
Category:Hotel & SPA / Mixed Use / Refurbishment
Address:Auf der Muggenburg 30, 28217 Bremen
Start of Planning:2018
Start of Construction:2020
Completion:2024
Gross Surface Area:Reislager 9,447.02 m²;Silo 9,142.52 m²
Construction Volume:Reislager 37,336.94 m³;Silo 32,263.81 m³
Site Area:Reislager 4,965 m²;Silo 2,195 m²
Height:Reislager 24.5 m;Silo 52.4 m
Number of Levels:Silo 14;Reislager 4
Number of Basements:1
Project Manager:Eva Schrade
Project Team:Birgit Miksch;Julia Oblitcova;Klaudia Prikrill;Martin Schneider
Visualization:Toni Nachev
Executive Planning:dt+p, An der Reeperbahn 10, 28217 Bremen (Reislager);Gruppe GME Architekten, Paulsbergstraße 11, 28832 Achim (Silo)
Structural Engineering:Wittler Ingenieure GmbH, Parkstraße 14, 28209 Bremen
Lighting Design:Die Lichtplaner, Hans-Wolf-Str. 19, 65556 Limburg-Staffel
Building Services Engineering:Schweigatz Heizungs- und Sanitärbau GmbH, Fuldastraße 38, 26135 Oldenburg
Building Physics:Wittler Ingenieure GmbH, Parkstraße 14, 28209 Bremen

AI文本分析中……
AI色彩命名中……
syhgdesign2026-1-17 01:05:53
感谢楼主辛苦分享
您需要登录后才可以回帖 登录 | 注册序赞号

快速回复 返回顶部 返回列表