小布茶酒集 | 山集设计 | 2025 | 中国陕西
vsszan206507210000541.png



在西安曲江,与寒窑遗址隔街相望的一隅,山集设计新作“小布茶酒集”落成。避开传统茶室的深幽古意和酒馆的喧嚣热烈,以一种清爽明亮、兼纳商务需求与松弛氛围的姿态,静静迎向街道,作答关于“茶酒融合”的新型体验空间,如何在延续茶事传统的同时,妥帖融入新的社交属性,为当代人提供一方可停顿、可交谈、亦可安然独处的精神属地。


vsszan206507210000542.png
vsszan206507210000543.png


业主深谙茶事与客群,多年经营茶室的经验让她敏锐感知到,消费者依然渴望一处能够安顿身心的角落,但那种依靠旧物堆砌、符号先行的空间语汇,已与当下追求效率与轻盈并重的生活方式渐生隔阂。她期待一种更简洁明快、更具个人意趣的现代表达,让茶的静定与酒的微醺,能在同一屋檐下和谐共生。


vsszan206507210000544.png



这也正是山集设计一以贯之的思考:倡导独立审美,追寻传统人文志趣与当代生活的真诚契合。在这里,设计并未沉溺于风格的复刻,而是深入到商业逻辑与行为模式之中,思考空间如何更适配现代人的多元社交与休闲需求?如何让材料的真实肌理与结构的自在诗意,共同服务于人的体验?最终,还原出一个区别于流行范式、真实的商业与生活场景。


vsszan206507210000545.png



答案始于对场地特性的细微体察。设计师运用简练、自然而有温度的材质语言,对外立面进行了整体重塑。面对西晒的客观条件,门头尺度被刻意压低,覆以一袭斜向的金属遮阳板,不仅有效过滤午后过于直白的烈日,也为途经的行人投下一片舒适的檐下阴影,同时为建筑立面增添了灵动的光影意趣,石材的温厚与金属的清冷在入口处奠定自然清爽的序幕。


vsszan206507210000546.png



与此同时,室外被精心梳理出左右两个内向的露台,在北方晴朗的日子里,成为连接自然与室内的惬意角落,让室内外的呼吸得以自由交融。


vsszan206507210000547.png
vsszan206507210000548.png



推门而入,视线并未长驱直入。一道用艺术涂料细细打磨出的墙体,如园林中的照壁,带来片刻停顿与期待。空间被一条双向动线清晰分隔,向左,是茶的世界;向右,是酒的领域,体贴的引导让怀揣不同心境与目的的来客,都能自在步入属于自己的那片氛围。


vsszan206507210000549.png



左侧的茶器陈列区,是触摸空间调性的第一幕。与品牌“SIILI基里”合作定制的黑胡桃木制展台,触手生温,沉静铺垫出茶事语境。


vsszan2065072100005410.png
vsszan2065072100005411.png
vsszan2065072100005412.png
vsszan2065072100005413.png
vsszan2065072100005414.png



天花板并未被完全遮盖,原有的建筑结构梁被精心保留并局部显露,在规整的空间中引入了层次感与自然的不确定性。


vsszan2065072100005415.png
vsszan2065072100005416.png



右侧的酒区则呈现出更为开放、松弛的姿态。一整面可灵活开合的障子窗,营造出朦胧的光感,成为连接茶酒、模糊内外的生动媒介。闭合时,室内维持着一份静谧的延续,两张单椅,一方圆几,围合出面对庭院的沉思角落;全然推开时,室内与外侧露台连为一体,茶席便与清风、树影共席,酒的微醺也随之多了几分野趣。


vsszan2065072100005417.png
vsszan2065072100005418.png



一楼的“邀月”小室,取“举杯邀明月”的诗意,在可遥想历史的曲江之畔,别有一番跨越时空的共鸣。它巧妙点明了此间茶酒共用的特性,一扇造型精巧的异形窗,将天光、月影与绿意徐徐引入,完成了从文化意象到真实场景的诗意转译。


vsszan2065072100005419.png
vsszan2065072100005420.png
vsszan2065072100005421.png
vsszan2065072100005422.png



通往二楼的楼梯,为消解视觉上的陡峭感,在形态上做了分散处理。设计师特意增设了一根立柱,与天花板上裸露的消防横管形成结构上的轻盈对话。二者均被涂覆成复古的暗铜色,与温润的米色墙面相互映衬,原本冰冷的功能构件,被转化为空间中一道沉静而有温度的几何韵律。


vsszan2065072100005423.png

vsszan2065072100005424.png
vsszan2065072100005425.png



完成空间的物理建构,并非项目的终点。设计师更关注的,是以对当代生活方式的敏锐体察,结合品牌理念与真实的运营需求,综合塑造空间投入使用后的生长状态。因此,设计不止于结构与布局,更延伸至对每个空间的功用,乃至未来可能在此发生的生活叙事的预设,依据清晰的商业逻辑而环环相扣、层层推进。

vsszan2065072100005426.png
vsszan2065072100005427.png



二楼的布局,围绕一个相对开阔的缓冲中厅而展开,四间茶室环绕其周,从宏观至细节,均呈现了从物理空间到情境体验的一体化思维。设计师认为,人们需要的,不再是一个被严格定义的场所,而是可以安全转换角色、释放不同情绪的容器。材料以其本真的质感参与叙事,所有的设计手段,最终都谦逊地服务于人的体验本身。


vsszan2065072100005428.png



基于对空间特性与潜在客群需求的深度理解,每间茶室都得以精准命名,进行体验定位与情绪引导。


vsszan2065072100005429.png



“清谈”之名,预设了安静、专注的交流氛围。具有东方美学意境的和纸,经过拼贴再创作,与内敛雅致的家具形制相得益彰,共同将空间调性收敛于静与雅,引导来客自然而然地进入烹茗清谈的相处状态。


vsszan2065072100005430.png
vsszan2065072100005431.png



“兴怀”则指向由外景激发的内在情绪。将窗体开到最大,引入远眺自然与城市景观的辽阔视野;室内仅布置极简的桌椅,让人的注意力完全沉浸于与天地景致的交互中,从而借景生情,引发思绪与情感共鸣。


vsszan2065072100005432.png



“聚和”茶室,则在于平衡商业所需的灵活性与体验应有的专属感。在与业主反复推敲客群真实需求后,它被定义为“可聚合、亦亲和”的多功能茶室。一道可完全开合的实木镂空中轴隔断成为关键,闭合时,它是满足私密聚会的独立空间;打开时,则能与公共区域气息相通,适应朋友围坐的闲适场景。这道可变的物理边界,亦是设计为未来运营预留的弹性。


vsszan2065072100005433.png
vsszan2065072100005434.png
vsszan2065072100005435.png
vsszan2065072100005436.png
vsszan2065072100005437.png



而“畅叙”茶室,其名引自《兰亭序》中“畅叙幽情”的典故。设计赋予其开阔的格局与从容的尺度,从物理与心理双重层面,支持更自由、更欢畅的群体交流体验,明确其作为核心欢聚场域的功能定位。


vsszan2065072100005438.png
vsszan2065072100005439.png



在家具的择取上,团队亦经过审慎考量。多以软体家具为主,营造舒适感,但规避了全沙发配置可能导致过度慵懒、削弱茶事仪式感的倾向。设计师旨在构建一个合乎使用场景与用户感受的体验系统,让恰当的体验发生在恰当的空间里,完整而自洽。


vsszan2065072100005440.png
vsszan2065072100005441.png



通过柔性动线引导、可变的界面隔断、贯穿始终的内外视野,山集设计创造了一个充满开放可能性的社交场域。它允许人们带着各自目的而来,在光、影、材质与结构的共同作用下松弛下来,寻获交谈的舒适或独处的安然。


vsszan2065072100005442.png



一份关于新型复合商业空间的非标答卷,设计悄然退后,更真诚地让位于人与人的真实相遇,让茶之静定与酒之酣兴,在传统与现代的缝隙中自在生长,在简洁明快的当代语境里,融合成曲江畔一段可沉浸感知、自得当下的生活叙事。


vsszan2065072100005443.png

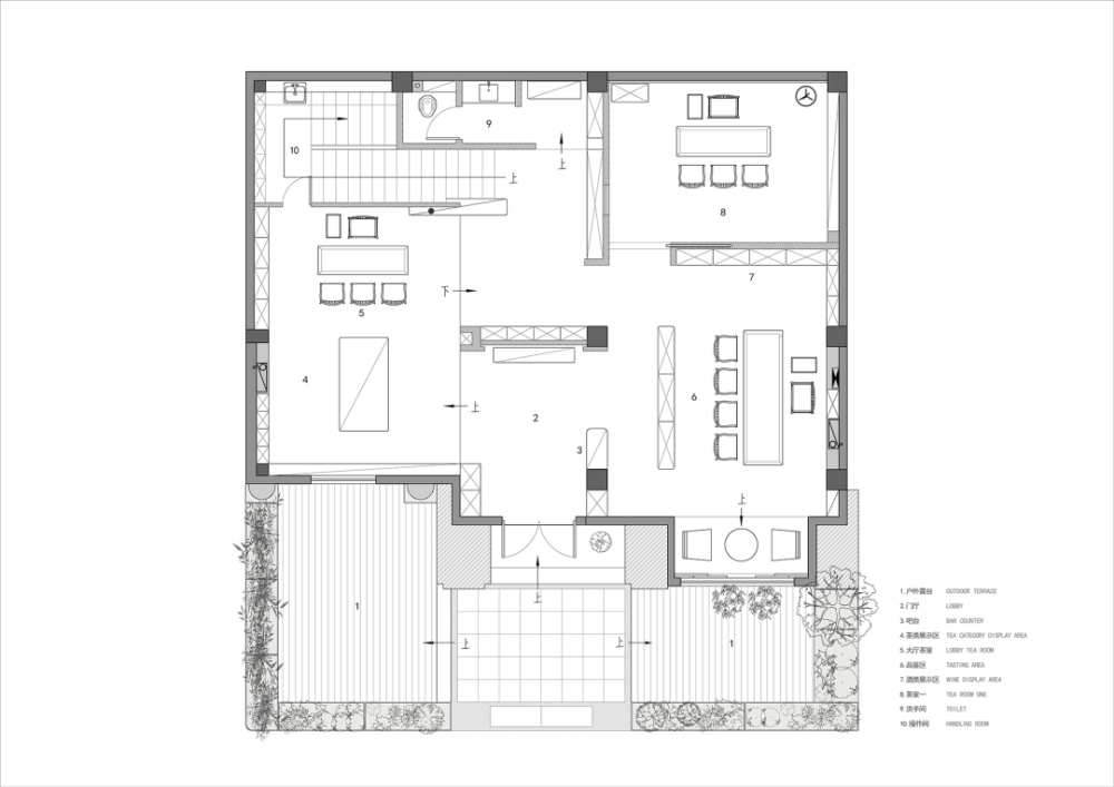
一层平面图

vsszan2065072100005444.png

二层平面图



项目名称丨小布茶酒集
项目地址丨中国·西安
项目类型丨茶酒融合体验空间
项目面积丨350㎡
完成时间丨2025年10月
设计公司丨山集设计
主创设计丨彭永俊
设计团队丨张伊飞、GARFI
项目摄影丨杨磊
合作品牌丨基里木作、莫识研习所、纸镜
vsszan2065072100005445.png


山集设计由设计师彭永俊于2018年在西安创立,主要以小建筑、庭院景观、住宅、茶空间等类型的空间设计为主,我们倡导独立审美,追求空间的美学气质,提倡简练、自然、有温度的材质表达,热爱当代艺术与人文精神的多维度呈现,追寻传统人文志趣与当代生活的契合,擅长营造多元化的当代东方美学空间。


vsszan2065072100005446.png

彭永俊

山集设计创始人



    • 转自:内外之间
    • 图片©山集设计
    • 编辑:序赞网
    • 阅读原文
    AI文本分析中……
    AI色彩命名中……
    syhgdesign2026-1-22 02:20:26
    感谢楼主辛苦分享
    95qabc2026-1-23 01:13:29
    谢谢分享!!!谢谢分享!
    雨中.漫步2026-1-27 18:30:21
    专门的茶室会所,很好看 平面上还有辅台
    您需要登录后才可以回帖 登录 | 注册序赞号

    快速回复 返回顶部 返回列表