红砖艺术酒店 | 加减智库 | 2024 | 中国广东
vsszan206543220720051.jpg



对于深耕五星级酒店照明领域、服务全球超 300 家高端客户的艾罗照明而言,他们早已先人一步成为业内的领军人物,并享有相当的国际知名度。而艾罗带着要把品牌再上一个维度的雄心,他们希望打造一个能承载 “融合科技体验、在地文化与品牌叙事的沉浸式场域” ,直观传递核心竞争力,实现从 “中国制造” 到 “中国品牌” 的价值跨越。


▽改造后的建筑外立面与庭院景观©肖湘

vsszan206543220720052.jpg



在这样的背景下,加减智库需要去解决三个核心问题:一是打破 “生产与体验” 的割裂,让客户在参观中直观感受从研发到生产的全链条落地服务能力;二是模糊 “工厂与酒店” 的边界,契合品牌服务五星级酒店的核心业务属性,让空间体验与产品应用场景形成呼应;三是实现 “地域文化与国际审美” 的平衡,既扎根中国本土,又能让海外客户产生共鸣。


▽景观廊道©覃昭量


▽入口水院夜景©覃昭量

vsszan206543220720053.jpg



二、游园戏光 —— 从照明工厂变身“红砖艺术酒店”
艾罗创新工厂位于广州南沙新区,距离市区约30分钟车程,总建筑面积约13000㎡。加减智库将 “微缩五星级酒店场景” 与 “产、研、办、展、游” 深度耦合,以“游园戏光”为主题串联室内外所有功能区域,打造 “与光的一日邂逅” 的沉浸式路径,让每一步行进都成为与光对话的过程,使整个场地从照明工厂摇身一变为“红砖艺术酒店”。


▽项目分析图©PMT Partners Ltd.

vsszan206543220720054.jpg
vsszan206543220720055.jpg
vsszan206543220720056.jpg

▽基地原建筑照片© PMT Partners Ltd.

vsszan206543220720057.jpg
vsszan206543220720058.jpg

▽外立面夜景细部©覃昭量

vsszan206543220720059.jpg



2.1 动线设计:从 “高效直达” 到 “慢体验” 的转型
传统工厂的动线设计追求生产效率,往往是直线式的 “两点一线”,而我们反其道而行之,采用迂回曲折的动线布局,刻意拉长行进路径。这种 “慢设计” 策略,核心是为了让来访者从城市喧嚣中抽离,完成从 “工业场景” 到 “体验空间” 的心理过渡,让 “光的体验” 在进入建筑前便已悄然开启。


▽红砖景墙夜景©覃昭量

vsszan2065432207200510.jpg

▽入口水院连廊夜景©覃昭量

vsszan2065432207200511.jpg



我们从《清十二月令图》中获得灵感,画中散点透视描绘出不同时节的景色与人们的活动。这种多层次多维度的庭院景致,人们三两成群,穿插其间,院内庭外湖边山前, 各有其不同的体验,随着画轴的延伸,各种场景慢慢呈现,而这正是我们想追求的游园体验。


▽《清十二月令图》 中空间、活动、人的互动关系©PMT Partners Ltd.

vsszan2065432207200512.jpg

▽游园戏光的“红砖酒店”——空间爆炸图©PMT Partners Ltd.

vsszan2065432207200513.jpg



整个动线遵循 “远观→步入园景→参观门厅→品牌介绍→沉浸体验→沙龙活动→重点展示→签约→茶歇” 的完整链路,对应 “览光、觅光、戏光、品光、嗅光、沐光” 六个体验阶段。从主入口花园到二层水院,从展厅到实验室,我们把整个浏览的过程分成不同的时间切片,每一个切片都会有独立的展示场景和光影互动节点,让来访者在迂回中不断邂逅光的不同形态。此外,我们与艾罗团队深入讨论每个时间切片的时长和解说的文稿,整个游览过程中让品牌的核心业务自然的融入体验过程当中,不去刻意的探讨具体的产品,更多的是去强调氛围,落地与服务的体系,从而去建立双方同频的认知和信任。


▽入口水院红砖景墙夜景©覃昭量

vsszan2065432207200514.jpg

▽入口水院红砖景墙夜景©覃昭量

vsszan2065432207200515.jpg



2.2 无界设计:建筑、景观与室内的一体化共生
加减智库认为,真正的沉浸式体验,在于打破建筑、景观与室内的边界。在艾罗创新工厂的设计中,通过材质、元素与情绪的连贯,构建出全程犹如游走在红砖艺术酒店之中的空间感知。


▽体现疍家水乡文化的艺术装置漂浮于水上©覃昭量

vsszan2065432207200516.jpg

▽艾罗照明的LOGO在红砖的映衬下©覃昭量

vsszan2065432207200517.jpg



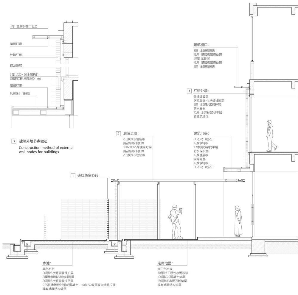
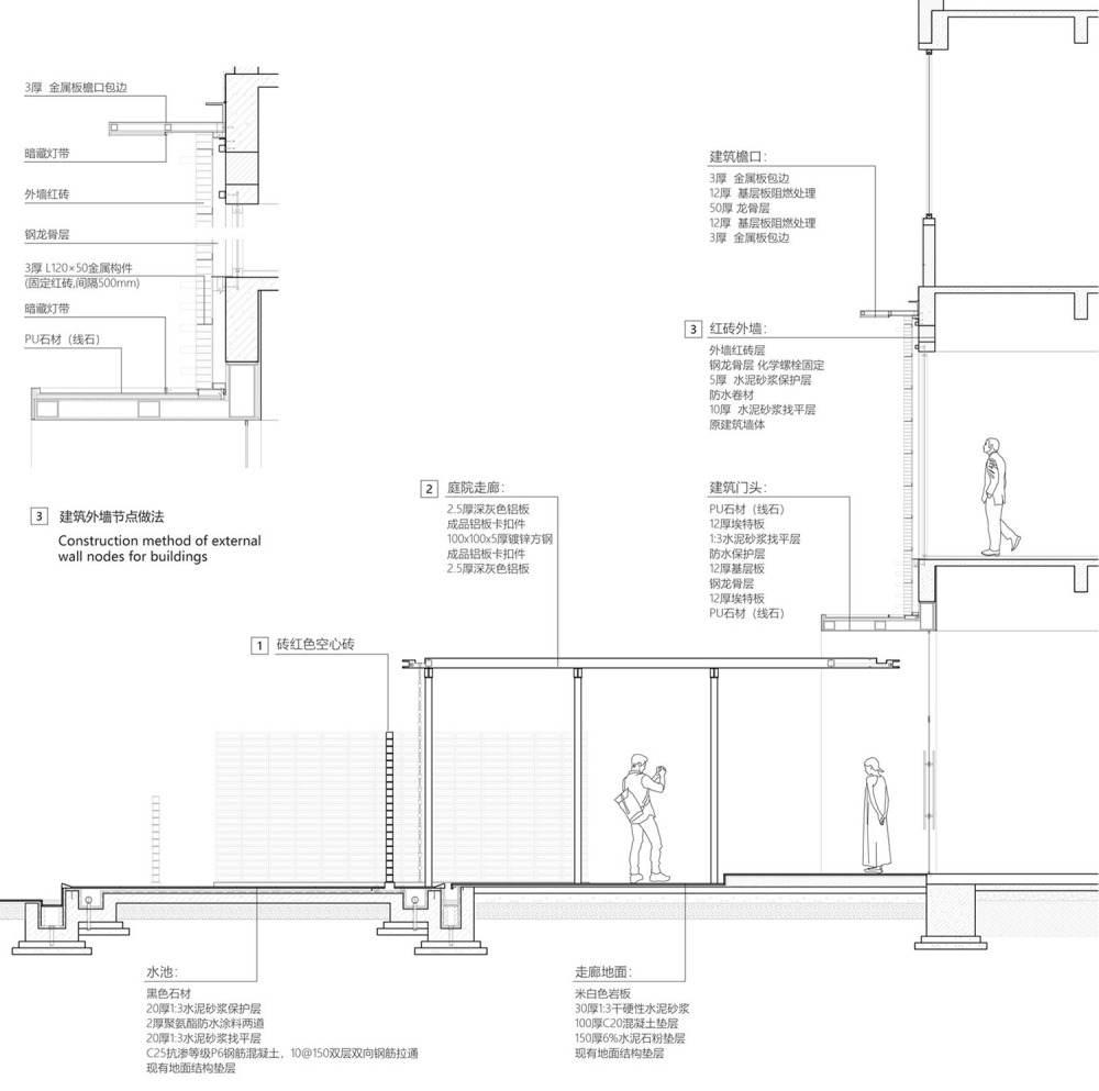
砖和水元素皆是连接内外的 “无界纽带”,设计在一层庭院设置景观浅水池,延伸到室内大堂;二层打造了围合式的水院,形成上下呼应的空间格局。水的温润特质不仅中和了工业空间的冰冷感,呼应了东涌疍家水乡 “亦耕亦渔” 的地域基因,更与灯光结合形成丰富的视觉效果 ——水下灯带与建筑倒影交织,成为展示艾罗全场景光环境解决方案的天然载体。通过红砖与水的全域渗透,“迂回动线、场景停顿、感官刺激” 的组合,我们让整个空间形成统一的情绪基调,让来访者完全脱离了 “工厂的效率感”,转而沉浸于 “艺术酒店的松弛感”。


▽水院红砖景墙灯光照明设计©PMT Partners Ltd.

vsszan2065432207200518.jpg

▽水院红砖景墙灯光照明设计© Peggy Tan, Glint Lighting Design

vsszan2065432207200519.jpg



三、空间策略:功能融合与品牌体验的落地
3.1 入境:光影序幕的庭院引导
来访者从主入口步入,首先遇到的是由空心砖砌筑的“光影屏风”——作为入口与建筑主体的过渡,它起到了空间缓冲的作用;作为“光”设计的第一个“舞台”,白天,阳光穿透空心砖的孔隙,在地面投射出疏密有致的光斑。夜晚,LED灯带透过砖缝勾勒出屏风的轮廓,形成“光的剪纸”效果,为“邂逅”埋下伏笔。


▽改造后的入口景观与外立面日景©覃昭量

vsszan2065432207200520.jpg

▽红砖立面©覃昭量

vsszan2065432207200521.jpg



曲折的连廊刻意拉长了行进路径,连廊的挑檐与格栅组合,延续了岭南建筑 “遮荫避雨” 的智慧,让光线柔和渗入,来访者在缓慢移动中,掠过红砖,穿过树影,临过池边,放松心态,逐渐进入室内 “与光对话” 的沉浸状态。


▽入口廊道©肖湘

vsszan2065432207200522.jpg

▽入口连廊挑檐©肖湘

vsszan2065432207200523.jpg

▽曲折迂回的游园路径©PMT Partners Ltd.

vsszan2065432207200524.jpg

▽红砖绿影相映成趣©覃昭量

vsszan2065432207200525.jpg



3.2. 探幽:游园路线的情绪牵引
通过红墙的限定,趟过水上的栈道进入室内接待大厅,庭院的水景连接到室内,成为一个无界的整体,微微倾斜的木饰面墙体随着曲折蜿蜒的步道倒影在水中。灯光从水下向上漫射,照亮木饰面的纹理,让墙体仿佛 “悬浮于水面”,进一步强化了空间的轻盈感。低矮的凭栏照亮了漂浮水上的栈道,引导着人们追随着灯光继续探索游园。


▽接待大堂休息区©覃昭量

vsszan2065432207200526.jpg

▽左:接待大堂前台;右:延续室外的水体景观到室内© 肖湘

vsszan2065432207200527.jpg

▽连续的游园路径©PMT Partners Ltd.

vsszan2065432207200528.jpg

▽木饰面墙体灯光照明节点©PMT Partners Ltd.

vsszan2065432207200529.jpg

▽木饰面墙体灯光照明节点©Peggy Tan, Glint Lighting Design

vsszan2065432207200530.jpg

▽接待大堂水景©肖湘

vsszan2065432207200531.jpg



当动线行至庭院深处,一条极具雕塑感的红色楼梯成为空间叙事的 “转折点”—— 螺旋上升的形态不仅强化了垂直交通的引导性,色彩上也对艾罗主题品牌色调产生了强烈的呼应。


▽楼梯的红色空心砖与室外景墙相呼应©覃昭量

vsszan2065432207200532.jpg

▽从楼梯回望一层大堂©覃昭量

vsszan2065432207200533.jpg

▽贯穿内外的水景元素©覃昭量

vsszan2065432207200534.jpg

▽从楼梯回望一层大堂©肖湘

vsszan2065432207200535.jpg

▽红色楼梯与大堂休闲区©肖湘

vsszan2065432207200536.jpg



楼梯外侧版嵌入暖调灯光,与红砖外立面形成材质与色彩的双重共鸣:灯光从楼梯外侧透出,当人们拾级而上,灯光层层亮起。人们从一层的 “景观庭院” 进入二层的 “室内水院”,完成 “与光邂逅” 的第一重升维。


▽楼梯侧板与踏步的灯光照明节点© Peggy Tan, Glint Lighting Design

vsszan2065432207200537.jpg

▽引导视觉与情绪向上的红色发光体量©覃昭量

vsszan2065432207200538.jpg

▽从梯井回看一楼休息区©覃昭量

vsszan2065432207200539.jpg



3.3 观心:水院光影的沉浸高潮
二层水院是 “游园戏光” 的核心场景,也是品牌体系实力展示的关键空间。设计通过镜面水池、雾化装置与隐藏式照明的组合,构建出东方的禅境空间 。阳光在水面折射出粼粼波光,灯带与建筑倒影交织,形成 “悬浮的光盒”。


▽二层水院©覃昭量

vsszan2065432207200540.jpg

▽倒映中的茶亭©PMT Partners Ltd.

vsszan2065432207200541.jpg



水院的灯光系统与艾罗的智能照明产品联动,来访者可通过APP 一键切换 不同的灯光情景模式,充分体现人因与节律照明的多维变化,直观感受艾罗 “全场景光环境” 的产品实力。


▽水院倒影©PMT Partners Ltd.

vsszan2065432207200542.jpg



为了强化沉浸感,我们在水院周边植入香氛系统,雪松与檀香的气味随水雾弥漫,配合潺潺水声,形成 “视觉 – 听觉 – 嗅觉” 的通感体验 —— 这种五感的沉浸,正是艾罗为酒店客户打造 “五星即吾心” 的理念缩影。


▽不同的功能的悬浮木盒围绕在水院边上©覃昭量

vsszan2065432207200543.jpg



围绕水院,我们布局了以五星级酒店核心功能区为原型的 “微缩光影剧场”,包括商务会议、行政酒廊、度假客房、商务宴会等功能空间。这些空间并非孤立的展示区,而是与办公功能深度融合 —— 行政酒廊同时承担客户洽谈功能,会议室搭载与酒店宴会厅同源的智能照明系统,办公区散落在水院周边,让员工与客户都能在 “酒店式场景” 中工作、沟通。我们希望通过这种布局,传递一种松弛感,让商务活动在写意自在的氛围中自然发生。


▽不同的功能的悬浮木盒围绕在水院边上©覃昭量

vsszan2065432207200544.jpg

▽行政酒廊吧台©覃昭量

vsszan2065432207200545.jpg

▽行政酒廊吧台©肖湘

vsszan2065432207200546.jpg



“木盒” 之间,围合出静谧的水院 —— 外立面的侧墙透过红砖的缝隙,光影从室外渗入室内,地面与墙面投射出 “星点光斑”,这些光斑随太阳高度角变化而移动,形成 “光的步道”。


▽阳光透过红砖照进水院©覃昭量

vsszan2065432207200547.jpg

▽木盒里的行政会议室©肖湘(右)

vsszan2065432207200548.jpg

▽充满光影变幻的办公小角落©覃昭量

vsszan2065432207200549.jpg
vsszan2065432207200550.jpg

▽小型的办公会客户室©覃昭量

vsszan2065432207200551.jpg



让 “光的体验” 融入日常工作的设计,水院周边散落着多个 “微型办公区”:有的在商务套房木盒的外侧,设置 1-2 人的临窗工位;有的在行政酒廊的吧台旁,配备高脚凳与笔记本电脑支架,还有的在连廊的转角处,设置小型会议桌,适合小组讨论。这些办公区自然地融入水院与 “木盒” 之间的缝隙中,员工可根据当天的工作需求自由选择办公的地点,也是一种松弛感的体验 。


▽酒店行政套房©肖湘

vsszan2065432207200552.jpg

▽木盒里的行政套房©覃昭量

vsszan2065432207200553.jpg



3.4 品艺——光影的实验与共创
在展览的最后阶段,在对微缩五星级酒店场景体验之后,我们会进入到一条科技与工艺的长廊,参与到艾罗的光影实验室以及产品共创空间。


▽光学实验室©覃昭量

vsszan2065432207200554.jpg



产品共创空间:设置 “光影共创实验室”,提供 “灯具定制工具包”——系统实时生成 3D 效果与光影模拟图,还可通过 VR 设备 “植入” 客户正在设计的酒店项目场景。而强大的产品库也和天花壁龛的灯光展示实时联动,根据用户的要求实现:即见即所得。


▽工艺展厅©覃昭量

vsszan2065432207200555.jpg



四、砖的诉说
“连一块平凡无奇的红砖都想超越自己本身”——大师的话语似乎用在中国智造转型的当下也再适合不过了。各行各业都在疯狂内卷,然而就算再平凡的自身也需要有着一颗be something的决心。


▽多种红砖的不同砌法©覃昭量

vsszan2065432207200556.jpg



而本次在艾罗项目选择使用红砖主要出于以下几点的考虑:
1从功能上,红砖透气性好、耐久性强,适配珠三角的气候特点;
2从品牌上,其暖色调与艾罗的品牌主色形成呼应,粗糙肌理传递出品牌 “温暖、有温度” 的核心调性,耐久性则隐喻着品牌对品质的坚守;


▽空心砖景观墙局部©覃昭量

vsszan2065432207200557.jpg

▽红砖墙形成丰富的光影变化 © 覃昭量 The red brick wall creates rich changes in light and shadow ©覃昭量

vsszan2065432207200558.jpg

3从文化上©覃昭量

vsszan2065432207200559.jpg



五:设计赋能智造,空间是品牌价值的具象表达
艾罗照明南沙创新工厂的设计,本质上是加减智库对 “中国制造 4.0 时代空间价值” 的一次回答 —— 它证明,工厂可以不再是 “冰冷的生产容器”,而是 “有文化、可体验、能叙事” 的品牌载体。实体企业的品牌升级需要空间作为支撑,而空间设计也必须紧扣产业的脉搏。


▽红砖在立面上根据室内功能形成的不同砌法©覃昭量

vsszan2065432207200560.jpg

▽红砖墙细部©覃昭量

vsszan2065432207200561.jpg



当外国友人穿行于红砖与水院之间,惊叹于 “这不像一家工厂,更像一家红砖艺术酒店” 时,这种 “认知落差” 恰恰是加减智库想表达的:通过 “游园戏光” 的叙事体验,让 “中国智造” 不再是抽象的口号,而是触手可及的光影、材质、情绪与服务。最后,我们想说的是—— “Even a brick wants to be something”(砖,亦有其志)——louis kahn


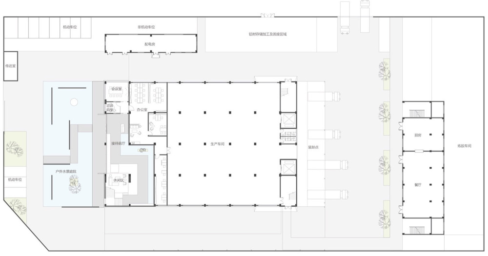
▽首层平面图© PMT Partners Ltd.

vsszan2065432207200562.jpg

▽二层平面图© PMT Partners Ltd.

vsszan2065432207200563.jpg
vsszan2065432207200564.jpg
vsszan2065432207200565.jpg
vsszan2065432207200566.jpg
vsszan2065432207200567.jpg
vsszan2065432207200568.jpg
vsszan2065432207200569.jpg
vsszan2065432207200570.jpg
vsszan2065432207200571.jpg
vsszan2065432207200572.jpg
vsszan2065432207200573.jpg
vsszan2065432207200574.jpg
vsszan2065432207200575.jpg
vsszan2065432207200576.jpg


项目名称:艾罗照明南沙创新工厂(红砖艺术酒店)
设计公司:加减智库建筑设计事务所
设计内容:建筑改造,景观设计,室内设计
完成年份:2024年7月
主持建筑师:赵炜昊、胡彦、曾喆
设计团队:关灏正、郭晓红、陈威、莫永龙、郭梓浠
项目地址:广东南沙
项目面积:13000㎡
照明设计:Peggy Tan, Glint Lighting Design
摄影:覃昭量、肖湘、加减智库设计事务所


AI文本分析中……
AI色彩命名中……
syhgdesign2026-1-23 01:35:31
感谢楼主辛苦分享
95qabc2026-1-23 20:31:33
谢谢分享!!!谢谢分享!
工具箱2026-1-26 11:29:41
感谢楼主辛苦分享
您需要登录后才可以回帖 登录 | 注册序赞号

快速回复 返回顶部 返回列表