宋屿雲庭 | 陆启水|2025 | 中国广东
vsszan206649270041321.png



时间是自然的诗篇,也是空间生长的印记。在佛山云庭项目中,时间不仅是设计的背景,更是塑造场所精神的参与者。建筑与庭院在时间的维度中相互渗透,共同演绎一场野趣、自然、古朴的空间叙事。景观不再是建筑的衬托,而是环境的主导者;建筑则退隐为景观的容器与画框,让自然成为主角。


vsszan206649270041322.png

△鸟瞰图,aerial view


本项目位于广东佛山陈村花卉世界,业主从事于景观植物销售行业,该地块作为植物销售基地使用,地块总面积约6200㎡,靠外圈(沿公路侧)为植物集中种植和销售区,靠内圈为核心景观庭院集中打造区,面积约2600㎡。老建筑位于核心景观庭院区东侧,坐东朝西,主立面面向核心景观庭院区,功能为庭院配套辅助用房。
该项目的设计内容为整体核心景观庭院打造与老建筑改造,设计旨在营造一个野趣、自然、古朴的"原生之境",庭院与建筑共生,回归自然本真,追求一种去人工化的、随时间生长的诗意氛围。
建筑改造的内容是一栋略显时代痕迹的三层老建筑,占地约130㎡。它位于核心庭院东侧,红色的条形瓷砖立面,带着八九十年代南方自建房的典型特征,与其身旁自然野趣的庭院景致,存在着一种微妙的隔阂。我们的任务,并非打造夺目的建筑主体,而是让这座建筑退隐,并最终与庭院共生。景观设计在前,建筑设计在后,整体景观设计呈现野趣、自然、古朴的设计风格,以景观设计为基调提供建筑改造设计依据,建筑所需做的,是从一个时代的遗留物,转变为一处融入景观的背景与"观景器"。


vsszan206649270041323.png
vsszan206649270041324.png

△原始场地,original ground


庭院设计
整个庭院拒绝刻意的形式与华丽的装饰。我们通过模拟自然生态的多层次植物配置(如本地乔木、观赏草、蕨类与地被植物的自然组合),营造丰富而随性的空间质感。让植物自由生长,形成荫蔽、路径与焦点,使庭院随着季节更迭呈现不同的生命状态,赋予场地独特的野趣与活力。


vsszan206649270041325.png
vsszan206649270041326.png

△庭院景观,courtyard landscape

vsszan206649270041327.png

△院中亭,Pavilion in the courtyard


景观布局注重探索式的体验序列。路径的铺装选用青石板、碎石等天然材料,以非规则的铺设方式,引导人们在迂回行进中不经意地发现不同的景致。核心水景的设计摒弃光洁的池壁,采用天然石材与湿生植物的自然过渡,营造出静谧古朴的意境,使其成为庭院精神的凝聚点。


vsszan206649270041328.png
vsszan206649270041329.png

△青石步道,bluestone footpath

vsszan2066492700413210.png

△绿野仙踪,the wizard of oz


景观在此并非建筑的配景,而是环境的定义者。所有景观元素的设计,均以将建筑"包裹"和"消解"为目的。面向建筑主立面的区域,植物层次经过精心考量,既保证室内观景的视野通透,又让建筑底层融入绿意之中。最终,景观成为主体,建筑则"退隐"为景观中的一幅画框、一个容器,共同成就一种浑然天成的空间气质。


vsszan2066492700413211.png

△隐匿的建筑,hidden buildings

vsszan2066492700413212.png

△共生与连接,symbiosis and connection


建筑设计
原建筑改造难点在于形态和立面构成复杂,与现有庭院不协调,需在不改变建筑原始框架的情况下,削弱建筑与景观的违和感,以达到共生状态;景观设计在前,建筑设计在后,建筑设计上需考虑如何与景观深度融合的问题。
造型重构(做减法):改造的第一步是做减法。我们移除了立面上所有冗杂的装饰性构件,剥离其多余的内容,让建筑体量回归最清晰、纯粹的几何形态。


vsszan2066492700413213.png

△建筑立面,architecture facade


界面消隐(坡屋檐与灰空间):在建筑的主要景观面设计坡屋面挑檐结构,其形态源自于传统坡顶的现代化演绎,用深灰色铝板代替传统瓦屋面,简化建筑线条,弱化视觉效果,形成檐下灰空间。在此驻足,光影斑驳,眼前庭院舒展,屋檐为人提供了与自然互动最富诗意的停顿点。


vsszan2066492700413214.png

△建筑立面,architecture facade

vsszan2066492700413215.png
vsszan2066492700413216.png

△金属挑檐,metal eaves

vsszan2066492700413217.png

△檐下空间,eaves space


通透界面(门窗设计):在门窗的设计和选择上,为将尽可能多的庭院景观通过门窗引入室内空间,建筑师选用大玻璃与极简框扇。同时在一层直面庭院水池核心景观的茶室空间,采用大玻璃对开移门。当门扇闭合,呈现一幅精心裁切的立体画框,可将庭院四季收纳于室内;当门扇开启,物理的界限彻底消失,茶室与庭院连为一体,脚步声、风声、水声交织,完成了建筑空间与自然景观的深度融合。


vsszan2066492700413218.png

△镜中景,scene in the mirror

vsszan2066492700413219.png

△框景,framed scenery


材料契合(立面材质):整体立面风格塑造上,建筑师刻意回避了炫技与华丽的表达,整体立面覆以平实的深灰色外墙涂料,这种质朴无华的选择,恰恰是对周边环境最真诚的回应。它让建筑的表皮随着光阴流转产生细微的痕迹,使其仿佛从土地中生长而出,散发出一种安静、温润的时间质感,与庭院的古朴气息浑然天成。


vsszan2066492700413220.png

△建筑立面,architecture facade

vsszan2066492700413221.png

△建筑立面,architecture facade

vsszan2066492700413222.png

△内庭院,inner courtyard

vsszan2066492700413223.png

△生长的建筑,growing architecture


体验强化(檐下回廊):沿建筑一圈回廊。屋顶出檐,一个延伸而出的檐下灰空间,划出一片半明半暗的过渡地带。坐在室内与户外的交界处,身体的一半在檐下的阴翳中,感受茶室的庇护与安宁;另一半则能感知庭院的微风、细雨的气息和阳光的温度,模糊了内外的绝对界限,让人处于一种既内且外、安然观照的禅定状态,是精神向外探出的触角。


vsszan2066492700413224.png

△檐下空间,eaves space


触感体验(茶室细节):茶室内铺设的羊皮纸需要赤足进入,被轻触、被感知。赤足其上,能感到纸张表面微妙的阻尼与温度,能够感受到近乎肌肤相亲的私密触感。


vsszan2066492700413225.png

△茶室一景,ascene in the teahouse

vsszan2066492700413226.png

△茶室空间,tea room space



设计总结
佛山云庭项目,是一次在严格限制条件下寻求诗意栖居的积极探索。通过建筑造型重构、界面消隐、材料契合等多策略设计,旨在将一个时代的遗留物转化为与新生的自然景观共生的现代空间。我们不仅要解决原建筑与景观不协调的难题,更通过现代极简的设计语言,营造出静谧、质朴且富有深度的空间体验,最终成就了一栋生长于庭院中的建筑。这是理性改造的感性表达,让人在静谧质朴中回望过去、感受当下、望眼未来。


vsszan2066492700413227.png

△建筑立面,architecture facade

vsszan2066492700413228.png

△一层平面图,first floor plan

vsszan2066492700413229.png

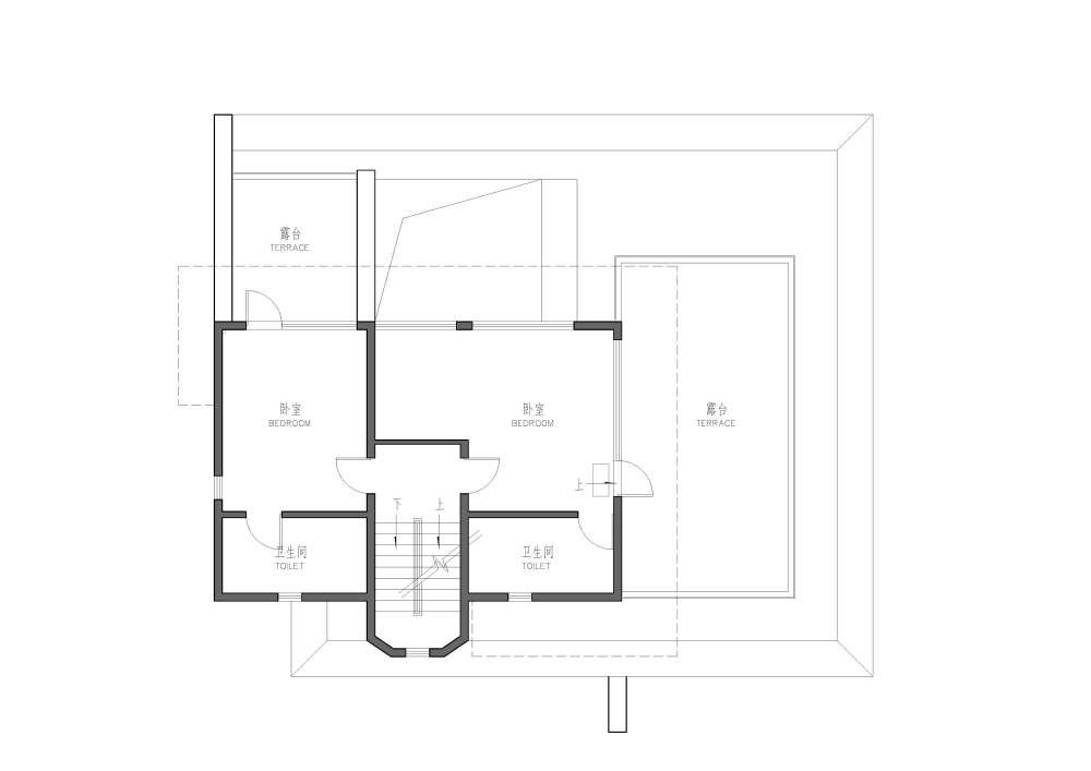
△二层平面图,second floor plan

vsszan2066492700413230.png

△三层平面图,third floor plan

vsszan2066492700413231.png

△立面图,elevation plan

vsszan2066492700413232.png
vsszan2066492700413233.png

△立面图,elevation plan

vsszan2066492700413234.png
vsszan2066492700413235.png

△剖面图,building section



项目名称|宋屿雲庭
项目地点|中国 广东 佛山
建筑设计|陆启水建筑师事务所
主持建筑师/项目主创|陆启水
专业负责|李国斌、谢树藤
设计团队|章仕杰、马卿、孙义群、陆启跃、张晨、范泽冉、杨陈楠
庭园营造|园居生活、熊亮、阿君、汤福星、甘谷生
庭院设计支持|谢应敏、弘毅
庭院面积|6200㎡(核心庭院面积2600㎡)
建筑面积(改造)|254㎡
设计时间|2024/04 - 2024/10
建设时间|2024/05 - 2025/06
项目摄影|知筑影像 Arch Nango
撰文|陆启水、李国斌、谢树藤


vsszan2066492700413236.png

陆启水LQS Architects创始人


RIBA 英国皇家特许注册建筑师、高级工程师、国家一级注册建筑师、中国建筑学会资深会员
陆启水一直致力探索本土文化,提出了“低碳奢”的理念,指的是在源头上,从建筑设计开始,运用传统的节能智慧,在居住中兼顾节能和舒适。并且在多个实际项目实践中得到应用,并且大力在缺乏专业知识的自建别墅领域推广,在降低碳排放方面做出了一定的贡献,并且获得了 WAN、DNA、MAP、IDA 等20多个重要国际奖项,2021年作品入选中国建筑学会会刊《建筑实践》,同时在10多个国家的专业媒体上发表, 2023年被聘为WAN Global Awards 国际评审专家。
陆启水建筑设计作品涵盖了教育、酒店、住宅、办公等多个领域,同时在宁波大学担任副教授工作,并且发表了多篇建筑论文。


vsszan2066492700413237.png


陆启水建筑设计事务所20多年来专注于度假酒店及高端别墅设计,设计完成数家高端度假酒店及高端别墅的项目。设计作品遍布全国20多个省市,以及海外市场。
在2014年陆启水在担任宁波大学教授的期间创立了陆启水建筑设计事务所,并因业务发展在2023年设立了上海分公司。目前事务所专注于高品质小型建筑设计,事务所坚持“设计美好”作为自己的使命,从而实现一家“创造美好”的公司愿景。


    • 转自:环球设计
    • 图片©陆启水建筑师事务所
    • 编辑:序赞网
    • 阅读原文
    AI文本分析中……
    AI色彩命名中……

    暂时没有评论,你回一个呗!~

    您需要登录后才可以回帖 登录 | 注册序赞号

    快速回复 返回顶部 返回列表