Villa Zai PHUKET | IDIN Architects | 2024 | 泰国



Villa Zai 是一家精品海滨酒店,主要面向整栋包场的私人团体入住。项目服务于希望以紧密群体形式共度时光的客人,同时也面向寻求一处可同时承载婚礼仪式与婚宴接待的完整婚礼场地的情侣。酒店仅设九个住宿单元(共十一间卧室),有意将入住人群限定为新郎、新娘及其最亲近的家人和朋友。其余宾客可入住业主位于主场地附近、距离较近的姊妹物业。


▽项目鸟瞰©Possathorn Hanratchata and Chakkraphob Sermphasit

vsszan206866060852581.jpg
vsszan206866060852582.jpg
vsszan206866060852583.jpg

▽顶视© Possathorn Hanratchata and Chakkraphob Sermphasit

vsszan206866060852584.jpg

▽近景© Possathorn Hanratchata and Chakkraphob Sermphasit

vsszan206866060852585.jpg
vsszan206866060852586.jpg



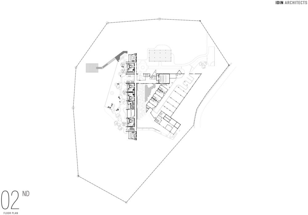
项目坐落于一处弧形悬崖之上,拥有面向安达曼海的 180 度开阔视野。总体规划通过抬升并重新组织建筑布局,避免阻断自然水流向海岸的路径,同时尽可能保留现有树木——包括临海一线的植被。建筑由三栋单体构成,呈错落布置的三角形形态,朝向南—西南方向,以有效捕捉海风。这一布局减少了对地形的过度开挖,并在场地中央形成一个自然连接景观视线与共享活动的庭院空间。不同的建筑标高使项目各个区域均可获得海风,并享有多样化的观景角度。主要住宿翼楼与海岸线平行布置,确保每一间客房均可直面海景。


▽不同风景的观景角度©IDIN Architects

vsszan206866060852587.jpg

▽项目概览© Possathorn Hanratchata and Chakkraphob Sermphasit

vsszan206866060852588.jpg

▽项目外观© Possathorn Hanratchata and Chakkraphob Sermphasit(上),W Workspace (下)

vsszan206866060852589.jpg
vsszan2068660608525810.jpg

▽入口© W Workspace

vsszan2068660608525811.jpg
vsszan2068660608525812.jpg
vsszan2068660608525813.jpg

▽酒店走廊© W Workspace

vsszan2068660608525814.jpg
vsszan2068660608525815.jpg

▽休闲娱乐区© W Workspace(上)Possathorn Hanratchata and Chakkraphob Sermphasit(下)

vsszan2068660608525816.jpg
vsszan2068660608525817.jpg



客房在设计上采用了较常规更为宽阔的临海面宽,以将海景充分引入室内。部分单元采用复式布局,而标志性套房则设置了三间卧室,供新郎、新娘及其家人使用,作为婚礼日前的专属准备空间。建筑上层设有一条近 40 米长的屋顶泳池及一处露天按摩浴池,框取壮阔的日落景象,成为酒店最具代表性的亮点之一。


▽观景角度©IDIN Architects

vsszan2068660608525818.jpg

▽会客厅© W Workspace

vsszan2068660608525819.jpg
vsszan2068660608525820.jpg
vsszan2068660608525821.jpg

▽卧室© W Workspace

vsszan2068660608525822.jpg
vsszan2068660608525823.jpg

▽卧室细部© W Workspace

vsszan2068660608525824.jpg

▽卫生间© W Workspace

vsszan2068660608525825.jpg
vsszan2068660608525826.jpg
vsszan2068660608525827.jpg

▽卫生间细部© W Workspace

vsszan2068660608525828.jpg



紧邻住宿翼楼的是中央建筑,其布置方向与客房翼楼垂直。该建筑作为一处轻松、类似大堂的公共空间,供宾客非正式聚集,在自然通风的环境中欣赏周边景观。建筑内整合了健身区与一间小型私人影院,并作为通往前部建筑的连接节点。前部建筑与道路平行布置,容纳全天候餐厅、游戏室与酒吧,以及可对外开放的水疗空间。同时,该建筑还整合了后勤(BOH)功能区,并通过主干道实现直接出入,以保障运营效率。


▽在自然通风的环境中欣赏周边景观© W Workspace

vsszan2068660608525829.jpg

▽餐厅© W Workspace

vsszan2068660608525830.jpg
vsszan2068660608525831.jpg

▽餐厅细部© W Workspace

vsszan2068660608525832.jpg
vsszan2068660608525833.jpg

▽酒吧©Possathorn Hanratchata and Chakkraphob Sermphasit

vsszan2068660608525834.jpg
vsszan2068660608525835.jpg
vsszan2068660608525836.jpg

▽水疗空间© W Workspace

vsszan2068660608525837.jpg
vsszan2068660608525838.jpg

▽水疗空间细部© Possathorn Hanratchata and Chakkraphob Sermphasit

vsszan2068660608525839.jpg

▽小型私人影院© W Workspace

vsszan2068660608525840.jpg

▽健身房© W Workspace

vsszan2068660608525841.jpg

▽室内装饰细部© W Workspace

vsszan2068660608525842.jpg
vsszan2068660608525843.jpg



三栋建筑的整体规划强调清晰性、连续性与顺畅的流线组织,并针对两类主要使用人群进行定制:私人度假客人与婚礼团队。室内设计灵感源自安达曼海的傍晚氛围,尤其是日落时分天空与海面之间的过渡色彩。设计目标在于“捕捉有意义的瞬间”——从一生仅有一次的婚礼庆典,到亲密友人之间难忘的相聚时刻。


▽夕阳下的滨海酒店© Possathorn Hanratchata and Chakkraphob Sermphasit

vsszan2068660608525844.jpg

▽屋顶泳池© Possathorn Hanratchata and Chakkraphob Sermphasit

vsszan2068660608525845.jpg

▽夜景鸟瞰© Possathorn Hanratchata and Chakkraphob Sermphasit

vsszan2068660608525846.jpg

▽夜景© Possathorn Hanratchata and Chakkraphob Sermphasit

vsszan2068660608525847.jpg



材料与室内元素的选择进一步强化了这一目标。半反射表面与柔化的转角处理,营造出边界被轻柔模糊的空间感,暗示天空与海洋的交融。整体色彩体系克制而纯净,以洁白色调及对自然光高度敏感的表面为主,使各个空间在一天之中呈现出细微变化。“金色时刻”与“蓝色时刻”由此成为空间体验的一部分。从建筑层面而言,白、灰、黑的运用使宾客的活动——尤其是夜间的婚礼与庆祝活动——成为场所中真正的视觉焦点。


▽平面©IDIN Architects

vsszan2068660608525848.jpg
vsszan2068660608525849.jpg
vsszan2068660608525850.jpg

▽立面©IDIN Architects

vsszan2068660608525851.jpg
vsszan2068660608525852.jpg
vsszan2068660608525853.jpg
vsszan2068660608525854.jpg
vsszan2068660608525855.jpg
vsszan2068660608525856.jpg
vsszan2068660608525857.jpg
vsszan2068660608525858.jpg
vsszan2068660608525859.jpg
vsszan2068660608525860.jpg
vsszan2068660608525861.jpg
vsszan2068660608525862.jpg
vsszan2068660608525863.jpg
vsszan2068660608525864.jpg
vsszan2068660608525865.jpg
vsszan2068660608525866.jpg
vsszan2068660608525867.jpg
vsszan2068660608525868.jpg
vsszan2068660608525869.jpg
vsszan2068660608525870.jpg
vsszan2068660608525871.jpg
vsszan2068660608525872.jpg
vsszan2068660608525873.jpg
vsszan2068660608525874.jpg
vsszan2068660608525875.jpg


PROJECT TITLE Villa Zai PHUKET
PROJECT TYPE Hotel
LOCATION https://maps.app.goo.gl/fEt1AdStcfaPV93m6
ADDRESS 12, Soi Lam Sai, Karon, Mueang Phuket District, Phuket 83100, Thailand
START-COMPLETE DATE 2019-2024
OPENING YEAR 2024
USABLE AREA (SQM) 4,000
OWNER Villa Zai
ARCHITECT IDIN Architects
INTERIOR DESIGNER IDIN Architects
LANDSCAPE ARCHITECT TROP – terrains + open space
CONTRACTOR PHOTOGRAPHER W Workspace Company Limited, Possathorn Hanratchata, Chakkraphob Sermphasit

AI文本分析中……
AI色彩命名中……
syhgdesign2026-2-7 00:21:00
感谢楼主辛苦分享
95qabc2026-2-7 00:50:18

谢谢分享!!!谢谢分享!
您需要登录后才可以回帖 登录 | 注册序赞号

快速回复 返回顶部 返回列表