艾录集团总部园区 | 同一建筑设计 | 2025 | 中国上海



艾录集团总部园区位于上海金山,项目启动之际正值企业成功上市。作为深耕工业纸包装、塑料包装及智能包装系统的行业领先企业,新总部园区被构想为承载企业形象与未来发展的空间载体。


▽总部办公楼正面日景©筑作视觉

vsszan206985121231161.jpg

▽总部园区日景©筑作视觉

vsszan206985121231162.jpg



基地占地约76424.3万平方米,呈东西向狭长布局。总部办公楼位于场地东南角,直面城市主干道,强化企业展示界面;南侧设置景观水面,以柔性空间缓和建筑体量,并为员工提供滨水休憩场所。办公楼以西依次布置印刷与制袋等生产厂房,总建筑面积约120067.29万平方米。


▽晨光中的办公大楼©筑作视觉

vsszan206985121231163.jpg
vsszan206985121231164.jpg

▽北侧厂房日景©筑作视觉

vsszan206985121231165.jpg

▽总部园区北侧日景©筑作视觉

vsszan206985121231166.jpg



一条东西向的二层空中参观廊道连接办公与厂房区域,使生产流程对访客可视化,构建开放、透明的工业展示空间。


▽办公大楼局部©筑作视觉

vsszan206985121231167.jpg

▽办公大楼南侧局部©筑作视觉

vsszan206985121231168.jpg

▽办公大楼局部细节©筑作视觉

vsszan206985121231169.jpg



总部办公楼的设计概念源于“包装盒”的堆叠意象。大堂、办公、展示及休闲等功能被拆解为不同尺度的体块,并通过错动组合形成层次丰富的露台与公共平台,引入自然采光与景观视线,营造开放而富有活力的办公环境。


▽办公大楼大堂入口©筑作视觉

vsszan2069851212311610.jpg

▽办公大楼进口©筑作视觉

vsszan2069851212311611.jpg

▽办公大楼首层院落©筑作视觉

vsszan2069851212311612.jpg



立面设计结合玻璃幕墙、铝板与穿孔铝板,隐喻包装材料的多样性。厂房立面则采用统一的波纹钢板体系与企业主题色,形成简洁、高效且具有整体感的工业建筑形象。项目在满足高效生产的同时,强调空间的人性化与企业精神的表达。


▽办公大楼幕墙细节©筑作视觉

vsszan2069851212311613.jpg

▽办公大楼立面细节©筑作视觉

vsszan2069851212311614.jpg

▽厂房立面细节©筑作视觉

vsszan2069851212311615.jpg



室内设计
上海艾录公司是国际知名的工业与消费品包装制造商,以工业用纸包装领域起家,其新总部空间以核心业务—造纸为设计主线,通过一二层的功能组合(公共接待+员工放松+业务展示)实现多元但统一的空间体验逻辑:既服务外部访客,也满足员工需求,同时体现企业专业形象,所有功能区域都在一个清晰的设计理念下协同运作。


▽AILU 大堂©瀚墨视觉

vsszan2069851212311616.jpg

▽AILU 大堂等待区©瀚墨视觉

vsszan2069851212311617.jpg



在原始的规划阶段,整个挑空空间就被划分为了两层,整体层高显得比较局促。基于这种情况,设计师从纸的概念中延伸抽象出了一种弧面镂空造型。这种镂空构造在视觉上呈现出一种被艺术化处理的“树洞”意象, 使 “树洞”与“纸”的概念在感知层面形成隐喻性的呼应,强化了空间的情感叙事;同时,其形态亦巧妙契合品牌名称“AILU”中字母“A”的轮廓,实现了功能构件、文化意象与品牌符号的多重关联,非常有趣。而二层整体的弧面造型则如人张开双臂的姿态,传递欢迎之意,增强了空间的温度感与亲和力。


▽AILU 大堂树洞©瀚墨视觉

vsszan2069851212311618.jpg



整个空间氛围偏向自然系,像源自于自然界的纸张一样,比如运用洞石肌理艺术漆所营造出的白色和浅木色,这是整个空间传达出放松的自然感的基础。与此同时,设计师将品牌色--生巧色巧妙地融入空间肌理与细节之中。作为品牌色,它的加入在松弛自的氛围基础上保持了空间统一的品牌体验,并通过色彩的情感锚定作用,促进了员工的归属感。


▽AILU 大堂吧角度©瀚墨视觉

vsszan2069851212311619.jpg
vsszan2069851212311620.jpg



从一楼大厅通往二层的长楼梯上,设计以活字印刷术为灵感,通过错落堆砌的活字模块呈现企业标语,这种表达方式呼应了企业的另一核心业务--印刷,同时也使空间本身成为了品牌理念的具象延伸。与此同时,巨大的弧面拱门与贯穿其中的曲线元素共同丰富了区域空间的律动感与动态层次。墙面艺术装置由印刷中常用的CMYK印刷标准色色块组成,空白色块组成品牌各称”AILU”字样,其余色块则作为互动装置,供来访宾客签名留念,增强空间的参与感与记忆点。


▽AILU 活字印刷装置阶梯©瀚墨视觉

vsszan2069851212311621.jpg

▽AILU 签名艺术墙©瀚墨视觉

vsszan2069851212311622.jpg



泳池区延续整体设计语言,品牌色与弧形元素穿插运用以强化空间的统一性与流动性,形成连贯的视觉识别特征。背景墙中,设计师将品牌标识以半隐半现的方式呈现,利用水面的倒影将其完整还原,形成视觉上的对称与平衡,增强空间的层次感与互动趣味。标识内采用马赛克瓷砖拼贴出花卉图案,丰富材质肌理,同时与室外丰富的自然绿植相呼应。


▽AILU 泳池©瀚墨视觉

vsszan2069851212311623.jpg

▽总部办公楼正面夜景©筑作视觉

vsszan2069851212311624.jpg

▽总部办公大楼夜景©筑作视觉

vsszan2069851212311625.jpg

▽园区夜景鸟瞰©筑作视觉

vsszan2069851212311626.jpg

▽项目区位图©TYArchitects

vsszan2069851212311627.jpg

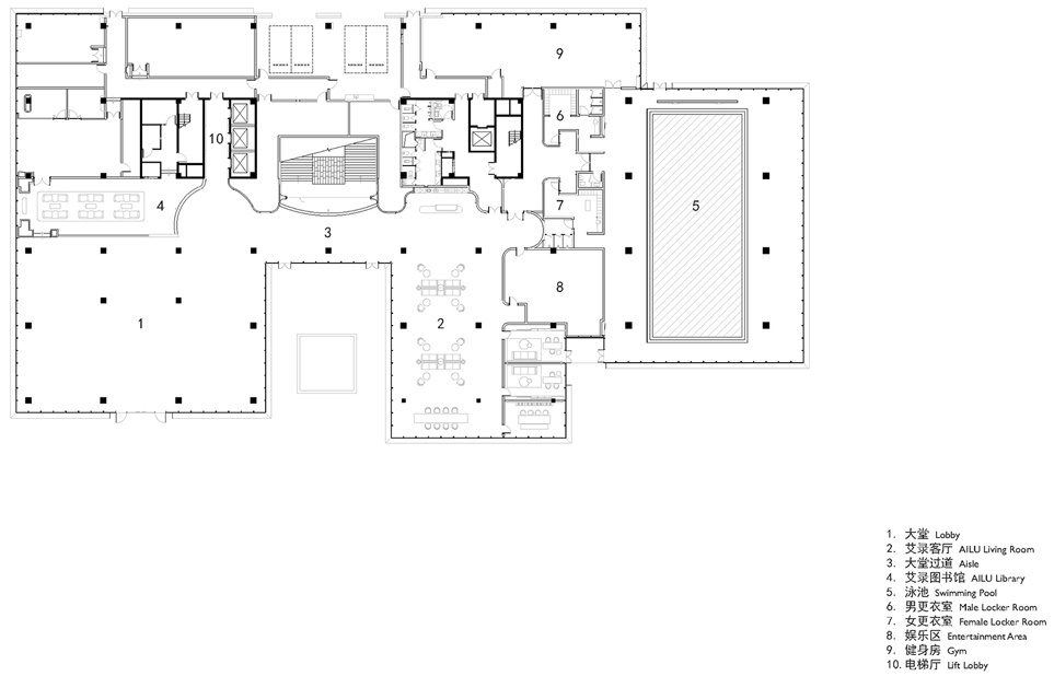
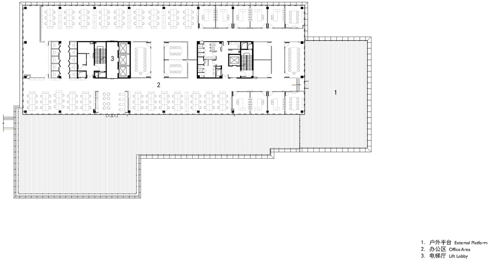
▽一、二、三层平面©TYArchitects

vsszan2069851212311628.jpg
vsszan2069851212311629.jpg
vsszan2069851212311630.jpg

▽剖面图©TYArchitects

vsszan2069851212311631.jpg
vsszan2069851212311632.jpg
vsszan2069851212311633.jpg

▽立图©TYArchitects

vsszan2069851212311634.jpg
vsszan2069851212311635.jpg
vsszan2069851212311636.jpg
vsszan2069851212311637.jpg
vsszan2069851212311638.jpg


项目名称:艾录集团总部园区
建筑设计:TYArchitects
施工图设计:上海宝厦建筑设计有限公司
室内设计:上海韦添梁建筑设计咨询有限公司
灯光设计:上海辰沁灯光设计有限公司
景观设计:里行设计咨询(上海)有限公司
业主单位:上海艾录包装股份有限公司
项目地点:中国 · 上海市金山区
建筑面积:120067.29㎡
用地面积:76424.3㎡
项目类型:总部园区 / 办公与工业建筑
功能构成:总部办公楼、印刷车间、制袋车间、参观廊道、景观及水体空间
设计概念:源自包装盒堆叠的建筑形态
主要材料:玻璃幕墙、铝板、穿孔铝板、波纹钢板
结构形式:钢筋混凝土结构 + 钢结构
景观设计:滨水景观与多层露台空间
建成时间:2025年
摄影:筑作视觉

AI文本分析中……
AI色彩命名中……
syhgdesign2026-3-3 01:09:28
感谢楼主辛苦分享
您需要登录后才可以回帖 登录 | 注册序赞号

快速回复 返回顶部 返回列表