清筑湘艺 | 直岩设计 | 2026 | 中国上海
vsszan207005130044281.png
vsszan207005130044282.png



本案设计围绕品牌核心理念“正本清源、共‘湘’美好”展开,其中“清”是灵魂所在,它不仅是食材与技艺的追求,也应成为空间的气质。设计师希望通过设计,将“清材、清艺、清境”的美学主张,转化为可感知、可沉浸的用餐体验。

01
PURE ESSENCE
清韵本真
空间设计从“清”字出发,材质与造型皆服务于这一主题。入口处,明厨亮灶的台侧一幅笔力遒劲的书法“清”字,成为视觉与理念的起点。
它既是一种宣告,也是一次邀约,让食客在步入的瞬间,便能领会品牌专注本真、回归纯粹的态度。


vsszan207005130044283.png
vsszan207005130044284.png



一层大厅以深灰、纯白与原木构建起清雅的空间基调。深灰铺陈沉稳,白色提亮视野,木色温润其间。三种色彩平衡得恰到好处,不沉闷,不轻浮,只有一种洗尽铅华的安静。


vsszan207005130044285.png
vsszan207005130044286.png



空间结构上,局部下沉的方形吊顶巧妙划分了区域,也赋予空间生动的层次。浑圆的原木立柱以柔和的形态中和了直线的利落,与空中悬垂的球形灯具相映成趣。


vsszan207005130044287.png
vsszan207005130044288.png



主墙面透光宣纸大面积留白,仅以墨色书写“清材、清艺、清境”的品牌箴言。书法的艺术性与品牌的理念性在此合二为一,墨迹的浓淡干湿仿佛诉说着食材挑选的严谨与技艺锤炼的功夫,让空间的“清”意有了文化的注脚。


vsszan207005130044289.png
vsszan2070051300442810.png
vsszan2070051300442811.png
vsszan2070051300442812.png



02
HIBISCUS RED
芙蓉红印
通往二楼的楼梯间,转折抬头间,那抹芙蓉红再次跃入眼帘。它像是一个贯穿始终的视觉符号,在移步换景间,留下温暖的印记,提示着品牌的存在,也让过渡空间有了情感的驻足点。


vsszan2070051300442813.png
vsszan2070051300442814.png



二层原始结构较为狭长,为破解单调,设计师以半通透的隔断来塑造节奏。特别是玻璃砖隔墙的运用,既划分了区域,又保持了视线的延伸与光线的流动,让空间显得开阔而明亮。


vsszan2070051300442815.png
vsszan2070051300442816.png



得益于窗户,室外树影透过百叶窗格,被梳理成一道道光帘,随着时间在室内缓缓移动。空间因此有了呼吸,有了与自然的连接。


vsszan2070051300442817.png
vsszan2070051300442818.png
vsszan2070051300442819.gif
vsszan2070051300442820.png



另一侧玻璃砖墙,人影绰约,举止隐约。这种可见却不可辨的朦胧,为空间增添了一层生动而优雅的趣味,静中有动,虚实相生。


vsszan2070051300442821.gif
P. 19
vsszan2070051300442822.png



二层主要设置大桌与独立包间。设计师以方圆结合的桌型布局来打破长空间的单调。天花设计随之呼应,通过不同高度与色调的对比,清晰界定出各用餐区域。


vsszan2070051300442823.png
vsszan2070051300442824.png



镜面天花的运用更是一处巧思,它不仅反射了下方的造型吊灯,使光影成倍延展,更在视觉上打破了空间的低矮与狭长感,营造出一种深邃而富于戏剧性的场景效果。


vsszan2070051300442825.png
vsszan2070051300442826.png
vsszan2070051300442827.png



03
AUSPICIOUS CLOUD
典雅祥云
包厢的门把手经由设计师精心设计,造型来自品牌标志芙蓉花,表面覆以红色祥云浮雕肌理,透露出典雅的中式韵味。


vsszan2070051300442828.png
vsszan2070051300442829.png
vsszan2070051300442830.png



灯光以天际灯烘托出柔和氛围,局部弧形天花软化边界,点缀的插花带来生机,材质上注重虚实对比与质感碰撞。
这一切共同围合出一个清雅、舒适、专注于美食与交谈的沉浸式空间。


vsszan2070051300442831.png
vsszan2070051300442832.png
vsszan2070051300442833.png
vsszan2070051300442834.png

分析图

vsszan2070051300442835.png

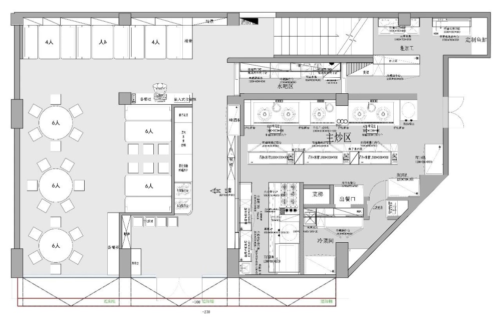
1F平面图

vsszan2070051300442836.png

2F平面图



- 项目名称 -上海金湘隆
- 设计机构 -直岩建筑设计
- 设计团队 -朱晓燕 周宗亮
- 项目施工 -上海璞枳建筑设计工程有限公司
- 项目地址 -上海 安亭
- 项目摄影 -恩万摄影 左小北


DESIGNER

vsszan2070051300442837.jpeg

朱晓燕

直岩建筑设计创始人



vsszan2070051300442838.png


直岩建筑设计(原植岩建筑设计)由朱晓燕女士于2020年创立于上海,董科儿女士2024年作为合伙人加入,直岩由此实现了室内、建筑、景观全专业的项目设计闭环。
直岩的核心团队拥有15年以上的一线设计经验,在长年及大量的项目设计背景下,深知挖掘项目根本性问题、核心需求之于项目长久成功的重要性,也深知根植于项目在地性和文化脉络的之于项目鲜活生命力的重要性。我们希望通过设计唤醒场地生命力,提供持久价值而非网红效应,用设计为项目创造真正的商业价值。


    • 转自:LJ看设计
    • 图片©直岩设计
    • 编辑:序赞网
    • 阅读原文
    AI文本分析中……
    AI色彩命名中……
    syhgdesign2026-3-3 01:18:23
    感谢楼主辛苦分享
    dvtpter2026-3-13 00:15:23
    您需要登录后才可以回帖 登录 | 注册序赞号

    快速回复 返回顶部 返回列表