西昌建川电影博物馆 | 汤桦建筑 | 2025 | 中国四川



西昌建川电影博物馆聚落位于西昌市安宁河河谷地区西昌高铁新城片区中心位置,总体布局为“十七展馆+五大片区”,分为“公益性博物馆项目”和“西昌建川电影博物馆项目”两大部分。项目总规划用地约1200亩,总建筑面积约26.5万平方米,总投资约70亿。该项目由建川博物馆馆长樊建川率专家团队进行总体规划设计。


▽远景© 毫厘建筑摄影

vsszan207271051011441.jpg
vsszan207271051011442.jpg

▽外观概览© 毫厘建筑摄影

vsszan207271051011443.jpg
vsszan207271051011444.jpg



十七个展馆包括世界电影发展馆、中国电影发展馆、电影摄影馆、纪录科教片陈列馆、电影声音馆、电影美术馆、故事片陈列馆、电影海报馆、儿童片陈列馆等。目前正在建设的有中国电影发展馆、电影摄影馆、故事片陈列馆、纪录片·科教片馆等。所有展馆预计2023年底全面建设完成。


▽基地分析© 汤桦建筑设计事务所有限公司

vsszan207271051011445.jpg

▽限制条件© 汤桦建筑设计事务所有限公司

vsszan207271051011446.jpg

▽南立面© 毫厘建筑摄影

vsszan207271051011447.jpg
vsszan207271051011448.jpg

▽东立面© 毫厘建筑摄影

vsszan207271051011449.jpg

▽西立面© 毫厘建筑摄影

vsszan2072710510114410.jpg

▽北立面© 毫厘建筑摄影

vsszan2072710510114411.jpg

▽外观近景© 毫厘建筑摄影

vsszan2072710510114412.jpg



我司负责设计纪录片陈列馆位于区域的核心位置,紧邻规划的重要轴线——星光大道。在本案设计中,我们认为纪录片作为一种电影题材,本身有着真实和真诚的特点。考虑到西昌的地域性气候与展陈的需要,设想了一个不同于以往的、没有气候边界的“真实”博物馆。


▽概念草图© 汤桦建筑设计事务所有限公司

vsszan2072710510114413.jpg

▽设计生成© 汤桦建筑设计事务所有限公司

vsszan2072710510114414.jpg

▽广场空间© 汤桦建筑设计事务所有限公司

vsszan2072710510114415.jpg

▽爆炸分析© 汤桦建筑设计事务所有限公司

vsszan2072710510114416.jpg

▽入口© 毫厘建筑摄影

vsszan2072710510114417.jpg
vsszan2072710510114418.jpg

▽外立面近景© 毫厘建筑摄影

vsszan2072710510114419.jpg

▽一层大台阶© 毫厘建筑摄影

vsszan2072710510114420.jpg

▽楼梯与中庭© 毫厘建筑摄影

vsszan2072710510114421.jpg



我们在二层设计了开放的展厅让西昌的空气与阳光渗透进建筑,使参观者真实地感受西昌的气候,更体验纪录片过去、现在和未来。建筑以开放的姿态,成为西昌建川电影博物馆聚落中独特的公共空间与精神场所。同时,我们通过不同的符号性设计手法,表达本馆的主题特色,清水混凝土真实的营造痕迹,诉说着光影的魅力。


▽过程方案© 汤桦建筑设计事务所有限公司

vsszan2072710510114422.jpg

▽剖面示意© 汤桦建筑设计事务所有限公司

vsszan2072710510114423.jpg
vsszan2072710510114424.jpg

▽排水分析© 汤桦建筑设计事务所有限公司

vsszan2072710510114425.jpg

▽展厅© 毫厘建筑摄影

vsszan2072710510114426.jpg
vsszan2072710510114427.jpg

▽清水混凝土真实的营造痕迹© 毫厘建筑摄影

vsszan2072710510114428.jpg

▽框景© 毫厘建筑摄影

vsszan2072710510114429.jpg

▽观景角© 毫厘建筑摄影

vsszan2072710510114430.jpg



考虑到布展需要,我们将部分封闭展厅放置于一层以满足固定展陈的需要。建筑曲折的屋顶隐喻着电影制作的摄影棚——这是一个容纳创造的礼盒,更是一个造梦的工厂。


▽施工过程© 毫厘建筑摄影

vsszan2072710510114431.jpg
vsszan2072710510114432.jpg
vsszan2072710510114433.jpg
vsszan2072710510114434.jpg
vsszan2072710510114435.jpg
vsszan2072710510114436.jpg
vsszan2072710510114437.jpg
vsszan2072710510114438.jpg
vsszan2072710510114439.jpg
vsszan2072710510114440.jpg

▽总平面图© 汤桦建筑设计事务所有限公司

vsszan2072710510114441.jpg

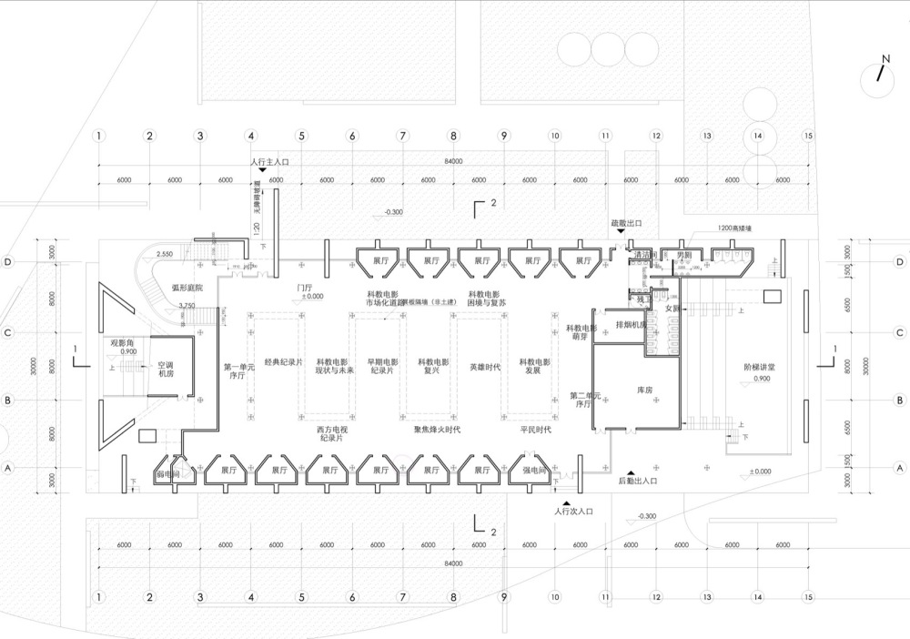
▽一层平面图© 汤桦建筑设计事务所有限公司

vsszan2072710510114442.jpg

▽二层平面图© 汤桦建筑设计事务所有限公司

vsszan2072710510114443.jpg

▽屋顶平面图© 汤桦建筑设计事务所有限公司

vsszan2072710510114444.jpg

▽北立面图© 汤桦建筑设计事务所有限公司

vsszan2072710510114445.jpg

▽南立面图© 汤桦建筑设计事务所有限公司

vsszan2072710510114446.jpg

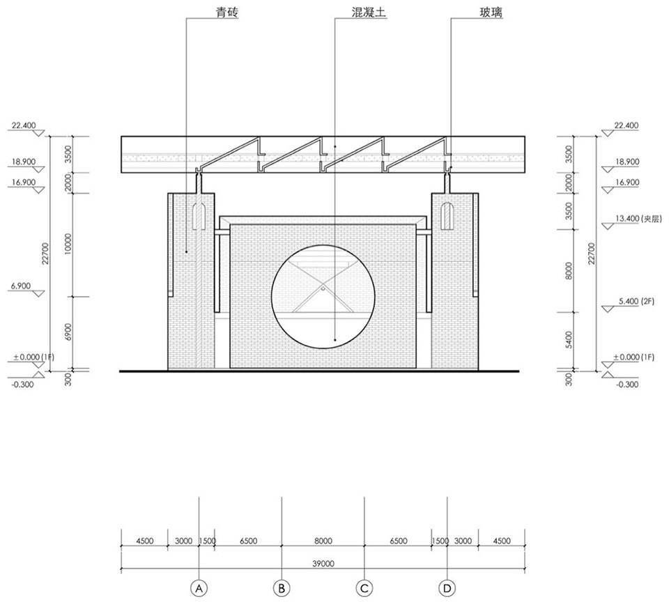
▽剖面图© 汤桦建筑设计事务所有限公司

vsszan2072710510114447.jpg

▽东立面图© 汤桦建筑设计事务所有限公司

vsszan2072710510114448.jpg

▽西立面图© 汤桦建筑设计事务所有限公司

vsszan2072710510114449.jpg
vsszan2072710510114450.jpg
vsszan2072710510114451.jpg
vsszan2072710510114452.jpg
vsszan2072710510114453.jpg


项目名称:西昌建川电影博物馆聚落 · 纪录片陈列馆
项目类型:建筑
设计方:深圳汤桦建筑设计事务所有限公司
公司网站:http://www.tanghuaarchitects.com/
联系邮箱:info@tanghuaarchitects.com
项目设计:2022年
完成年份:2025年
设计团队:
主创建筑师:汤桦
项目负责人:于文博
设计团队(人名):
方案设计:赵宇力、刘华伟
技术负责人:汪田浩
项目地址:西昌市,四川省
建筑面积:4167㎡
摄影版权:毫厘建筑摄影
合作方:
联合设计单位:CCDI悉地国际设计顾问(深圳)有限公司
项目业主:四川和锦高铁沿线新型城镇化投资发展有限责任公司

AI文本分析中……
AI色彩命名中……

暂时没有评论,你回一个呗!~

您需要登录后才可以回帖 登录 | 注册序赞号

快速回复 返回顶部 返回列表