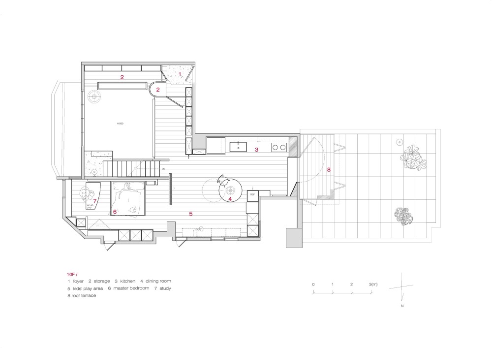
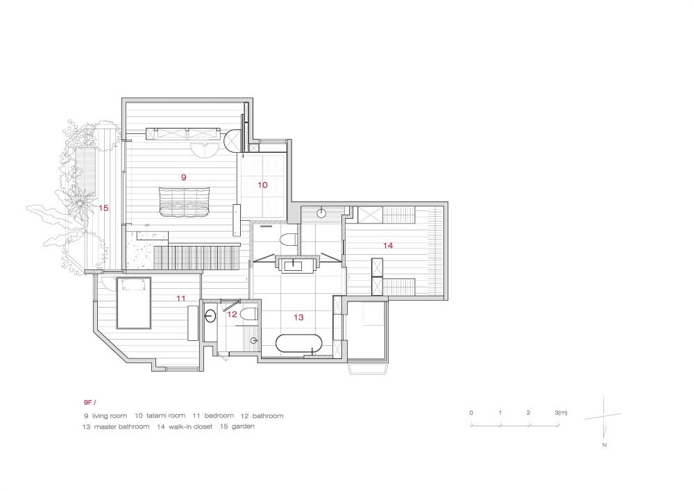
Project E Apartment | longwave studio | 2025 | 中国台湾
vsszan122634091031431.jpg
vsszan122634091031432.jpg
vsszan122634091031433.jpg
vsszan122634091031434.jpg
vsszan122634091031435.jpg
vsszan122634091031436.jpg
vsszan122634091031437.jpg
vsszan122634091031438.jpg
vsszan122634091031439.jpg
vsszan1226340910314310.jpg
vsszan1226340910314311.jpg
vsszan1226340910314312.jpg
vsszan1226340910314313.jpg
vsszan1226340910314314.jpg
vsszan1226340910314315.jpg
vsszan1226340910314316.jpg
vsszan1226340910314317.jpg
vsszan1226340910314318.jpg
vsszan1226340910314319.jpg
  • 项目设计:longwave studio
  • 项目面积: 150m²
  • 项目年份:2025
  • 首席建筑师: Leo Wang, Wei Huang
  • Category: Apartment Interiors
  • Lead Team: Leo Wang, Wei Huang
  • 项目成市: 台湾
  • 项目国家: 中国
    • 转载自:Archdaily
    • 设计师:longwave studio
    • 图片©longwave studio
    • 语言:英语
    • 编辑:序赞网
    • 阅读原文
    AI文本分析中……
    AI色彩命名中……
    syhgdesign2026-3-10 01:22:50
    感谢楼主辛苦分享
    dvtpter2026-3-15 00:15:04
    谢谢分享!!
    您需要登录后才可以回帖 登录 | 注册序赞号

    快速回复 返回顶部 返回列表