海宁自然展示中心 | 森上建筑 | 2025 | 中国浙江



1.项目概述
海宁自然展示中心是海宁国际花卉产业园区内部一座综合性的公共建筑,既可以作为园区组织农业展览的体验馆,也可承接产业对接活动等功能,可以成为周边未来发展的文化艺术中心。自然艺术展示中心作为举办各类产业活动、信息交流发布会及文化艺术展的交流场所,既是乡镇产业振兴成果展示的重要空间,也是田园艺术与生活文化的结合。


▽外观概览©吴清山

vsszan207420111022451.jpg
vsszan207420111022452.jpg

▽外观©吴清山

vsszan207420111022453.jpg

▽顶视图©吴清山

vsszan207420111022454.jpg



2.回应自然
业主需求数个不同空间大小的多功能厅以应对不同类型与规模的活动,前期以租赁式为主的运营特征决定了其非常驻式展厅的状态。项目的建设用地较为紧张,特殊的供地属性使得建筑由几个方形的盒子紧凑聚拢而成。其内部非开放式与内向型的空间与周围的自然环境有着一定的阻隔,因此设计试图通过由内而外的方式,完成建筑空间和自然环境的相互渗透。不同形式的玻璃幕墙与采光井为这种形式创造了条件。


▽分析图© 森上建筑

vsszan207420111022455.gif

▽外观近景©吴清山

vsszan207420111022456.jpg

▽庭院天井©吴清山

vsszan207420111022457.jpg

▽景观视野©吴清山

vsszan207420111022458.jpg



3.转化自然
建筑的边界是设计关注的重点。主要交通系统围绕建筑边界生成,设计希望回应周边的种植基地与农田,创造更加开放、渗透与互动的流动性空间。建筑所蕴含的场所精神也通过当地田园游径的转译、光影表情的提取以及多样化的人文得以展露。


▽场地鸟瞰©吴清山

vsszan207420111022459.jpg

▽远景©吴清山

vsszan2074201110224510.jpg

▽自然展示中心与周边的农田©吴清山

vsszan2074201110224511.jpg

▽几何元素和色彩构成源于周边的自然环境©吴清山

vsszan2074201110224512.jpg



曲折的游线将外部田园游径的蜿蜒轨迹转化为建筑的交通区域,贯穿了展示中心的所有展厅并通向屋顶。


▽自然艺术游线© 森上建筑

vsszan2074201110224513.jpg

▽立面近景©吴清山

vsszan2074201110224514.jpg

▽花谷中庭的对望©吴清山

vsszan2074201110224515.jpg

▽通道©吴清山

vsszan2074201110224516.jpg

▽楼梯盘旋向上©吴清山

vsszan2074201110224517.jpg
vsszan2074201110224518.jpg

▽剖面-大面积的玻璃幕墙与入口的中庭造型使建筑的边界变得模糊©森上建筑

vsszan2074201110224519.jpg

▽楼梯盘旋向上直至屋面并在行进中与外界环境互动©吴清山

vsszan2074201110224520.jpg

▽花谷中庭的对望©吴清山

vsszan2074201110224521.jpg

▽几何元素和色彩构成源于周边的自然环境©吴清山

vsszan2074201110224522.jpg



几个展厅被设计成不同开放密度的容器,立面与屋顶开口的设计,不同季节与气候条件下的光影和田园通过丰富变化的方式引入内部空间,行进中的漫步流线与农田间劳作的农民产生有趣的对话。三角形铝板幕墙采用几何拼接的方式,营造出富有变化和层次感的图案效果,从而将产业文化转化为一种可见性的表达。令人反思自然与农业之于现代社会的重要性,感知生命与人造自然之间交互的力量。


▽剖面- 周边环境与阳光影响了建筑的开窗布局与造型© 森上建筑

vsszan2074201110224523.jpg

▽一层-二层通高展厅:夕阳之光-环境色©吴清山

vsszan2074201110224524.jpg

▽一层展厅:洞穴之光-漫反射与折射的光线渲染艺术©吴清山

vsszan2074201110224525.jpg
vsszan2074201110224526.jpg

▽三层展厅:彩虹之光©吴清山

vsszan2074201110224527.jpg
vsszan2074201110224528.jpg

▽四层展厅:光的隧道-天光通过墙体的瞬间©吴清山

vsszan2074201110224529.jpg

▽会议厅©吴清山

vsszan2074201110224530.jpg

▽一层展厅©吴清山

vsszan2074201110224531.jpg

▽交通流线:矩阵之光-延伸的动态©吴清山

vsszan2074201110224532.jpg
vsszan2074201110224533.jpg

▽三层多功能展厅:漂浮的光©吴清山

vsszan2074201110224534.jpg

▽天光展墙的光影互动©吴清山

vsszan2074201110224535.jpg
vsszan2074201110224536.jpg

▽光的圆缺-花瓣造型的变幻©吴清山

vsszan2074201110224537.jpg



4.思考自然
自然展示中心构建了自然生态与当代空间的对话,通过自然研学,农业科普与产业展览,成为开展自然环境教育与美育的创新载体,培养公众尤其是青少年的生态意识,增强周边社区居民在地认同与归属感,激发他们对于产业重要性的重新思考,以产业旅游为纽带,带动周边乡村特色产业发展,助力乡村振兴战略的实施,并通过自然艺术中心的使用重新审视自然环境之于我们的重要意义。


▽自然展示中心周边的农田耕作©吴清山

vsszan2074201110224538.jpg
vsszan2074201110224539.jpg

▽不同季节下的农业景观变化©吴清山

vsszan2074201110224540.jpg

▽为研学和活动打造的休闲区、会议厅、沙龙区©吴清山

vsszan2074201110224541.jpg
vsszan2074201110224542.jpg
vsszan2074201110224543.jpg

▽总平面图© 森上建筑

vsszan2074201110224544.jpg

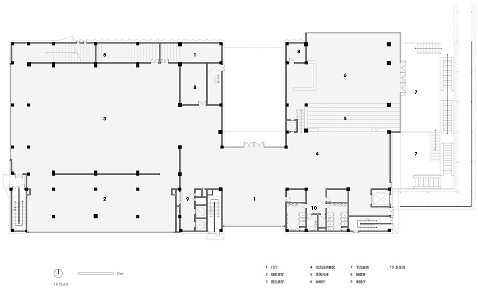
▽主馆一层平面图© 森上建筑

vsszan2074201110224545.jpg

▽主馆二层平面图© 森上建筑

vsszan2074201110224546.jpg

▽主馆三层平面图© 森上建筑

vsszan2074201110224547.jpg

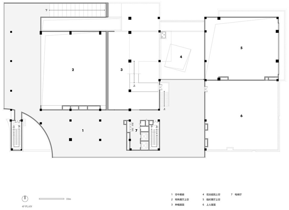
▽主馆四层平面图© 森上建筑

vsszan2074201110224548.jpg

▽副馆一层平面图© 森上建筑

vsszan2074201110224549.jpg

▽副馆二层平面图© 森上建筑

vsszan2074201110224550.jpg

▽主馆立面图© 森上建筑

vsszan2074201110224551.jpg
vsszan2074201110224552.jpg

▽副馆立面图© 森上建筑

vsszan2074201110224553.jpg
vsszan2074201110224554.jpg

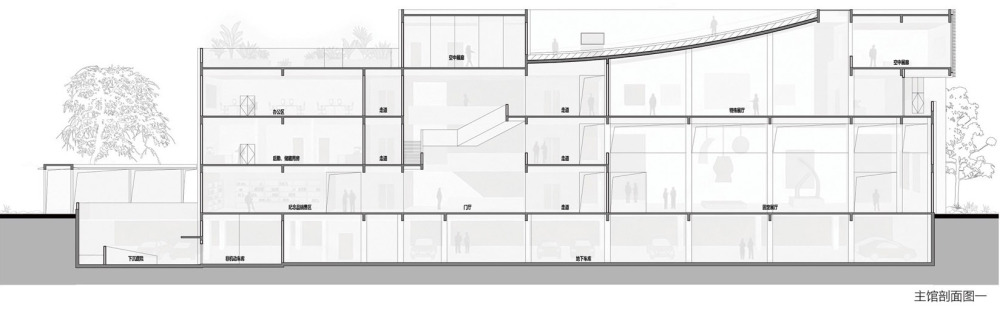
▽主馆剖面图© 森上建筑

vsszan2074201110224555.jpg
vsszan2074201110224556.jpg

▽副馆剖面图© 森上建筑

vsszan2074201110224557.jpg


项目名称:自然的收集——海宁自然展示中心
项目类型:建筑设计+室内设计
设计方:森上建筑
公司网站:http://www.sens-arch.com/
联系邮箱:senshang@qq.com
项目设计:2020.07
完成年份:2025.09
方案主要设计团队:章钧添 孙鸿斐 王鑫
专业顾问 :建筑-吴晓帆 结构-苏勤军 设备-刘建坡 参数化-许伟舜
合作设计院:杭州国美建筑设计研究院有限公司
施工图设计院:浙江鸿翔建筑设计有限公司
项目地址:浙江海宁
建筑面积:20000㎡
摄影版权:吴清山
客户:长河旅游开发有限公司
材料:铝板 石材 玻璃幕墙

AI文本分析中……
AI色彩命名中……
95qabc2026-3-11 22:57:07

谢谢分享!!!谢谢分享!
您需要登录后才可以回帖 登录 | 注册序赞号

快速回复 返回顶部 返回列表