溪口厝 | 全体建筑 | 2022 | 中国广东



I.“厝”与“厝边”
潮汕地区以“厝”为宅。在历史变迁中,发展出了“下山虎”、“四点金”等丰富的民居类型。


▽溪口厝©Wu Siming

vsszan207513131138391.jpg

▽溪口厝小巷©Wu Siming

vsszan207513131138392.jpg



在潮汕及闽南语系中,“厝”不仅指代房屋的物理空间,亦延伸为“厝内”(家族)与“厝边”(邻里)的社会联结。某种意义上,地域性的“厝”可视为血缘与地缘关系在物理空间中的重构。


▽附近的老村与潮汕传统民居类型©Atelier ALL

vsszan207513131138393.jpg



溪口厝位于潮州近郊,属于乡镇统一规划的新农村建设用地。用地距离老村不远,濒临一条分岔的溪流。周边散落着若干独栋农宅,在开阔的田野上,形成星罗棋布的肌理。基地西南临近溪水,东北紧靠乡道,面宽约16米,进深约24米,临水一侧存在约4米的高差。依据地形条件和宅基地范围,房子主体只能布置于乡道一侧,而生活附属场地可安排在临溪的区域。房主刘叔与张阿姨是居住在乡下的一对老年夫妇,子女均在外地工作。他们对建房的诉求直接而朴素:在满足15米限高前提下,建筑体量不宜显得低矮,且须设置不少于10间卧室,以满足家庭团聚与接待乡邻的多重场景。这一需求超出了单纯的居住功能,暗含着对家族绵延与社交活力的期待。由此引出了设计思考:在传统村落肌理已接近消失的背景下,一座私宅,除了满足居住需求之外,能否延续乡村的邻里生活,植入适度的公共属性?


▽总平面图©Atelier ALL

vsszan207513131138394.jpg

▽工作模型©Atelier ALL

vsszan207513131138395.jpg
vsszan207513131138396.jpg

▽基地位置©Atelier ALL

vsszan207513131138397.jpg

▽农村肌理©Wu Siming

vsszan207513131138398.jpg



设计将住宅分为“下院”与“上宅”两部分,分别应对水平与垂直、公共与私密的不同需求:
“下院”——水平体量,是对“院落”的重构,具有一定公共属性。
“上宅”——垂直体量,是对“家宅”的抽象,属于家庭私人领域。


▽轴测图©Atelier ALL

vsszan207513131138399.jpg



建筑体量分为两个部分:下部为清水混凝土基座,上部为从基座脱开的双坡顶体量。从稍远处望去,建筑呈现内敛而抽象的姿态,其外观令人联想起农村常见的农舍或谷仓,与周边农宅及远处城市高层住宅形成鲜明对比,矗立在田野之中。


▽建筑体量与周边环境©Wu Siming

vsszan2075131311383910.jpg
vsszan2075131311383911.jpg
vsszan2075131311383912.jpg



II.“下院”——厝边的客厅
潮汕民居以“四点金”为代表,其空间以天井庭院为核心,居住单元沿轴线纵横延展,形成适应不同规模的聚落体系。这种以院落组织日常生活的模式,无论在东方的园林,或西方的居住传统中皆有体现。设计延续这一空间逻辑,在场地中植入一个“井”字形空间框架,构建一座“有院子的房子”,让生活围绕庭院展开。[1]“下院”为单层的水平体量,连续的混凝土墙限定了院落范围。除车库门以外,仅在前后设两处圆形开口,延续潮汕民居的内向特质。洞口构成了内外交流界面,暗示了内部庭院的存在,引导人进入探访。


▽空间框架©Atelier ALL

vsszan2075131311383913.jpg

▽入口©Wu Siming

vsszan2075131311383914.jpg
vsszan2075131311383915.jpg



首层房子中部由横向通长的混凝土墙贯穿室内外,划分出尺度各异的“间”,再结合纵向的水泥空心砖砌块和砖墙,形成多个套叠的院落。空间“隔而不断”,人在其间行走,视线可以交流,风与光亦得以透过墙间,在层层庭院之间流转渗透。


▽庭院©Wu Siming

vsszan2075131311383916.jpg
vsszan2075131311383917.jpg
vsszan2075131311383918.jpg



中心庭院设有一方浅池,作为空间组织的锚点。以此为原点,东西向连接入口,南北向可以串联北侧起居厅与南侧的茶亭。


▽水庭©Wu Siming

vsszan2075131311383919.jpg



南侧茶亭为三开间的半开敞空间,屋顶覆盖自然生长的野草,下部空间朝向溪流与竹林敞开。天气晴好时,刘叔常在此冲泡工夫茶,接待来访的好友。茶亭东侧设有直跑楼梯,可向下连接嵌入坡地的三间客房,并通往临溪的院子与苗圃。


▽茶亭与直跑楼梯©Wu Siming

vsszan2075131311383920.jpg

▽临溪苗圃©Wu Siming

vsszan2075131311383921.jpg



北侧起居厅为两层通高空间,是家庭主要的生活起居空间。面向庭院的推拉门可完全打开,让室内外融为一体。人坐于厅内,可感知庭院四季景致的变化。


▽起居厅©Wu Siming

vsszan2075131311383922.jpg



流线设计区分主客路径,两者最终交汇于起居厅,使其成为介于私密与公共之间的过渡,兼顾家庭起居与邻里接待功能。据业主反映,住宅落成后,每天都有邻里的老人前来喝茶、周边孩童也常在此嬉戏,偶有陌生访客登门造访。面对城市化进程中“附近的消失”,设计尝试“让渡”出部分私域。意图是通过空间属性的模糊处理,在保持家庭生活私密性同时,重建一个边界清晰、却基于日常交往的“邻里客厅”。这是我们对潮汕“厝边文化”——那种生于地理邻近、成于持续往来的在地关系——所作的回应。


▽“邻里客厅”©Wu Siming

vsszan2075131311383923.jpg



III.“上宅”——日常的仪式
“上宅”为四层的垂直体量,首层布置公共起居与辅助功能,二至三层为居住空间,四层是坡屋顶下的阁楼。设计将日常性与仪式性在垂直方向上并置,试图唤起一种能被记忆与身体所感知的空间氛围——一种指向居所原型,关于“家宅”的意象。在外观层面,“上宅”外墙采用双层墙体砌筑,中间留设空腔。构造做法隔热防潮,以适应岭南地区炎热多雨的气候特征。表层选用水泥空心砖砌块及标准尺寸的青砖,兼顾在农村地区建房的经济性与可建造性。不同楼层之间,通过楼梯的错位、转折等不同方式连接。各居室之间开设洞口,创造空间的“多孔性”(Porosity),让私密与公共、不同楼层之间的生活场景之间产生视觉联系,营造出一种“生活在一起”的共居氛围。


▽多孔空间©Wu Siming

vsszan2075131311383924.jpg
vsszan2075131311383925.jpg



二、三层居室通过北侧的外廊连接,南侧则设置生活阳台。其中三层阳台连通为连续的檐下空间,形成水平向的景观长卷,朝向外部的田野与溪流。


▽三居室单元©Wu Siming

vsszan2075131311383926.jpg

▽阳台与檐下空间 ©Wu Siming

vsszan2075131311383927.jpg



坡屋顶是建筑最具识别性的部分,其选择兼具形式与功能考量:既与周边老村风貌呼应,亦在满足四层体量要求同时,通过屋面坡度削减建筑体量,缓解高度对街道产生的压迫感。屋顶内部由密肋结构支撑起三角形阁楼,天窗引入漫射光,经斜面反射,洒入下方空间。该空间暂未设定具体功能,而是以“留白”方式为家庭未来发展预留可能。特殊的形态,也赋予了空间某种超越日常的“仪式感”。


▽场地轴剖图©Atelier ALL

vsszan2075131311383928.jpg

▽顶楼空间©Wu Siming

vsszan2075131311383929.jpg
vsszan2075131311383930.jpg

▽楼梯©Wu Siming

vsszan2075131311383931.jpg



IV. 时间与风土
溪口厝在疫情期间建成,迄今使用已有一段时间。对于刘叔一家及其“厝边”乡邻而言,除草木渐长、建筑有些老旧痕迹之外,这里似乎并未发生根本变化,生活日常仍平缓延续。“下院”与“上宅”所构建的空间架构,回应的仍是业主最初的愿望:一个既能容纳家族团聚,又能向邻里适度开放的场所。在传统与当代之间,设计试图寻找到一种平衡——不在于形式的新旧,而在于通过空间结构的组织,调和家庭与社区、私密与公共、传统与当代的关系。我们期待时间和使用在此慢慢沉淀,让房子在潮汕风土中扎根。


▽施工照片©Atelier ALL

vsszan2075131311383932.gif

▽鸟瞰图©Wu Siming

vsszan2075131311383933.jpg

▽首层平面©Atelier ALL

vsszan2075131311383934.jpg

▽二层平面©Atelier ALL

vsszan2075131311383935.jpg

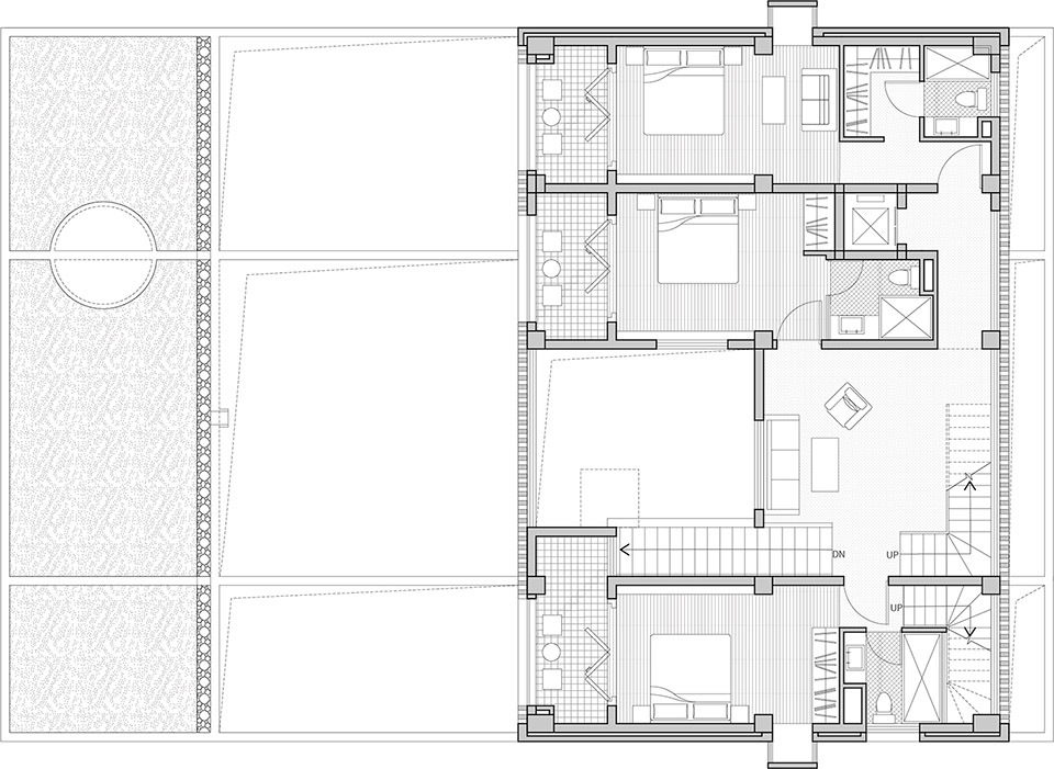
▽三层平面©Atelier ALL

vsszan2075131311383936.jpg

▽东立面©Atelier ALL

vsszan2075131311383937.jpg
vsszan2075131311383938.jpg
vsszan2075131311383939.jpg


项目信息
项目名称:溪口厝
项目类型:农村自建房
项目地点:广东潮州
设计单位:全体建筑
主创建筑师:刘琮晓,刘潇
设计团队完整名单:刘琮晓,刘潇,黄东华,杜冠之,翁喆锐,唐子豪,李杨阳,薛泳,邓洁雯,邓健弘
业主:刘叔张阿姨一家
建成状态:建成
设计时间(起迄年月):2018(设计)- 2022(建成)
建筑面积(平方米):约686.44㎡

AI文本分析中……
AI色彩命名中……

暂时没有评论,你回一个呗!~

您需要登录后才可以回帖 登录 | 注册序赞号

快速回复 返回顶部 返回列表