九号别墅 | Story Architecture | 2023 | 越南



九号别墅位于越南保禄市,是一栋为三代同堂家庭设计的住宅,同时毗邻家族经营的商业空间。


▽街景© Minq Bui

vsszan207518131542281.jpg
vsszan207518131542282.jpg
vsszan207518131542283.jpg



住宅共四层,并设有一层地下室,包含5间卧室及多种不同功能空间。家庭成员包括祖父母、年轻的兄弟姐妹,以及姐姐一家——丈夫和两个孩子。


▽入口© Minq Bui

vsszan207518131542284.jpg

▽入口大门© Minq Bui

vsszan207518131542285.jpg

▽底层休闲空间© Minq Bui

vsszan207518131542286.jpg
vsszan207518131542287.jpg
vsszan207518131542288.jpg

▽天井空间为室内引入光线© Minq Bui

vsszan207518131542289.jpg
vsszan2075181315422810.jpg

▽玄关© Minq Bui

vsszan2075181315422811.jpg
vsszan2075181315422812.jpg



对于这样一栋面积较大的多层住宅来说,在不同楼层之间或同一层的不同空间之间移动往往距离较长、过程繁琐,也容易变得单调乏味,这种状态会逐渐削弱家庭成员之间的联系。为了解决这一问题,设计在住宅中布置了多个不同尺寸、不同位置的天窗,使自然光深入室内,同时形成空气对流,并结合室内盆栽绿植营造更为舒适的环境。


▽生活空间概览© Minq Bui

vsszan2075181315422813.jpg
vsszan2075181315422814.jpg

▽餐厅© Minq Bui

vsszan2075181315422815.jpg
vsszan2075181315422816.jpg

▽由餐厅看厨房© Minq Bui

vsszan2075181315422817.jpg
vsszan2075181315422818.jpg



为了进一步消除楼层之间的距离感,楼梯平台被设计为带有自然光与绿植的娱乐与休憩空间,使上下楼的过程变得轻松而有趣,也鼓励家人更多地使用楼梯。


▽楼梯平台被设计为带有自然光与绿植的娱乐与休憩空间© Minq Bui

vsszan2075181315422819.jpg
vsszan2075181315422820.jpg

▽由楼梯平台看生活空间© Minq Bui

vsszan2075181315422821.jpg

▽由二层看楼梯平台© Minq Bui

vsszan2075181315422822.jpg

▽楼梯平台读书角© Minq Bui

vsszan2075181315422823.jpg
vsszan2075181315422824.jpg

▽通高空间© Minq Bui

vsszan2075181315422825.jpg

▽楼梯© Minq Bui

vsszan2075181315422826.jpg
vsszan2075181315422827.jpg

▽突出的室内阳台© Minq Bui

vsszan2075181315422828.jpg
vsszan2075181315422829.jpg



地下室也是进入住宅后的第一处空间,如果环境单调,人们往往会希望尽快离开。因此设计通过弧形图案铺装地面,并引入带有绿植的天窗,将自然光带入地下空间,同时把楼梯平台转化为家庭成员活动与玩耍的场所,使回家的第一刻就拥有愉悦的体验。


▽地下室© Minq Bui

vsszan2075181315422830.jpg
vsszan2075181315422831.jpg

▽地下室看向休闲区© Minq Bui

vsszan2075181315422832.jpg



设计还利用自家工厂仓库的屋顶设置了水疗区与花园,创造出多个可眺望丘陵景观的放松空间。不同形式的休憩空间为家人缓解日常压力,让每个人回到家时都能感受到这里是属于自己的地方。


▽水疗区与花园© Minq Bui

vsszan2075181315422833.jpg

▽水疗区© Minq Bui

vsszan2075181315422834.jpg
vsszan2075181315422835.jpg
vsszan2075181315422836.jpg

▽由圆窗看户外区域© Minq Bui

vsszan2075181315422837.jpg

▽泳池© Minq Bui

vsszan2075181315422838.jpg
vsszan2075181315422839.jpg



在住宅中,楼梯的每一个平台原本只是上下楼时短暂停留的过渡空间,而现在则被设计为休息与娱乐的节点,成为连接各个楼层、也连接家庭成员的空间。


▽卧室© Minq Bui

vsszan2075181315422840.jpg
vsszan2075181315422841.jpg

▽浴室© Minq Bui

vsszan2075181315422842.jpg
vsszan2075181315422843.jpg

▽浴室细部© Minq Bui

vsszan2075181315422844.jpg

▽儿童房© Minq Bui

vsszan2075181315422845.jpg
vsszan2075181315422846.jpg



天窗与由楼梯、阳台、墙面和天花形成的曲线相互结合,为住宅创造了强烈的空间吸引力与趣味性。它们引导居住者在不同楼层之间不自觉地向上或向下观看,在无形中建立起家庭成员之间的视觉联系与情感连接。


▽传统房间© Minq Bui

vsszan2075181315422847.jpg

▽露台© Minq Bui

vsszan2075181315422848.jpg

▽夜景© Minq Bui

vsszan2075181315422849.jpg
vsszan2075181315422850.jpg

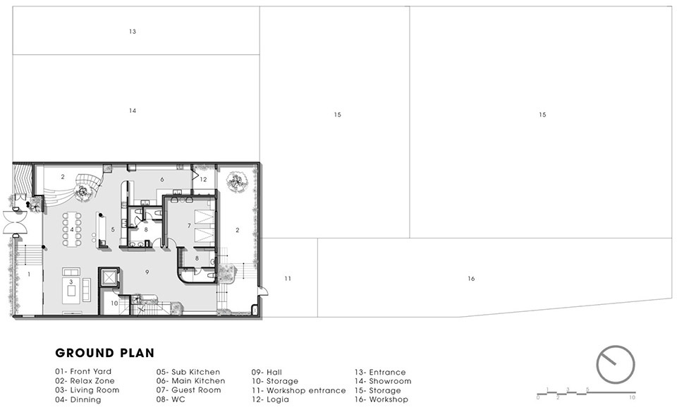
▽底层平面图© Story Architecture

vsszan2075181315422851.jpg

▽二层平面图© Story Architecture

vsszan2075181315422852.jpg

▽地下层平面图© Story Architecture

vsszan2075181315422853.jpg

▽底层平面图© Story Architecture

vsszan2075181315422854.jpg

▽二层平面图© Story Architecture

vsszan2075181315422855.jpg

▽三层平面图© Story Architecture

vsszan2075181315422856.jpg

▽四层平面图© Story Architecture

vsszan2075181315422857.jpg

▽立面图© Story Architecture

vsszan2075181315422858.jpg

▽剖面图© Story Architecture

vsszan2075181315422859.jpg
vsszan2075181315422860.jpg
vsszan2075181315422861.jpg


Project name: Nine Villa
Architect’s Firm: Story Architecture
Website: https://www.facebook.com/storyarchitecture.vn/
Contact e-mail: Returnarchitecture@gmail.com
Project location: Bao Loc City, Viet Nam
Completion Year: 2023
Gross Built Area (square meters or square foot): 408m2
Other participants : HH Architects
Photo credits: Minq Bui
Photographer’s website: https://www.behance.net/mediakhm/

AI文本分析中……
AI色彩命名中……

暂时没有评论,你回一个呗!~

您需要登录后才可以回帖 登录 | 注册序赞号

快速回复 返回顶部 返回列表