瑞器RICHAUS | 几里建筑 | 2024 | 中国重庆
vsszan207628190001511.png



材料有其自己的声音,让它们说话。
路易丝 · 康

几里建筑一直在探索“城市更新中建筑与自然、周围环境、人物互动的更多可能性,试图从边界的阈值去平衡社交中的舒适状态”。随着城市更新,街区、社区、共享空间等词不断出现并刷新人与人交流的模式,不同人群可以在什么样的平台或空间汇聚?真正让多元交织且传递着共享内核的空间可以是什么样?它是城市的中转站,是社区的枢纽,是文化、思维、情绪、甚至奇怪点子的生发地;它于包容共享生根,等着被看见、翻阅并绽出新的光源。
瑞器 RICHAUS 便以当代性的几何体量与自然的对话逻辑,嵌于复杂而广袤的西南地域——层叠的山城内。在整个的设计过程中,几里在思考一种界面与一种关系,试图通过新的建序,使一栋曾被忽略的办公楼宇在城市结构中重新获得意义,使其转化为连接文化、社区、产业与商业的公共文化枢纽,进而指向一个更为开放、丰满且具备持续生长性的社区中心。


vsszan207628190001512.png

© 吴清波

vsszan207628190001513.png

外立面 © vari architects 几里建筑

vsszan207628190001514.png

外立面 © 朱文乔


part. 1
一种界面


vsszan207628190001515.png



设计以一种先锋性的金属幕帘为建筑开启一层有界的面纱,入口的金属滑门虚实相间,让自然渗透。另一侧,则为「器空间Organhaus」定制金属大门,序列的网格规则构成一种机械构造,可折叠开合的入口形式,它延续了Organhaus的艺术实验精神,像嵌在山城的机库大门向艺术家和创作者们开放。


vsszan207628190001516.gif

界面的不同状态 © 朱文乔

vsszan207628190001517.gif

界面的不同状态 © 朱文乔


厚实静默的砾石、流动的水景与葱郁的植物,编织出一层山地界面,温热的西南气候自然地渗透进建筑的肌理,在旧有的园区群落中,形成一种“感知性的界限(limite perceptive)”。


vsszan207628190001518.png

金属的界面 © 朱文乔

vsszan207628190001519.png

金属的界面 © 朱文乔


在瑞器 RICHAUS 中,几里希望促成公众、商业与办公之间的高效交互(interaction),为先锋品牌、建筑与设计事务所、新锐内容创业者及创意机构,提供一个能够承载多种语言与工作方式的环境。


vsszan2076281900015110.gif

© 朱文乔

vsszan2076281900015111.png

© 朱文乔

vsszan2076281900015112.png

© 朱文乔

vsszan2076281900015113.png

© 朱文乔


随着展览、论坛与 live 等公共事件的持续发生,瑞器 RICHAUS 逐渐成为山城文化与社交生活的生成场所,内部空间不再是理性功能的简单叠加,而更接近一种彼此贯通的交互结构:人在其中流动、交流与协作,逐步形成一个有机生态系统。由此,瑞器 RICHAUS 完成了从单一建筑实体向城市“社交界面”的转变。


vsszan2076281900015114.png

夜间的状态 © 吴清波

vsszan2076281900015115.png

夜间的状态 © 吴清波


part. 2
一种关系





在内部,设计刻意保留了建筑的“未完成感”,坦然展露梁柱的原始肌理、管线的穿梭路径,用一种轻盈自然的建构方式,去编排空间的生长痕迹与建构逻辑,一切都处于温和的流动与可再定义之中。【真诚的袒露,回归的是被接纳的亲近与自由。】


vsszan2076281900015116.png

内部 © 吴清波

vsszan2076281900015117.png

内部 © 吴清波

vsszan2076281900015118.png

内部 © 吴清波

vsszan2076281900015119.png

内部 © 吴清波


对于“在地性”的阐释,设计师从地理人文,公共生活的角度出发,寻找一种合适的方式回应在地记忆与温度。
梯坎是连接重庆上下城的筋骨,设计上移除了部分楼板,形成中庭挑空,以贯穿三层楼的公共楼梯作为最重要的公共节点,来回应重庆人“爬坡上坎”的人地关系,用更具趣味性的拓宽和转折,形成多个跨层互动平台,原本承担单一通行职能的楼梯通道,从“功能性(Functionality)”转向兼具体验与公共属性的“公共维度(Public Dimension)”。


vsszan2076281900015120.png

爆炸图   © vari architects 几里建筑

vsszan2076281900015121.png

贯穿空间内部的楼梯 © 朱文乔

vsszan2076281900015122.png
vsszan2076281900015123.png

贯穿空间内部的楼梯 © 朱文乔


三层的楼梯装置“爬梯 Party”,贯联起多层的社交空间体系:包括2F的Organhaus新空间,3F、4F的办公、展陈多功能空间,5F的西南市集aa market。长长的楼梯,如一条熟悉、信任的感情纽带,在鲜活的串门时刻中,我们不再是彼层的他者,从而拾回过往的邻里情义。


vsszan2076281900015124.png
vsszan2076281900015125.png
vsszan2076281900015126.png

内部轴测图,party爬梯 © vari architects 几里建筑

vsszan2076281900015127.png

细节、节点 © 朱文乔

vsszan2076281900015128.png
vsszan2076281900015129.png
vsszan2076281900015130.png
vsszan2076281900015131.png

细节、节点 © 朱文乔


当设计介入叙事,几里建筑也进行了一些超脱日常的尝试。锯齿状的橱窗界面,让办公变成一种可交互的公共场景,也成为这个关系中最重要的内容。
赫拉利说人们“因效率而遗忘生活”,因此设计师编排了一些值得玩味的转折、迂回,从提升视觉吸引力与商业展示效能出发,进一步引向人与空间、人与人之间更深层的互动可能。


vsszan2076281900015132.png

橱窗界面 © 吴清波

vsszan2076281900015133.png

橱窗界面 © 吴清波


让被忽视的细节——灯具、消防栓、栏杆、楼梯扶手这些消极元素以一种更积极的状态和装置的方式,成为空间的一部分。瑞器生发于这座城市的多元关系与需求,它为人际关系的缔结、更新提供了一份契机,让所有人可以在这里重新谈论合作,创作,共享。


vsszan2076281900015134.png

中庭 © 朱文乔

vsszan2076281900015135.png

中庭 © 朱文乔


part. 3
材料的语汇





除了空间的叙事,材料的构建也在塑造着瑞器独特的纯粹性,混凝土因其坦诚而实用的品质,始终与建造同在,因此,几里建筑让这种“确凿”(Concrete)的物质性去展现出“器”的刚硬姿态。不同质感的材料发生碰撞:原生,粗粝,光滑,生涩,从而区别于高度扁平、统一的办公大楼。


vsszan2076281900015136.png

不同的材质对撞 © 吴清波

vsszan2076281900015137.png
vsszan2076281900015138.png
vsszan2076281900015139.png

不同的材质对撞 © 吴清波


木头中有西南在地风物的温度,设计上使用了老榆木板去包裹局部结构,在这次构建里,去表达“痕迹”,也是一种东方式的抒情。


vsszan2076281900015140.png

木材的使用 © 朱文乔

vsszan2076281900015141.png

木材的使用 © 朱文乔

vsszan2076281900015142.png

木材的使用 © 朱文乔


几里建筑尝试把灯具和道具系统作为公共空间的重要呈现部分,银色金属扩张网垂悬在顶部,冷峻、精密。镀锌银色金属灯具序列排布,镀锌钢管与裸露管线组合成更具当代性的装置系统构造。


vsszan2076281900015143.png

装置系统构造 © 朱文乔

vsszan2076281900015144.png

装置系统构造 © 朱文乔

vsszan2076281900015145.png

© 朱文乔


建造中有城市代际之精神,不论是十九世纪工业线上滚动的钢铁,还是自大地而来的树木,它们筑就了人居的底线,又因人的热忱与智识,不断参与着城市的演进。
或许因为扎根于西南,瑞器 RICHAUS 也承袭了这片土地内里的包容与丰厚,自然粗粝与秩序精细同在,塑造着城市中独有的生活容器。


vsszan2076281900015146.png

© 朱文乔

vsszan2076281900015147.png
vsszan2076281900015148.png
vsszan2076281900015149.png

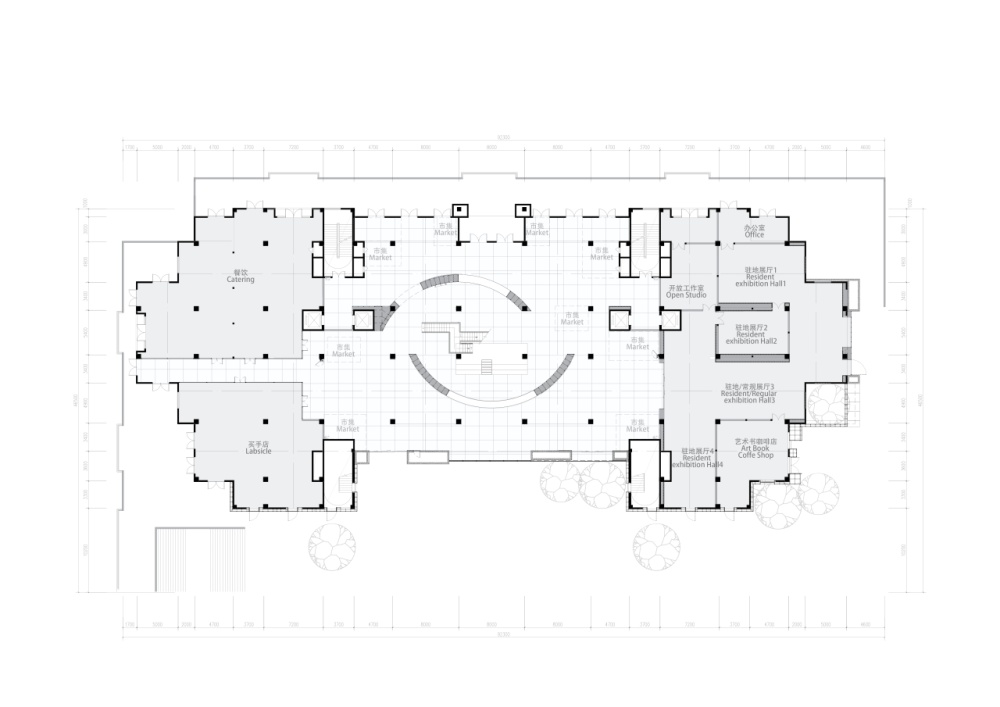
平面图  © vari architects 几里建筑

vsszan2076281900015150.png
vsszan2076281900015151.png

南立面,西立面  © vari architects 几里建筑

vsszan2076281900015152.png
vsszan2076281900015153.png

墙体构造,楼梯构造  © vari architects 几里建筑



项目名称 Project Name | 瑞器RICHAUS
项目地点 Location | 重庆中瑞两江产业园
建筑设计 Architectural Design | vari architects 几里建筑
主持建筑师 Principal Architects | 齐帆 蒋逸男
项目建筑师 Project Architects | 徐飞洪 何曌龙 邱靖桐 顾伟明
项目体量 Floor Area | 8000㎡  
项目时间 Time | 2024.5-2024.7
项目文案 Copywriting | 许小艺 王柳
项目摄影 photography | 吴清波 朱文乔


vsszan2076281900015155.png

齐帆

VARI几里建筑 创始合伙人


齐帆
创始合伙人齐帆本科毕业于浙江大学建筑学学士,后获得美国宾夕法尼亚大学区域规划与景观建筑学硕士。现为哈佛大学学科导师与副研究员。他主要将城市更新理论与实践相结合,关注于内地的城市更新项目。
在城市设计尺度,建筑尺度与学术研究之外,齐帆先生还提出L.M.S,在建筑室内的尺度进行探索,研究如何将商业空间和室内,城市改造的建筑空间相结合,创造出更加创新的设计。由他操刀的来龙里商业空间也成为这个体系下的新商业模板。


vsszan2076281900015156.png


一家国际新锐设计事务所,专注城市尺度综合设计的有限责任公司。主要致力于城市发展和更新过程中区域、建筑、景观和室内等多领域跨尺度的创新设计和批判性研究。
公司成员主要来自中国和美国,核心团队均毕业于哈佛大学和宾夕法尼亚大学,并曾在国外知名建筑事务所(如美国SOM、Safdie、KPF,奥地利蓝天组,美国SWA等事务所)积累了长期和深度的实践经验。VARI作品涵盖城市规划与设计、商业及住宅建筑、文化和办公建筑、展示及室内设计和景观设计等类别,项目分布在上海、深圳、杭州、重庆、西安、洛杉矶等地。
其设计作品曾获美国建筑奖,世界建筑新闻奖,A+建筑奖和保罗•赫弗南奖,并曾参展于威尼斯建筑艺术双年展、北京设计周、上海城市空间艺术季、美国建筑师协会波士顿分会和洛杉矶A+D建筑设计博物馆,重庆国际创意周。


    • 转自:走鹊
    • 图片©几里建筑
    • 编辑:序赞网
    • 阅读原文
    AI文本分析中……
    AI色彩命名中……
    syhgdesign2026-3-20 01:14:22
    感谢楼主辛苦分享
    您需要登录后才可以回帖 登录 | 注册序赞号

    快速回复 返回顶部 返回列表