Magnus办公大楼 | Sanjay Puri Architects | 2025 | 印度



该办公建筑位于印度斋浦尔一条极为繁忙的城市主干道旁,处于一个由老旧商业开发构成的街区之中,是该区域首个新建项目。设计在回应场地语境与气候条件的同时,建立起当代建筑形象,并尊重当地的建筑遗产。


▽建筑概览© Mr. Vinay Panjwani

vsszan207663201024441.jpg
vsszan207663201024442.jpg



在总体规划上,项目将设备用房与交通核心筒策略性地布置在南侧边缘,同时将结构柱设置于建筑外围,从而确保每层楼板空间的完全灵活性。底层布置较小尺度的办公单元,上部楼层则设置更大面积的办公空间。


▽建筑街景© Mr. Vinay Panjwani

vsszan207663201024443.jpg
vsszan207663201024444.jpg



面向道路的西立面呈现前后倾斜的体量形态,形成两个角度相对的垂直体块。这种动态的体量组合在每一层都创造出带有遮蔽的室外平台,同时相反方向的倾斜也有效保障了相邻办公露台之间的私密性。


▽立面呈现前后倾斜的体量形态© Mr. Vinay Panjwani

vsszan207663201024445.jpg

▽有遮蔽的室外平台© Mr. Vinay Panjwani

vsszan207663201024446.jpg
vsszan207663201024447.jpg



针对高密度的城市环境,建筑两侧包覆有穿孔屏风,其灵感来源于拉贾斯坦邦传统建筑中典型的石制“jaali”格栅。这些屏风由以再生材料为主的轻质泡沫混凝土制成,同时具备良好的隔热性能。


▽建筑两侧包覆有穿孔屏风© Mr. Vinay Panjwani

vsszan207663201024448.jpg
vsszan207663201024449.jpg

▽屏风细部© Mr. Vinay Panjwani

vsszan2076632010244410.jpg
vsszan2076632010244411.jpg



在穿孔屏风与玻璃幕墙之间设置了一条宽约3英尺(约0.9米)的种植带,既作为来自繁忙道路的噪音缓冲层,又在建筑周边引入连续的绿化界面。


▽从室内看向穿孔屏风© Mr. Vinay Panjwani

vsszan2076632010244412.jpg
vsszan2076632010244413.jpg



首层设置餐厅与会议设施,激活街道界面;屋顶层则布置了咖啡厅、健身房及景观花园,为使用者提供休闲与社交空间。


▽室内空间© Mr. Vinay Panjwani

vsszan2076632010244414.jpg
vsszan2076632010244415.jpg



建筑主要采用粉煤灰砖与钢筋混凝土框架结构建造,并整合了包括水循环利用、雨水收集以及屋顶太阳能板在内的可持续策略。相较于常规办公建筑,这些措施显著降低了其隐含碳排放。穿孔屏风与内退式平台共同构成被动遮阳系统,有效减少热量进入,降低空调能耗,并减少建筑全生命周期的碳排放。


▽被动遮阳系统© Mr. Vinay Panjwani

vsszan2076632010244416.jpg



该办公建筑在充分回应斋浦尔炎热气候的同时,汲取地域建筑传统的灵感,最终形成了一个兼具能源效率与在地性表达的当代办公空间。


▽夜景© Mr. Vinay Panjwani

vsszan2076632010244417.jpg

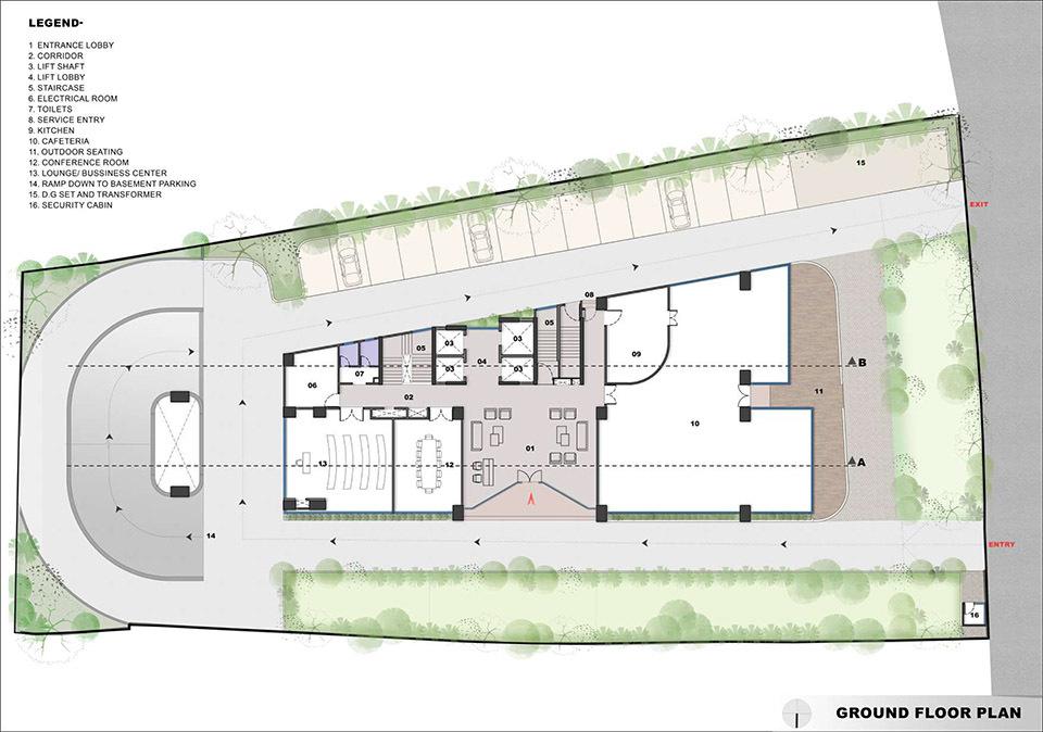
▽一层平面©Sanjay Puri Architects

vsszan2076632010244418.jpg

▽二层平面©Sanjay Puri Architects

vsszan2076632010244419.jpg

▽剖面图©Sanjay Puri Architects

vsszan2076632010244420.jpg
vsszan2076632010244421.jpg
vsszan2076632010244422.jpg
vsszan2076632010244423.jpg
vsszan2076632010244424.jpg
vsszan2076632010244425.jpg
vsszan2076632010244426.jpg
vsszan2076632010244427.jpg
vsszan2076632010244428.jpg


Project Name – Magnus
Building Use – Offices
Location of Site – Tonk Road, Jaipur, Rajasthan, India
Company Name: Sanjay Puri Architects
Lead Architect – Sanjay Puri
Design Team – Chandan Joshi, Sonali Chougule
Client – Mahima Real Estate Pvt. Ltd.
Site area – 2390.80 sq.mt. /25,734 sq.ft.
Built-up Area – 15646 sq.mt./1,68,413 sq.ft.
Project Cost – 52,41,777 USD / 47,64,62,590 INR.
Start Date – 2023
Date of completion – December 2025
Photo credits: Mr. Vinay Panjwani

AI文本分析中……
AI色彩命名中……
syhgdesign2026-3-21 02:05:36
感谢楼主辛苦分享
您需要登录后才可以回帖 登录 | 注册序赞号

快速回复 返回顶部 返回列表