Bar Vena酒吧 | 即时设计 | 2026 | 中国上海
▽项目概览© 刘国威

vsszan207726240803041.png
vsszan207726240803042.png



场地
项目位于上海市永源路街区的地下一层,初见现场,一处70平米的空间,却有着诸多制约条件。店铺位于狭长通道内侧,无临街展示界面,无自然采光与景观,且紧临园区卫生间。面对困境,我们明确了隔离街道且向内探索的设计思路,后现代建筑追求 “事件”而非“物体”,我们意图创造一个让人体验身份流动性的文化装置。


▽入口© 刘国威

vsszan207726240803043.jpg

▽入口动线© 刘国威

vsszan207726240803044.gif

▽入口细部© 刘国威

vsszan207726240803045.jpg
vsszan207726240803046.png



布局
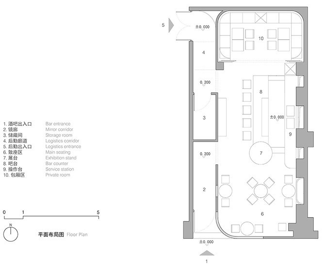
我们将通过性空间凝练为一进一出两个廊道,一侧为主入口,另一侧连接后场,之间设置镜面材质的储物间,这样处理最大程度的保证了经营空间的完整性,整体布局呈现多条轴向对称,中间为操作台和吧台,外侧为散台区,内侧为可开合的包厢。


▽空间布局分析© 即时设计研究所

vsszan207726240803047.gif

▽进入酒吧© 刘国威

vsszan207726240803048.png

▽散台区© 刘国威

vsszan207726240803049.jpg
vsszan2077262408030410.jpg

▽条窗© 刘国威

vsszan2077262408030411.jpg



空间内置了新的框架结构,强化区域划分,并将地面抬高200mm,在营造入口仪式感的同时解决吧台与操作台的高差问题。自此,我们试图以空间为载体,呈现关于“通过仪式”的三个阶段。


▽框架与高差© 刘国威

vsszan2077262408030412.png



分离仪式
店铺的入口是一个端头为镜面的廊道,创造了一个向内延伸的虚拟空间。它既不是”外部街道”,也不是”内部店铺”,它是一个过渡的通道,让顾客的身体在镜像中复制——真实的自我与镜中的虚像并存。顾客在走进这个廊道时,其日常的身份被暂时搁置,开始准备接受作为体验者的新身份。


▽吧台© 刘国威

vsszan2077262408030413.jpg
vsszan2077262408030414.jpg



过渡仪式
穿过廊道,进入店铺内部,顾客就进入了纯粹的阈限空间,这是仪式的核心阶段,个体处于身份悬置、规范模糊、充满可能性的“之间”状态。这里是多个场景的集合地,每一个
设计元素都在强化这种“之间”感。


▽长桌区© 刘国威

vsszan2077262408030415.jpg
vsszan2077262408030416.png



顾客在壁炉、假窗、圆桌、绿椅构成的“之间”地带徘徊,身份处于模糊状态。
这个阶段是“反结构”的——日常的社会等级、行为规范被暂时打破,人们进入一种“交融”状态。顾客在此阶段“什么都不是”,也因此“什么都可以是”——他们的身份是开放的、流动的、正在生成的、与场景相对应的。


▽壁炉© 刘国威

vsszan2077262408030417.jpg
vsszan2077262408030418.jpg



聚合仪式
当顾客穿过另一个廊道回到街道时,他们完成了整个循环。他们已不是进入时的那个“旧我”,他们带着空间体验的痕迹,可能是放松的心情、美好的记忆、或对某个场景的记忆,重新融入日常生活。聚合并不意味着阈限体验的消失,而是将其内化为个人经验的一部分,顾客未来可能会因为这次体验而再次到访,或者向他人讲述这个空间——这都是仪式效果的延续。


▽出口廊道© 刘国威

vsszan2077262408030419.png



愿景
《通过仪式》中指出,人的一生由无数过渡构成,每一次转换都需要“分离-过渡-聚合”的仪式承载,Bar Vena的空间正是对这一理论的回响。
在现代生活的夹缝中,酒吧是一种仪式性的缓冲地带:让人们在理性化的日常之外,获得短暂卸下社会角色的空隙,这里不只为饮酒而设,更为都市人提供一个可以重新触碰自我的过渡之所。


▽平面图© 刘国威

vsszan2077262408030420.jpg


完整项目信息
项目名称:Bar Vena
项目功能:葡萄酒&鸡尾酒吧
项目地点:上海市静安区永源路街区
建筑面积:70㎡
竣工时间:2026.1
业主方: Vicky & Bob
设计单位:即时设计研究所(IM Design)
主持建筑师:周小富
设计团队:周小富、傅帅、李帅、李敏
施工单位:杭州荣升装饰工程有限公司
材料 :木、不锈钢、艺术涂料、洞石、皮艺等
摄影:刘国威

AI文本分析中……
AI色彩命名中……
syhgdesign2026-3-25 01:07:13
感谢楼主辛苦分享
ppap7772026-4-6 19:24:52
感谢分享!!感谢分享!!
dvtpter2026-4-17 07:43:12
您需要登录后才可以回帖 登录 | 注册序赞号

快速回复 返回顶部 返回列表