汉中雀斑QIOBAN Bistro | 贰方设计 | 2026 | 中国陕西



品牌定位
雀斑(QIOBAN)位于汉中市老邮电局旧址改造而成的文创街区。作为一家融合复古与新潮的精品餐酒吧及咖啡馆,150 m² 的独栋老建筑改造秉持 “修旧如旧” 的理念。我们保留了青砖、白泥墙、老木梁与红瓦等原始风貌,以克制的新材质点缀其间,营造出新老共生的独特场域。


▽项目外观©日光君

vsszan207728240803041.jpg
vsszan207728240803042.jpg
vsszan207728240803043.jpg



设计思路
历史底色与城市微更新: 本项目位于汉中邮局旧址,整体街区由知名建筑团队奠定了“修旧如旧”的更新基调。在园区规划中,黑色混凝土与锈蚀钢板等具有粗野力量感的材料,与历经风霜的老建筑残存交织。作为室内设计方,TWO² Design 深受这一理念启发。我们不希望内部空间仅是建筑的延伸,而是一场关于“时间、痕迹与新生”的深度对话。


▽“修旧如旧”的更新基调©日光君

vsszan207728240803044.jpg

▽采用具有粗野力量感的材料©日光君

vsszan207728240803045.jpg
vsszan207728240803046.jpg



空间布局与设计细节
立面重构 (Facade Renovation): 所有的门窗开洞位均增设了镀锌铁板雨棚,以现代工业语言回应旧时代的建筑纹理。


▽立面设计©日光君

vsszan207728240803047.jpg
vsszan207728240803048.jpg



地面叙事 (Floor Narrative): 摒弃繁复装饰,采用最质朴的混凝土找平,让地面的质感退居幕后,承托起整体的复古氛围。


▽采用最质朴的混凝土找平©日光君

vsszan207728240803049.jpg

▽采用最质朴的混凝土找平©日光君

vsszan2077282408030410.jpg



入口视觉 (Entrance Identity): 建筑入口处大胆使用了带有彩色骨料的水磨石。这种带有时代记忆却又充满跳跃感的材质,成为了新旧交替的完美过渡。


▽入口处使用带有彩色骨料的水磨石©日光君

vsszan2077282408030411.jpg

▽入口处使用带有彩色骨料的水磨石©日光君

vsszan2077282408030412.jpg
vsszan2077282408030413.jpg



材质与色彩运用
柔性介质的平衡: 强硬的材质需要柔软的介质来平衡。我们在黑色混凝土楼梯两侧悬挂了牛皮纸艺术装置。其自然的肌理在复古灯具的晕染下,犹如凝固的光影瀑布,柔化了空间的冷峻感,为硬朗的工业内核注入了一丝诗意。


▽楼梯两侧悬挂了牛皮纸艺术装置©日光君

vsszan2077282408030414.jpg

▽牛皮纸艺术装置与灯光相得益彰©日光君

vsszan2077282408030415.jpg

▽犹如凝固的光影瀑布©日光君

vsszan2077282408030416.jpg

▽柔化了空间的冷峻感©日光君

vsszan2077282408030417.jpg
vsszan2077282408030418.jpg

▽屋顶天窗细部©日光君

vsszan2077282408030419.jpg
vsszan2077282408030420.jpg



嵌入历史肌理的“黑色盒子”: 在功能分区上,我们采用“异质体嵌入 (Heterogeneous Embedding)”策略。核心吧台区被定义为一个极致纯粹的“黑色盒子”,直接嵌顿在老建筑斑驳的砖墙下。黑色主材与时间冲刷出的红砖形成视觉张力,以绝对的现代感反衬岁月之美。


▽剖面©贰方设计

vsszan2077282408030421.jpg

▽吧台区被定义为一个极致纯粹的“黑色盒子”©日光君

vsszan2077282408030422.jpg

▽吧台区被定义为一个极致纯粹的“黑色盒子”©日光君

vsszan2077282408030423.jpg
vsszan2077282408030424.jpg

▽用餐区局部©日光君

vsszan2077282408030425.jpg
vsszan2077282408030426.jpg



结语
QIOBAN Bistro 的改造,是 TWO² Design在尊重历史肌理前提下的一次克制而有力的现代介入。我们保留了被时间冲刷过的原始美感,同时以新材质作为“催化剂”,让老建筑在当代语境下重新呼吸,呈现出一种复古而又先锋的独特质感。


▽室内灯光©日光君

vsszan2077282408030427.jpg

▽入口灯光©日光君

vsszan2077282408030428.jpg

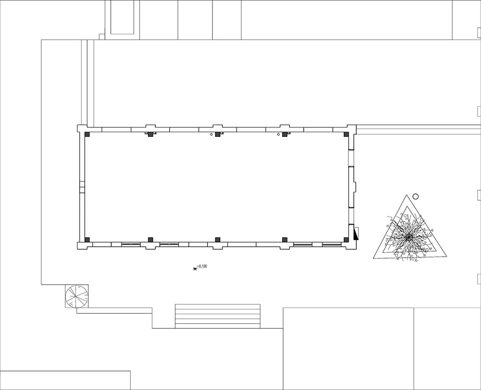
▽原始结构平面图©贰方设计

vsszan2077282408030429.jpg

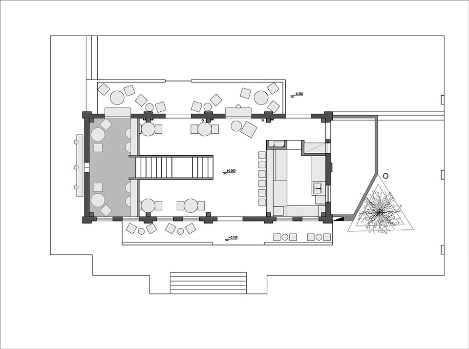
▽改造后一层平面©贰方设计

vsszan2077282408030430.jpg

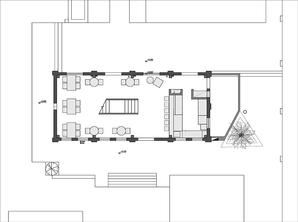
▽改造后二层平面©贰方设计

vsszan2077282408030431.jpg

▽剖面©贰方设计

vsszan2077282408030432.jpg
vsszan2077282408030433.jpg
vsszan2077282408030434.jpg
vsszan2077282408030435.jpg
vsszan2077282408030436.jpg
vsszan2077282408030437.jpg
vsszan2077282408030438.jpg


项目名称: 雀斑 QIOBAN Bistro
项目地点: 陕西省汉中市东大街爱转角文创街区04号
设计单位: 贰方设计 (TWO² Design)
主创设计: 桂晓庆、刘丹
设计团队: 贰方设计团队
建筑面积: 150 m²
项目摄影: 日光君
主要材料: 黑色现浇混凝土、灰色骨料水磨石、镀锌铁板、牛皮纸、原建筑红砖/青砖

AI文本分析中……
AI色彩命名中……
syhgdesign2026-3-30 00:43:12
感谢楼主辛苦分享
您需要登录后才可以回帖 登录 | 注册序赞号

快速回复 返回顶部 返回列表