寒山别院 | 无设建筑 | 2025 | 中国江苏



苏州的寒山寺,每天都很忙。游客从四面八方而来,烧香、撞钟、看碑刻,热闹是真热闹。但若是想在寺里找个安静的角落,坐下来看会儿书,抄抄经,或者细细欣赏一些艺术作品,却并不容易。人流量太大,加上能用来做这些事的空间本身也有限,那些需要沉下心才能感受的意趣,很难在这里充分展开。与寒山寺相邻,无设建筑的新作——寒山别院,不久前落成了。它不是寺庙的附属建筑,更像是从寒山寺的人文脉络里长出来的一片“留白”。

01 功能的留白:安放那些需要慢下来感受的东西
寒山别院的出现,是对寒山寺人文功能的一种延伸——把那些受限于空间、无法在寺内展开的内容,在这里落地。这里实现的是多功能场景:美术馆空间,定期邀请与佛学、生活美学相关的艺术家来做展览;书院空间,采取预约制,让真正想抄经、看书的人,可以不受打扰地静心做自己的事。还有茶室空间,可以坐下来,清清静静喝几杯茶。


▽入口夜景© Y³STUDIO外立方空间影像

vsszan207792261138131.jpg

▽光影© Y³STUDIO外立方空间影像

vsszan207792261138132.jpg

▽logo细部© Y³STUDIO外立方空间影像

vsszan207792261138133.jpg

▽室内视角© Y³STUDIO外立方空间影像

vsszan207792261138134.jpg

▽外观© Y³STUDIO外立方空间影像

vsszan207792261138135.jpg

▽室内一角© Y³STUDIO外立方空间影像

vsszan207792261138136.jpg

▽茶室© Y³STUDIO外立方空间影像

vsszan207792261138137.jpg
vsszan207792261138138.jpg



02 空间的留白:古意今用,一切留有余地
走进寒山别院,最让人印象深刻的,是那个“留白”的主厅。整个主厅几乎都是空的,除了中间一个四面开放的岛台。这不是设计上的疏漏,而是刻意留出来的余地——以后这里可以做沙龙、办展览、搞讲座,空间能随时变换角色。顶部开设了天窗,光影在地上缓缓移动,像日晷一样,帮你在空间里感知时间的流逝。


▽夜景© Y³STUDIO外立方空间影像

vsszan207792261138139.jpg

▽主厅© Y³STUDIO外立方空间影像

vsszan2077922611381310.jpg
vsszan2077922611381311.jpg

▽四面开放的岛台© Y³STUDIO外立方空间影像

vsszan2077922611381312.jpg

▽天花板细部© Y³STUDIO外立方空间影像

vsszan2077922611381313.jpg

▽细部© Y³STUDIO外立方空间影像

vsszan2077922611381314.jpg



主厅两边相对的柱子疏密不同,密度是1:1.5的比例,留出了天然的节奏感。密度大的那一侧,每个柱间都可以成为小型展示区,暗藏挂画轨道,顶上的木梁也能承重布展。平日空着,是通透的通道;有展览时,随时变身展陈空间。中间的岛台四面开放,日常的咖啡、茶水都由这里提供,有活动时就是场域的服务中心。空间本身很克制,能承载的内容却远比看上去丰富。


▽主厅两边相对的柱子疏密不同© Y³STUDIO外立方空间影像

vsszan2077922611381315.jpg

▽天窗© Y³STUDIO外立方空间影像

vsszan2077922611381316.jpg

▽四面开放的岛台© Y³STUDIO外立方空间影像

vsszan2077922611381317.jpg
vsszan2077922611381318.jpg

▽空间本身很克制© Y³STUDIO外立方空间影像

vsszan2077922611381319.jpg
vsszan2077922611381320.jpg

▽岛台© Y³STUDIO外立方空间影像

vsszan2077922611381321.jpg

▽光影© Y³STUDIO外立方空间影像

vsszan2077922611381322.jpg
vsszan2077922611381323.jpg

▽咖啡岛台© Y³STUDIO外立方空间影像

vsszan2077922611381324.jpg
vsszan2077922611381325.jpg

▽光影© Y³STUDIO外立方空间影像

vsszan2077922611381326.jpg

▽通透的廊© Y³STUDIO外立方空间影像

vsszan2077922611381327.jpg

▽由庭院看岛台© Y³STUDIO外立方空间影像

vsszan2077922611381328.jpg



院子没有刻意复制传统苏式园林的形制,而用了更现代的手法,走进去,还是能撞见苏式园林里才有的那种清幽韵味。别院里还藏着几间小而安静的茶室,低调地嵌在空间里。不刻意,不拥挤,刚刚好。


▽庭院© Y³STUDIO外立方空间影像

vsszan2077922611381329.jpg

▽庭院© Y³STUDIO外立方空间影像

vsszan2077922611381330.jpg
vsszan2077922611381331.jpg

▽廊下空间© Y³STUDIO外立方空间影像

vsszan2077922611381332.jpg
vsszan2077922611381333.jpg

▽庭院的清幽韵味© Y³STUDIO外立方空间影像

vsszan2077922611381334.jpg

▽细部© Y³STUDIO外立方空间影像

vsszan2077922611381335.jpg

▽茶室© Y³STUDIO外立方空间影像

vsszan2077922611381336.jpg
vsszan2077922611381337.jpg



03 材料的留白:新与旧的安静对话
材料的选择上,顾忆团队既不刻意仿古,也不一味求新,就在苏州本地找那些带着年代、有故事的自然材料。吧台上方的木梁,是当地寻来的老木头;进门的地面,用老石板重新打磨铺就;入口处的太湖石,连同底座也都是老物件……佛像底下那块红色石头,取自清代的旧石料,经过大漆的处理,成为一座近乎现代意味的艺术装置。旧木、老石、新墙、玻璃,这些元素放在一起,没有谁抢谁的风头,反而生出一种安静的默契,各自安好。


▽吧台上方的木梁© Y³STUDIO外立方空间影像

vsszan2077922611381338.jpg

▽室外视角© Y³STUDIO外立方空间影像

vsszan2077922611381339.jpg

▽室内视角© Y³STUDIO外立方空间影像

vsszan2077922611381340.jpg

▽夜景© Y³STUDIO外立方空间影像

vsszan2077922611381341.jpg

▽庭院与细部© Y³STUDIO外立方空间影像

vsszan2077922611381342.jpg
vsszan2077922611381343.jpg
vsszan2077922611381344.jpg



下次去寒山寺,如果逛完还想再待一会儿,不妨多走几步,到寒山别院来坐坐。一墙之外,是香火与人声的热闹;在别院感受到的,只有安静。当天光自顶部洒落,不急不缓地在地面留下温柔的足迹。翻几页书,喝一盏茶,或者只是坐着,发一会儿呆……等从别院出来,再回想刚逛过的寺门内外,会有一瞬间的恍惚。一边是千年来不曾断过的香火,一边是只有光在替时间游走的清寂。热闹是它,清寂也是它。两条路,几步之遥,走出来的却是两种心境。


▽夜景© Y³STUDIO外立方空间影像

vsszan2077922611381345.jpg

▽室内夜景© Y³STUDIO外立方空间影像

vsszan2077922611381346.jpg

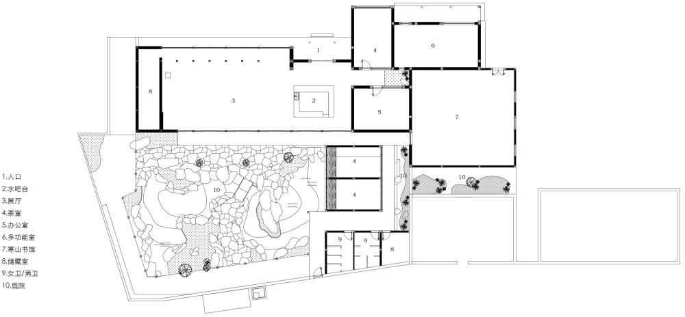
▽平面图© 无设建筑

vsszan2077922611381347.jpg
vsszan2077922611381348.jpg
vsszan2077922611381349.jpg
vsszan2077922611381350.jpg
vsszan2077922611381351.jpg
vsszan2077922611381352.jpg
vsszan2077922611381353.jpg
vsszan2077922611381354.jpg
vsszan2077922611381355.jpg
vsszan2077922611381356.jpg
vsszan2077922611381357.jpg
vsszan2077922611381358.jpg
vsszan2077922611381359.jpg
vsszan2077922611381360.jpg
vsszan2077922611381361.jpg
vsszan2077922611381362.jpg
vsszan2077922611381363.jpg
vsszan2077922611381364.jpg
vsszan2077922611381365.jpg
vsszan2077922611381366.jpg
vsszan2077922611381367.jpg
vsszan2077922611381368.jpg
vsszan2077922611381369.jpg
vsszan2077922611381370.jpg
vsszan2077922611381371.jpg
vsszan2077922611381372.jpg
vsszan2077922611381373.jpg
vsszan2077922611381374.jpg
vsszan2077922611381375.jpg
vsszan2077922611381376.jpg


项目信息
项目名称: 寒山别院
设计事务所:无设建筑
设计团队:顾忆、苏美娜、高峰、万如雪、石琳
设计内容: 建筑、室内、景观、软装、标识
项目面积: 建筑面积620㎡,庭院面积415㎡
项目地址: 江苏省苏州市姑苏区枫桥风景名胜区
完工日期:2025年12月
项目类型:公共空间
主要材料: 真石漆、艺术涂料、莱姆石、水泥砖、木构
工程单位:上海耀钰建筑装饰工程有限公司
结构设计单位:翊构营造
空间摄影:Y³ STUDIO外立方空间影像

AI文本分析中……
AI色彩命名中……
syhgdesign2026-3-29 01:02:43
感谢楼主辛苦分享
95qabc2026-3-31 16:23:48

谢谢分享!!!谢谢分享!
您需要登录后才可以回帖 登录 | 注册序赞号

快速回复 返回顶部 返回列表