溪珺庭 | 亚鑫设计 | 2026 | 中国浙江
vsszan207834290043061.png
vsszan207834290043062.png
vsszan207834290043063.png



真正令人向往的居所,是一场被岁月温柔梳理过的生活仪式,在光线的游走、空间的开阖、材质的肌理与动线的起伏之间,缓缓流淌出属于居住者独有的生命节奏。
位于临安苕溪之畔的溪珺庭,便是这样一处存在。它拥有180㎡的轩敞骨架,以湖景大平层为载体,试图在繁华与静谧的交界处,为当代都市人裁下一段可以安放身心的、诗意的时光。


01
PRELUDE
启 曲
推开大门,玄关作为空间的序曲,并非简单的功能过渡,而是一道过滤喧嚣的情绪门槛。
在这里,设计者以极具分寸感的笔触,勾勒出归家瞬间的仪式感。木色顶面带着自然的温润,与深灰色柜体形成了一种视觉上的稳定感。


vsszan207834290043064.png
vsszan207834290043065.png
vsszan207834290043066.png
vsszan207834290043067.png



02
CANTABILE
食 律
转过玄关的宁静,空间豁然开朗,西厨与餐厅区域以一种开放而包容的姿态跃入眼帘。
大理石餐桌以其天然的纹理,在灯光下闪烁着静谧的微光,与意式极简餐椅共同构建了一个既高级又松弛的用餐环境。这里不仅是盛放三餐四季的容器,更是家人围坐、分享日常点滴的温情中心。


vsszan207834290043068.png
vsszan207834290043069.png
vsszan2078342900430610.png
vsszan2078342900430611.png



餐厨区的细节处理,米白色混油木饰面的亮色调,让整个区域显得通透而清爽,它与金属材质的克制运用、石材的凝练质感交织在一起,形成了一种极具层次的美学表达。


vsszan2078342900430612.png
vsszan2078342900430613.png



03
MAIN MELODY
欢 章
客厅的布局,打破了传统的束缚,呈现出一种“去中心化”的自由与松弛。
地平线沙发以横向舒展的姿态,确立了空间的安定感,而Vitra旋转椅的加入,则为生活注入了灵动的变奏。


vsszan2078342900430614.png
vsszan2078342900430615.png



在这里,人可以窝在沙发里听一段黑胶唱片,看阳光在天花板上划过缓慢的弧线;也可以坐在窗边,看苕溪之上的薄雾散去。


vsszan2078342900430616.png
vsszan2078342900430617.png
vsszan2078342900430618.png



阳台的复合利用,为居住者留下了与自然对话的余地。当微风掠过窗纱,湖面的水气似乎也随之氤氲在客厅的角落。这这正是一种真正成熟的审美:在秩序中寻找诗意,在风景中安放日常。


vsszan2078342900430619.png
vsszan2078342900430620.png



04
LULLABY
眠 韵
如果说公共区域是生活的舞台,那么步入私密区域,便是一场向内行走的感官修复之旅。
主人房套间的设计,不仅是空间尺度的叠加,更是一套关于私密生活逻辑的深度推演。它将梳洗、更衣、休憩与静思的功能有机整合,形成了一个自给自足的“小世界”。Cassina宽屏床以其克制的几何线条确立了卧室的骨架,而灰色布艺的质感则中和了现代设计的冷峻。


vsszan2078342900430621.png
vsszan2078342900430622.png



当石材的冷峻与艺术漆的柔和在墙角相遇,那一道细微的收口缝隙,无声地展示着工匠的匠心与设计师的热爱。
磨砂表面的沉稳、金属线条的利落、玻璃材质的剔透,它们在同一个场域内达成了一种动态的平衡。


vsszan2078342900430623.png
vsszan2078342900430624.png
vsszan2078342900430625.png



真正的奢华,往往隐藏在那些不经意的微观之处。溪珺庭的魅力,很大程度上源于它对细节的分寸感。


vsszan2078342900430626.png
vsszan2078342900430627.png



溪珺庭的呈现,最终完成了一场关于理想生活的深度实践。在苕溪的潮起潮落间,以温婉而克制的笔触,在都市的喧嚣中开辟出一片宁静的湖泊,让松弛感不再是遥不可及的奢望,而是每一天都能触碰到的日常。
当我们走出溪珺庭,回望那一抹映在落地窗上的夕阳,心中或许会生出这样的感慨:最好的居所,大约便是这般模样——它温柔地接纳了你所有的疲惫,又悄无声息地,赋予了你重新出发的力量。


vsszan2078342900430628.png
vsszan2078342900430629.png

分析图

vsszan2078342900430630.png

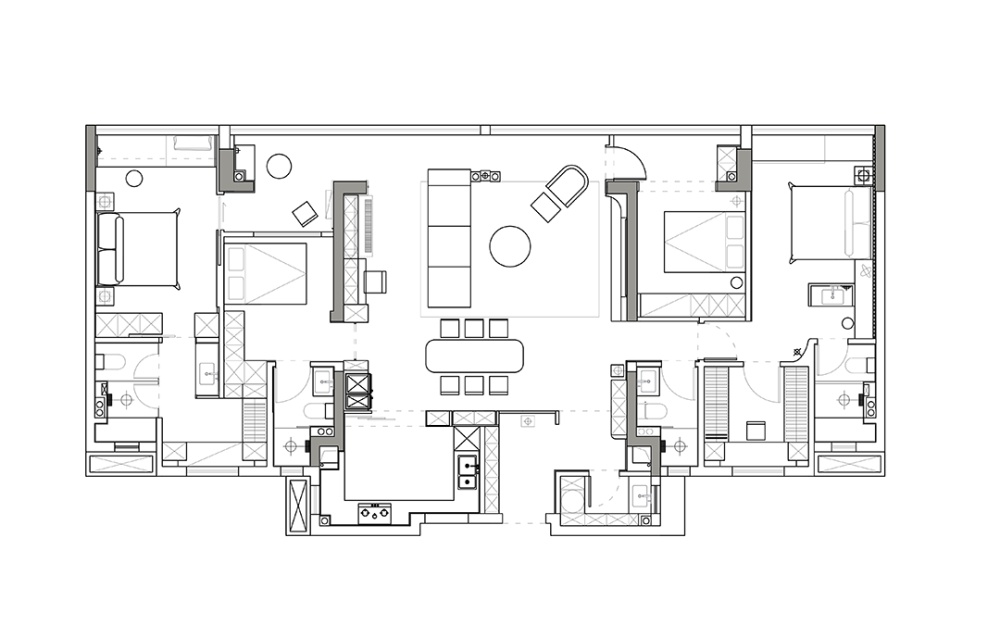
平面图



- 项目名称 -溪珺庭
- 设计机构 -YaXinDesign亚鑫设计
- 设计主创 -项 强
- 设计团队 -楼明旸 季亚芸
- 项目施工 -亚鑫装饰
- 项目面积 -180m²
- 项目地址 -杭州 临安
- 项目摄影 -瀚墨视觉 吴复鹏
- 项目策划 -瀚墨视觉


DESIGNER

vsszan2078342900430631.png

项 强

设计主创



亚鑫装饰成立于2013年,深耕家装领域,集全案设计、精工施工、软装落地为一体,为私宅与品质空间提供专属定制方案。
历经时光沉淀与匠心坚守,在生活与美学之间探寻平衡,融合本土情怀与当代审美,坚持做有温度、有灵魂的人居空间。


    • 转自:LJ看设计
    • 图片©亚鑫设计
    • 编辑:序赞网
    • 阅读原文
    AI文本分析中……
    AI色彩命名中……
    95qabc2026-4-5 23:08:39

    谢谢分享!!!谢谢分享!
    您需要登录后才可以回帖 登录 | 注册序赞号

    快速回复 返回顶部 返回列表