PAULA住宅 | Luciano Kruk | 2019 | 巴西



“审美是非常脆弱的。”Luciano Kruk曾这样提醒这座住宅的业主,而他们也认真对待了这一点,尽最大努力确保最终成果忠实呈现建筑师的设计愿景。项目位于São Paulo郊区的一处开发社区中,周边环境经过精心规划,包括一座人工湖与高尔夫球场。


▽住宅概览© Daniela Mac Adden

vsszan208042091627531.jpg
vsszan208042091627532.jpg

▽住宅外观© Daniela Mac Adden

vsszan208042091627533.jpg
vsszan208042091627534.jpg
vsszan208042091627535.jpg



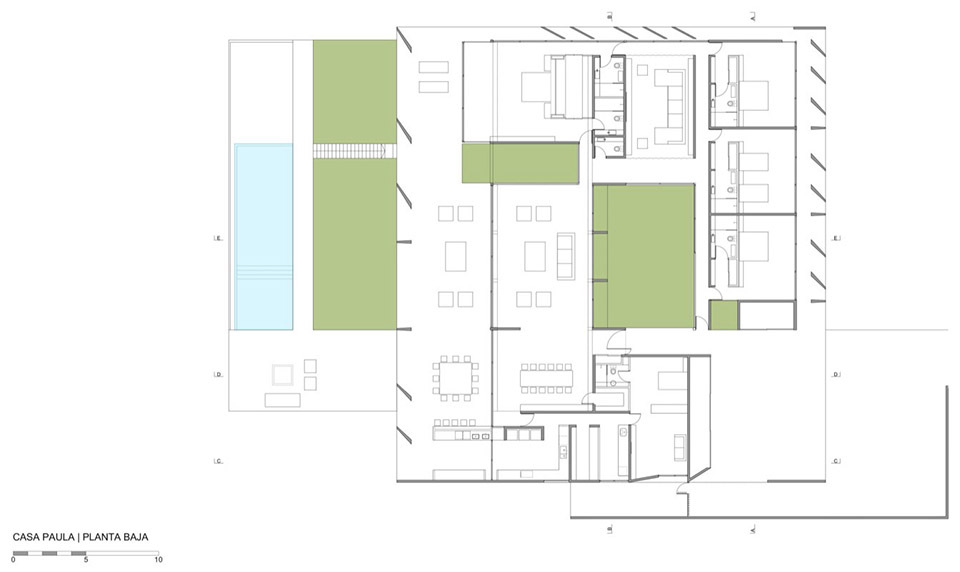
业主热爱巴西艺术与文化,希望住宅能够体现其生活方式,并在设计上具有鲜明特质。在设计过程中,Luciano面临的最大挑战,是如何在满足大体量住宅需求的同时,使其不被感知为笨重的整体,而是与周围景观和谐融合。为此,他将住宅主要功能组织在一个水平层面,并辅以一个隐藏层,用于布置设备空间与健身房,从而实现与环境的平衡关系。


▽轴测图© Luciano Kruk Arquitectos

vsszan208042091627536.jpg

▽双层建筑体量依坡而建© Daniela Mac Adden

vsszan208042091627537.jpg
vsszan208042091627538.jpg

▽混凝土建筑结构© Daniela Mac Adden

vsszan208042091627539.jpg
vsszan2080420916275310.jpg

▽庭院平台/停车平台© Daniela Mac Adden

vsszan2080420916275311.jpg



住宅围绕一个中央庭院展开,庭院内种植了典型的大西洋森林植被,营造出富有观赏性的空间。整体包含四间卧室(包括一间主卧与三间儿童房)、一个宽敞的起居空间以及娱乐区域。


▽中央庭院© Daniela Mac Adden

vsszan2080420916275312.jpg

▽围绕中央庭院的走廊© Daniela Mac Adden

vsszan2080420916275313.jpg
vsszan2080420916275314.jpg
vsszan2080420916275315.jpg
vsszan2080420916275316.jpg
vsszan2080420916275317.jpg

▽由室内看庭院© Daniela Mac Adden

vsszan2080420916275318.jpg



一条宽敞的廊道占据了场地中最具优势的位置,可直接眺望湖泊与高尔夫球场,是住宅的核心空间。在巴西气候条件下,人们一年中大部分时间都可以享受户外生活,可以说,这类空间正是当地生活方式的重要组成部分。由于最佳景观方向同时也是夕阳方向,廊道通过倾斜的混凝土隔墙进行遮阳,以减弱午后阳光的影响。


▽通往底层的楼梯© Daniela Mac Adden

vsszan2080420916275319.jpg
vsszan2080420916275320.jpg

▽外观近景© Daniela Mac Adden

vsszan2080420916275321.jpg
vsszan2080420916275322.jpg
vsszan2080420916275323.jpg
vsszan2080420916275324.jpg

▽混凝土廊下空间© Daniela Mac Adden

vsszan2080420916275325.jpg
vsszan2080420916275326.jpg
vsszan2080420916275327.jpg
vsszan2080420916275328.jpg

▽宽敞的廊道© Daniela Mac Adden

vsszan2080420916275329.jpg
vsszan2080420916275330.jpg

▽半户外的生活空间© Daniela Mac Adden

vsszan2080420916275331.jpg
vsszan2080420916275332.jpg
vsszan2080420916275333.jpg

▽半户外客厅与餐厅© Daniela Mac Adden

vsszan2080420916275334.jpg
vsszan2080420916275335.jpg

▽宽敞的廊下空间© Daniela Mac Adden

vsszan2080420916275336.jpg
vsszan2080420916275337.jpg
vsszan2080420916275338.jpg

▽模糊的室内外界限© Daniela Mac Adden

vsszan2080420916275339.jpg

▽客厅© Daniela Mac Adden

vsszan2080420916275340.jpg
vsszan2080420916275341.jpg
vsszan2080420916275342.jpg

▽由客厅看室外© Daniela Mac Adden

vsszan2080420916275343.jpg

▽客厅光影© Daniela Mac Adden

vsszan2080420916275344.jpg

▽由灰空间看湖景© Daniela Mac Adden

vsszan2080420916275345.jpg

▽餐厅© Daniela Mac Adden

vsszan2080420916275346.jpg

▽大面积的玻璃反射了室内外景观© Daniela Mac Adden

vsszan2080420916275347.jpg

▽电视室© Daniela Mac Adden

vsszan2080420916275348.jpg
vsszan2080420916275349.jpg



泳池与主层处于同一高度(抬升于地面之上),通过对湖面的映射实现与景观的融合,在视觉上建立起两个水体之间的连续性。其无边界设计形成瀑布般的水流效果,在地面层呈现为一件雕塑性的景观元素。


▽泳池© Daniela Mac Adden

vsszan2080420916275350.jpg
vsszan2080420916275351.jpg

▽泳池平台与庭院© Daniela Mac Adden

vsszan2080420916275352.jpg
vsszan2080420916275353.jpg

▽泳池© Daniela Mac Adden

vsszan2080420916275354.jpg



卧室布置在地块前侧,面向一片宽阔的前庭花园,在提供私密性的同时,也实现了与自然的直接联系。


▽卧室© Daniela Mac Adden

vsszan2080420916275355.jpg
vsszan2080420916275356.jpg
vsszan2080420916275357.jpg



在施工过程中,Luciano特别强调业主与施工团队的重要作用。施工方专注于高品质设计住宅的建造,为项目创造了理想条件,使整个过程得以顺畅推进,并最终实现了对原始设计的高度还原。


▽走廊© Daniela Mac Adden

vsszan2080420916275358.jpg

▽走廊细部© Daniela Mac Adden

vsszan2080420916275359.jpg
vsszan2080420916275360.jpg

▽厨房© Daniela Mac Adden

vsszan2080420916275361.jpg
vsszan2080420916275362.jpg

▽浴室© Daniela Mac Adden

vsszan2080420916275363.jpg
vsszan2080420916275364.jpg

▽楼梯© Daniela Mac Adden

vsszan2080420916275365.jpg



建筑师与施工团队成功将地理上的距离转化为协作上的紧密联系,通过持续沟通与反馈,使项目不仅在成果上令人满意,也成为业主与团队共同参与的一段愉悦且富有激励性的经历。


▽夜间远景© Daniela Mac Adden

vsszan2080420916275366.jpg
vsszan2080420916275367.jpg
vsszan2080420916275368.jpg

▽灯光设计© Daniela Mac Adden

vsszan2080420916275369.jpg
vsszan2080420916275370.jpg

▽夜景细部© Daniela Mac Adden

vsszan2080420916275371.jpg
vsszan2080420916275372.jpg
vsszan2080420916275373.jpg

▽停车场夜景© Daniela Mac Adden

vsszan2080420916275374.jpg

▽泳池夜景© Daniela Mac Adden

vsszan2080420916275375.jpg
vsszan2080420916275376.jpg

▽轴测图© Luciano Kruk Arquitectos

vsszan2080420916275377.jpg

▽总平面图© Luciano Kruk Arquitectos

vsszan2080420916275378.jpg

▽平面图© Luciano Kruk Arquitectos

vsszan2080420916275379.jpg

▽立面图© Luciano Kruk Arquitectos

vsszan2080420916275380.jpg
vsszan2080420916275381.jpg
vsszan2080420916275382.jpg
vsszan2080420916275383.jpg

▽剖面图© Luciano Kruk Arquitectos

vsszan2080420916275384.jpg
vsszan2080420916275385.jpg
vsszan2080420916275386.jpg
vsszan2080420916275387.jpg
vsszan2080420916275388.jpg

▽剖面图© Luciano Kruk Arquitectos

vsszan2080420916275389.jpg
vsszan2080420916275390.jpg
vsszan2080420916275391.jpg
vsszan2080420916275392.jpg
vsszan2080420916275393.jpg
vsszan2080420916275394.jpg
vsszan2080420916275395.jpg
vsszan2080420916275396.jpg
vsszan2080420916275397.jpg
vsszan2080420916275398.jpg
vsszan2080420916275399.jpg
vsszan20804209162753100.jpg
vsszan20804209162753101.jpg
vsszan20804209162753102.jpg
vsszan20804209162753103.jpg
vsszan20804209162753104.jpg
vsszan20804209162753105.jpg
vsszan20804209162753106.jpg
vsszan20804209162753107.jpg
vsszan20804209162753108.jpg
vsszan20804209162753109.jpg
vsszan20804209162753110.jpg
vsszan20804209162753111.jpg
vsszan20804209162753112.jpg
vsszan20804209162753113.jpg
vsszan20804209162753114.jpg
vsszan20804209162753115.jpg
vsszan20804209162753116.jpg
vsszan20804209162753117.jpg
vsszan20804209162753118.jpg
vsszan20804209162753119.jpg
vsszan20804209162753120.jpg


CASA PAULA
Award: Platinum Prize, IDPA Japan 2025
Location:Sao Paulo, Brazil
Architect:Arch. Luciano Kruk
Project Manager:Arch. Sol Alvarez
Collaborator: Arch. Melanie Chismechian
Construction: Constructora Epson
Photos: Daniela Mac Adden
Text: Arch. Ekaterina Kunzel

Land area: 3070m2

Built area: 753m2

Construction year: 2019

AI文本分析中……
AI色彩命名中……
syhgdesign2026-4-11 01:48:42
感谢楼主辛苦分享
您需要登录后才可以回帖 登录 | 注册序赞号

快速回复 返回顶部 返回列表