私域之境 | 叶设计 | 2026 | 中国浙江
vsszan208054100026281.png



设计不是一种技能,而是捕捉事物本质的感觉与洞察能力。


vsszan208054100026282.png
vsszan208054100026283.png



无界是空间的假象,诗意是光影的悬停,禅意在克制里留下余韵,浮起一座不落尘埃的栖心之所。


vsszan208054100026284.png



暖灯把树影搂成柔软的梦,星河般的光带蜿蜒水间,景石枫树静默,黑白灰铺开的纸上,盛放极简之美。


vsszan208054100026285.png
vsszan208054100026286.png
vsszan208054100026287.png



归家的刹那,温柔从门缝里泄出来。光穿过格栅,把客厅的雅致剪成一道一道的,镀上朦胧的釉色。


vsszan208054100026288.png



客厅是安静的叙事者,以极简为底色,沙发安然落座于中央,布艺的温度、线条的克制,是品味的无声注解。
落地窗为框,揽尽庭中四时景。通透,源于自然;生机,源于流动。


vsszan208054100026289.png
vsszan2080541000262810.png



空间在这里留了白,客厅的开阔由此蔓延,休闲区的静谧在此沉淀。视线往来无碍,动静各安其位。


vsszan2080541000262811.png
vsszan2080541000262812.png
vsszan2080541000262813.png



两层挑空,将空间向结构借了一尺,打破了传统的压抑感。


vsszan2080541000262814.png



木色为底,光影作笔。整面木饰面从容舒展,材质间悄然对话,温柔与克制共生,让生活在极简里,长出丰盈的诗意。


vsszan2080541000262815.png
vsszan2080541000262816.png



餐厨空间揭开面纱。线条方正利落,封闭被打破,厨房与餐厅融为一体。烹饪不再是孤岛,是家人互动、情感交织的中心。


vsszan2080541000262817.png
vsszan2080541000262818.png



一面墙,将厨房的万象安顿得妥帖。而餐桌有两种模样,团圆时圆桌围坐的灯火,寻常日子岛台长桌的随性。


vsszan2080541000262819.png
vsszan2080541000262820.png



地库,是家的前奏。木质的温润与金属的清冷,两种气质在此交织,生出一种独特的“温柔的工业感”。


vsszan2080541000262821.png



展厅似的鞋帽间,三面柜体环抱,一座岛台居中。洗手,整理,从外界到私域,不过是一个转身的距离。


vsszan2080541000262822.png
vsszan2080541000262823.png



二层女儿房,被设计轻轻对折。相同的配色、相同的布局、相同的功能,两个近乎镜像的独立世界。


vsszan2080541000262824.png
vsszan2080541000262825.png



房间入口的“迷你生活舱”,开放式衣帽间与水吧台合二为一,日常所需触手可及。休闲沙发守在旁侧,柔软得恰到好处。


vsszan2080541000262826.png



纯白系的卫浴空间,干净亦有质感。玻璃隔断单薄而立,浴缸静卧一隅,卸下整日疲惫。方寸之间,皆是为孩子生活习惯埋下的细致考量。


vsszan2080541000262827.png
vsszan2080541000262828.png



三层是整栋房子的“顶层私域”,主卧、起居室、内庭院串联成一条独享的动线。


vsszan2080541000262829.png



一个打破常规的步入式衣帽间。温润木语勾勒空间骨架,通透玻璃与金属线条织就秩序之美。


vsszan2080541000262830.png



卫浴空间褪去所有繁复,以统一的深色调包裹出一方静谧场域。浴缸临窗而设,视线自由穿行,掠过内庭院的安逸、起居室的灯火。


vsszan2080541000262831.png



步入起居室,匠造一体化多功能生活场域。


vsszan2080541000262832.png
vsszan2080541000262833.png



沙发后侧,书桌连壁成书,自成一方静雅耕读天地;轻转便是水吧雅区,办公与闲赏自在流转。


vsszan2080541000262834.png



全景落地窗铺展成画,将光与景毫无保留地迎入。抬眼,与内庭院的绿意隔空对望。两个空间,彼此映衬,各自成诗。


vsszan2080541000262835.png



方寸之内,见天地;咫尺之间,见心境。


vsszan2080541000262836.png

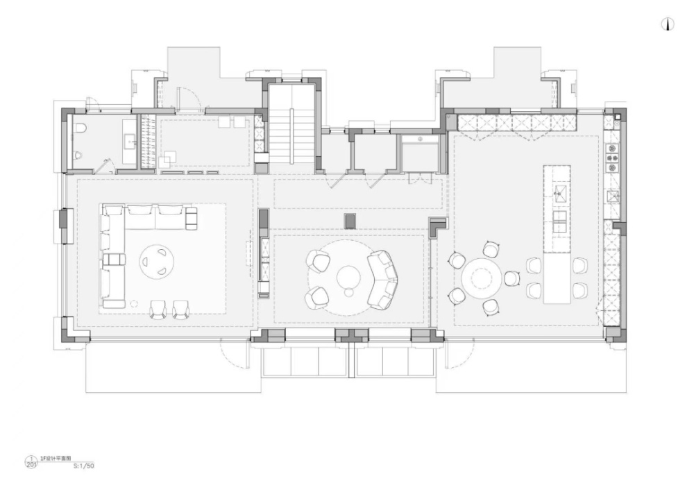
一层平面图

vsszan2080541000262837.png

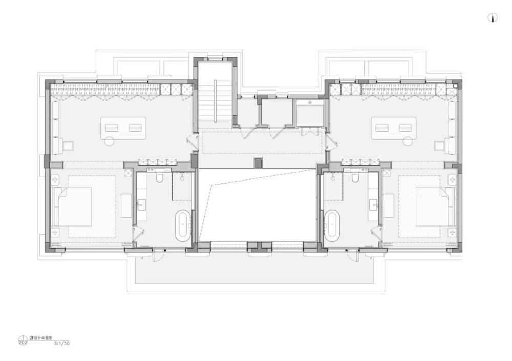
二层平面图

vsszan2080541000262838.png

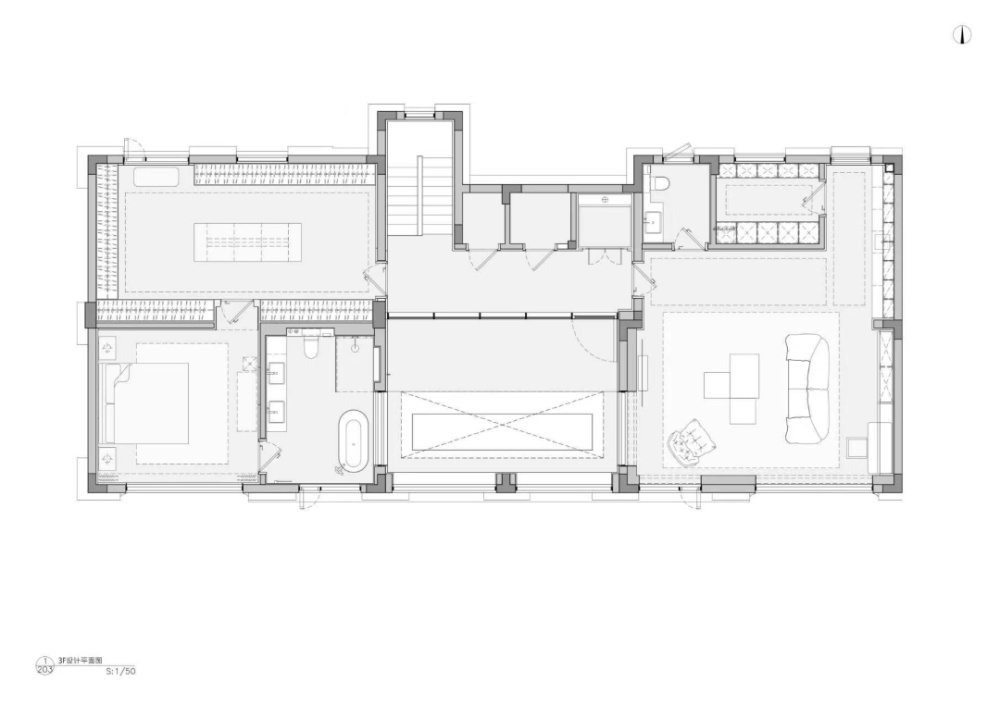
三层平面图

vsszan2080541000262839.png

地下夹层平面图

vsszan2080541000262840.png

地下室平面图



项目名称丨私域之境
项目地址丨浙江·台州
项目施工丨全案托管
项目面积丨880㎡
项目设计丨叶设计
主创设计丨叶祥宝、王聪颖
设计团队丨叶氕、叶宇杰、张倩
软装设计丨Casa Shu软装
项目摄影丨单行线空间摄影·朴言
品牌支持丨梵逊邦德、摩根智能、华邑国际·M77木作


vsszan2080541000262841.png


叶室内设计事务所由叶祥宝先生创立于2015年,是一家致力于从事别墅私宅、商业地产等高级定制化设计服务的高端全案设计公司。我们由实践经验丰富、立足当下的设计师、工程师领衔组成,从分析项目定位出发,针对客户需求提供从项目策划、空间设计、施工指导到软装落地等专业系统的服务。我们专注于每一空间设计,为其赋予独一价值,给予业主最佳的生活美学状态和宜居舒适的空间体验,并在此过程中不断创新与探索,开创出独特且符合当代审美的设计语言,引领当代生活方式。

vsszan2080541000262842.png

叶祥宝

叶设计创始人&创意总监

vsszan2080541000262843.png

王聪颖

叶设计设计总监



    • 转自:内外之间
    • 图片©叶设计
    • 编辑:序赞网
    • 阅读原文
    AI文本分析中……
    AI色彩命名中……
    95qabc2026-4-10 20:52:37

    谢谢分享!!!谢谢分享!
    syhgdesign2026-4-11 01:40:31
    感谢楼主辛苦分享
    cj8806262026-4-13 15:31:05
    设计效果是不错,但是房间的衣帽间,卧室,卫生间动线不是很理想
    您需要登录后才可以回帖 登录 | 注册序赞号

    快速回复 返回顶部 返回列表