微小辛 | 此西设计 | 2026 | 中国河南



餐厅的经营以川菜为基础的融合菜系为方向,在此基础上我们尝试空间以质朴的气质为基底,同时也能呈现情绪化的特质,让体验更多变,更有趣。


▽入口© 拿捏空间

vsszan208164161159231.jpg
vsszan208164161159232.jpg

▽建筑外观© 拿捏空间

vsszan208164161159233.jpg



餐厅分布于三层空间之内。一层空间中承载了公共用餐区的核心功能。设计的着重点在于:如何处理开放性与私密性之间的平衡。我们在空间两侧的入口处分别设置了一段具有“游览”性质的过渡区域,通过动线自然地将外界的喧闹与用餐区隔离开来,这与用餐区也形成了第二段入口,在丰富了空间的游走体验的同时,也有效提升了用餐区的私密性与舒适度。


▽“游览”性质的过渡区域© 拿捏空间

vsszan208164161159234.jpg
vsszan208164161159235.jpg
vsszan208164161159236.jpg
vsszan208164161159237.jpg

▽室内概览© 拿捏空间

vsszan208164161159238.jpg

▽吧台© 拿捏空间

vsszan208164161159239.jpg

▽披萨制作区© 拿捏空间

vsszan2081641611592310.jpg
vsszan2081641611592311.jpg
vsszan2081641611592312.jpg



我们强调手工感,在功能布局上,我们将吧台设置在一层的中心,集中了披萨和饮品的制作功能,作为一个视觉和功能的中心点辐射至一层的用餐区,现场开放的餐饮制作的感官体验,即形成了与用餐区的交互性,同时这种互动形成的情绪也与空间材质的手工感相契合。


▽用餐区© 拿捏空间

vsszan2081641611592313.jpg
vsszan2081641611592314.jpg
vsszan2081641611592315.jpg

▽走廊© 拿捏空间

vsszan2081641611592316.jpg

▽装饰细部© 拿捏空间

vsszan2081641611592317.jpg
vsszan2081641611592318.jpg



在组织空间色彩和材质的过程中,我们尝试在色彩和材质上都能融合一部分的情绪化的特质。为此,在大面积低饱和度的材质的基础上,我们让局部的色彩提亮,以打破空间稍显沉静的体验。围绕这个出发点,色彩的对比,空间材料的质感对比始终贯穿在一至三层的空间当中,希望在温和的气氛里,也能有一点点的出其不意。


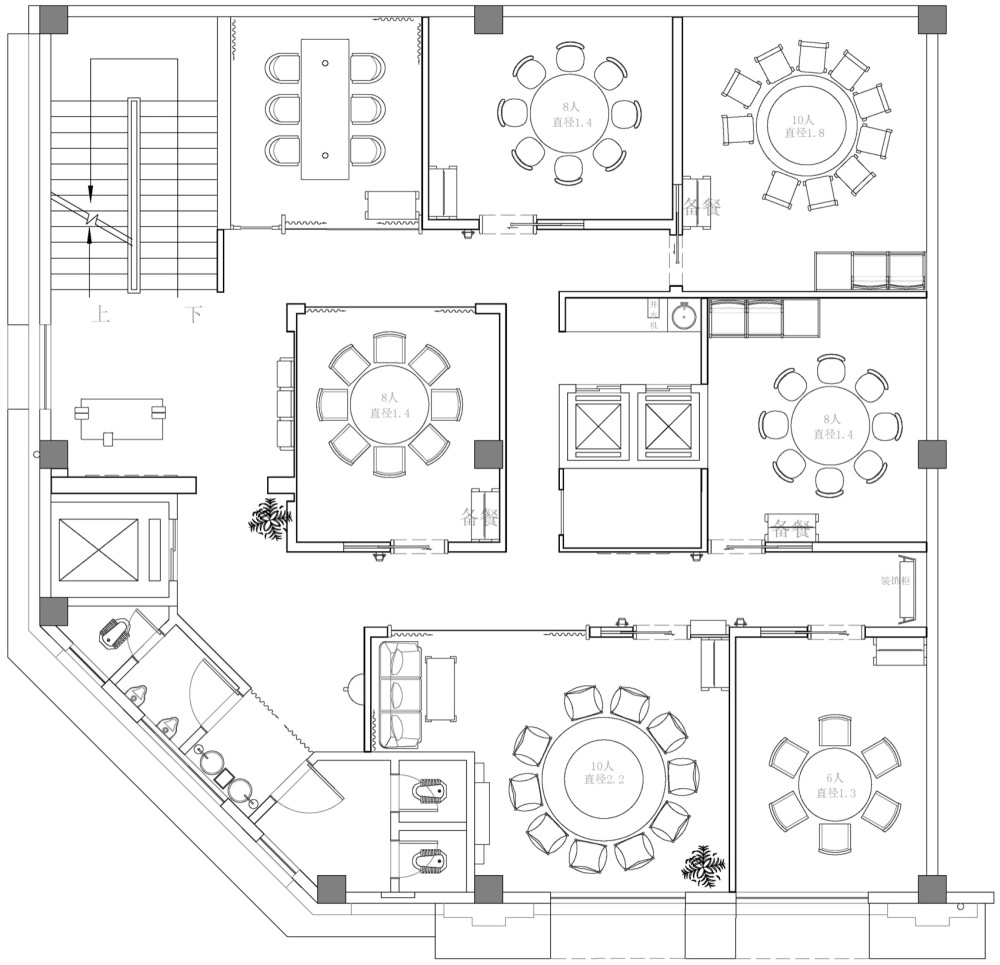
▽首层平面图© CeeSee此西设计

vsszan2081641611592319.jpg

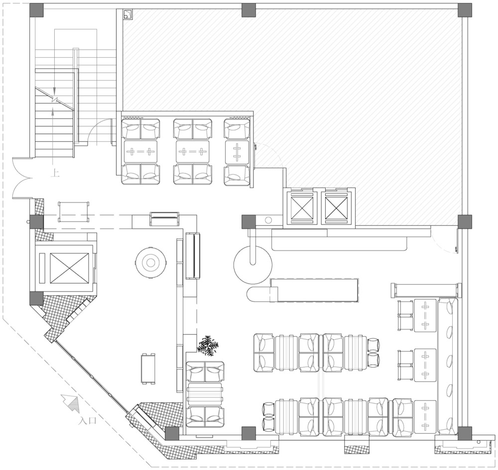
▽二层平面图© CeeSee此西设计

vsszan2081641611592320.jpg

▽三层平面图© CeeSee此西设计

vsszan2081641611592321.jpg
vsszan2081641611592322.jpg
vsszan2081641611592323.jpg
vsszan2081641611592324.jpg
vsszan2081641611592325.jpg
vsszan2081641611592326.jpg
vsszan2081641611592327.jpg
vsszan2081641611592328.jpg
vsszan2081641611592329.jpg
vsszan2081641611592330.jpg
vsszan2081641611592331.jpg
vsszan2081641611592332.jpg


项目名称:微小辛
项目类型:餐厅
设计方:CeeSee此西设计
联系邮箱:ceeseedesign@163.com
项目设计:CeeSee此西设计
完成年份:2026
设计团队:CeeSee此西设计
项目地址:商丘市
建筑面积:690㎡
摄影版权:拿捏空间

AI文本分析中……
AI色彩命名中……
syhgdesign2026-4-17 00:30:13
感谢楼主辛苦分享
您需要登录后才可以回帖 登录 | 注册序赞号

快速回复 返回顶部 返回列表