ET质感砖陶瓷工坊 | 丸斯设计 | 2024 | 中国广东
vsszan208170171328291.png



丸斯设计以“瓷砖工坊”为概念,为ET质感砖和YINJI tile design 在佛山设计了一间藏在老房子里的瓷砖展厅。


vsszan208170171328292.png
vsszan208170171328293.png
vsszan208170171328294.png



在这个信息过载、图像泛滥的时代,佛山从不缺另一个常规的瓷砖展厅。ET质感砖和YINJI tile design创始人潘总选择了反其道而行之:把新概念展厅藏在一座老厂房的三楼。通过设置一道门槛,使客人获得一种私密的不被稀释的体验感。这不是故作神秘,而是对瓷砖本质的归还。老房子是最适合的容器,它藏在城市的褶皱里,藏在更新的浪潮之外。


vsszan208170171328295.png
vsszan208170171328296.png



电梯门缓缓打开,入口门厅只有靠近墙面的一张张长凳和一盏盏微弱的壁灯。瓷砖的登场需要前奏和对比,需要一段关于“之前”的记忆。所以地面没有被瓷砖覆盖。在瓷砖工坊的概念里,压制是第一道蜕变。  


vsszan208170171328297.png
vsszan208170171328298.png
vsszan208170171328299.png
vsszan2081701713282910.png



首次踏勘现场发现西向窗外有两棵十米左右的大树,设计师通过三个悬挑窗户的设置,产生了能与自然环境相互渗透,彼此对话的关系。这种对比让老建筑产生了独特的气质。


vsszan2081701713282911.png
vsszan2081701713282912.png
vsszan2081701713282913.png
vsszan2081701713282914.png
vsszan2081701713282915.png
vsszan2081701713282916.png
vsszan2081701713282917.png



随着时间发展,品牌方从聚焦于单一品类发展为综合性的瓷砖产品体系。随着产品的品类增多,这需要设计师通过“量身定制”的方式,为品牌终端提供一个可参考的产品展陈新范式。


vsszan2081701713282918.png
vsszan2081701713282919.png
vsszan2081701713282920.png
vsszan2081701713282921.png
vsszan2081701713282922.png
vsszan2081701713282923.png



每一件道具都从要展示的瓷砖本身出发——他的质感、规格、工艺甚至是隐喻,然后找一个恰当的、不可替代的形式来展现。


vsszan2081701713282924.png
vsszan2081701713282925.png
vsszan2081701713282926.png
vsszan2081701713282927.png



2026年1月底瓷砖工坊开幕,以“自然主义,五感共栖”为主题做了首次展览。试图除了传统的视觉、触觉外,能调动观众的多重感官体验,邀请观众感知空间形态、功能设计和多重质感的微妙互动,思考这些元素如何共同构筑了生活场景和室内环境。


vsszan2081701713282928.png
vsszan2081701713282929.png
vsszan2081701713282930.png
vsszan2081701713282931.png
vsszan2081701713282932.png
vsszan2081701713282933.png
vsszan2081701713282934.png



瓷砖工坊的深处,有两个房间。他们紧挨着却不互通,直到旋转柜的出现。一个房间是明亮的,光从头顶的磨砂玻璃倾泻而下,均匀,柔和,没有阴影。另一个房间是暗的,只有几个金属框架的柔光吊灯。明与暗直接并置在一起,旋转柜即是墙的一部分,也是门的变体。既分隔,也连接。


vsszan2081701713282935.png
vsszan2081701713282936.png
vsszan2081701713282937.png
vsszan2081701713282938.png
vsszan2081701713282939.png

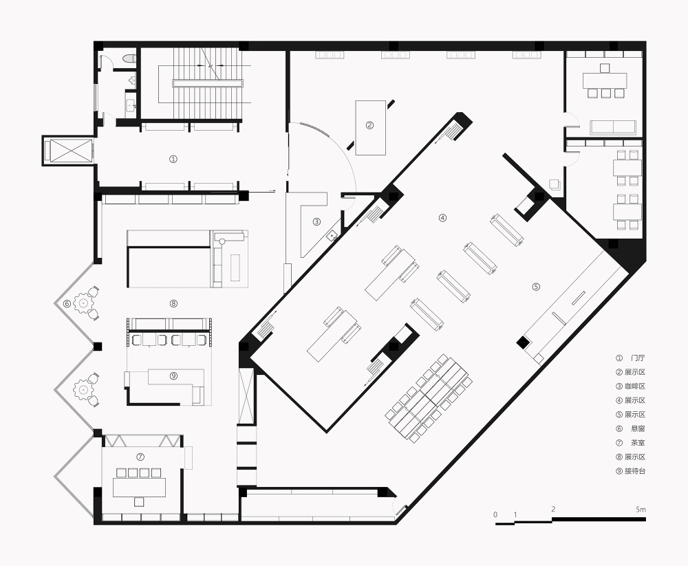
△平面图



项目名称丨ET质感砖陶瓷工坊(佛山)
项目面积丨600㎡
设计时间丨2024年12月
设计公司丨上海丸斯设计咨询有限公司(O.D.A.)
主创设计丨李明帅
设计团队丨陈少芬,蒋雪琴,刘辉
平面设计丨avon
家具道具丨上海傲冠家具制造有限公司
施工团队丨佛山市集慧装饰工程有限公司
灯光设计丨无锡九几照明设计有限公司
花艺设计丨广东绝色繁花文化发展有限公司
项目摄影丨吕晓斌


vsszan2081701713282940.png


ODA丸斯是一家跨领域设计咨询机构,为品牌提供多元服务与创新体验。业务领域涵盖建筑、室内设计、品牌咨询、产品设计等。丸斯将策略、设计、创新与实践经验相结合,助力于众多国际品牌和本土品牌。


    • 转自:内外之间
    • 图片©丸斯设计
    • 编辑:序赞网
    • 阅读原文
    AI文本分析中……
    AI色彩命名中……

    暂时没有评论,你回一个呗!~

    您需要登录后才可以回帖 登录 | 注册序赞号

    快速回复 返回顶部 返回列表