僧伽佛院 | Spaces and Design | 2026 | 印度



位于加尔各答市中心的僧伽佛院,由加尔各答的Spaces and Design设计事务所、在首席建筑师普贾·比哈尼的领导下设计完成,是一座意义深远的耆那教社区生活中心。该建筑为Acharya Mahapragya Mahashraman教育与研究基金会(AMMERF)而设计,这座18,000平方英尺的建筑将建筑本身诠释为一种归属感、记忆与精神延续性的表达。根植于耆那教的非暴力、简朴与知识原则,该设计超越了纯粹的功能性,将每一处空间处理都转化为一种诗意的体验。


▽项目概览© rohit_think

vsszan208182171428371.jpg
vsszan208182171428372.jpg



旅程从接待处与大厅开始,雕琢出的静谧感定义了这里的氛围。设计灵感源自耆那教图像学,柔和的曲线营造出一种神圣感,却不显浮夸。继续前行,宴会厅通过质朴的材质和温暖的簇状照明(让人联想到冥想用的念珠)散发出宁静之感,唤起的是静谧安详,而非宏大场面。


▽接待台© rohit_think

vsszan208182171428373.jpg
vsszan208182171428374.jpg

▽大厅© rohit_think

vsszan208182171428375.jpg
vsszan208182171428376.jpg

▽双层休息区© rohit_think

vsszan208182171428377.jpg
vsszan208182171428378.jpg
vsszan208182171428379.jpg

▽二层区域© rohit_think

vsszan2081821714283710.jpg
vsszan2081821714283711.jpg



位于建筑核心的餐厅,被构想为一首献给艺术与记忆的抒情诗。带凹槽的木质面板和壁画肖像,颂扬着印度古典音乐大师的传奇,书法图案悬浮在点缀着金色球体的中央自助餐台之上。这里不仅是一个用餐区,更成为一个融合了怀旧、艺术与感官愉悦的沉浸式体验空间。


▽走廊© rohit_think

vsszan2081821714283712.jpg
vsszan2081821714283713.jpg

▽餐厅室内概览© rohit_think

vsszan2081821714283714.jpg
vsszan2081821714283715.jpg
vsszan2081821714283716.jpg

▽木质面板和壁画肖像© rohit_think

vsszan2081821714283717.jpg
vsszan2081821714283718.jpg



拾级而上,自助餐厅化身为一个阳光明媚的静修之所。其拱形柱廊和现代枝形吊灯从寺庙建筑中汲取灵感,同时促进了现代形式的社交聚会。这里成为一个对话与反思的空间,建筑与社区在此和谐相遇。


▽自助吧台© rohit_think

vsszan2081821714283719.jpg

▽室内打光© rohit_think

vsszan2081821714283720.jpg
vsszan2081821714283721.jpg



僧伽佛院的每一个角落都体现了文化的延续性,传统经由现代视角重新诠释,装饰被提炼至本质。设计意图清晰明了:欢迎访客进入这些超越时间的环境,它们散发着平和、和谐与集体的团结感。宴会厅通过精炼的细节彰显耆那教价值观,自助餐厅通过可持续的设计表达温暖,餐厅则在音乐与建筑之间架起一座无缝对话的桥梁。它们共同编织出一个鲜活的叙事,在这里,遗产与现代**汇融合,共同塑造未来。


▽廊柱© rohit_think

vsszan2081821714283722.jpg

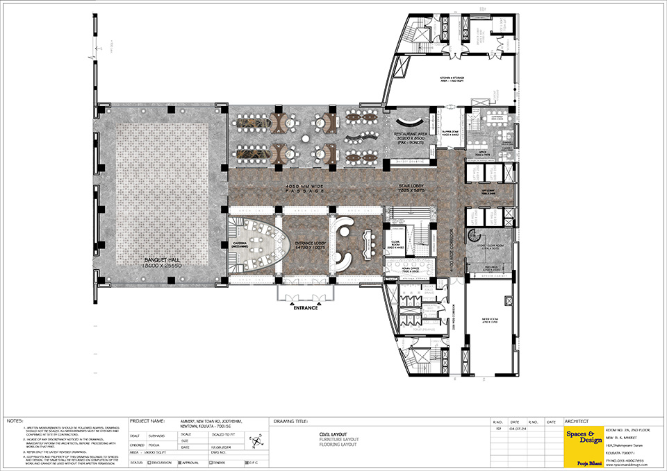
▽平面图© Spaces and Design

vsszan2081821714283723.jpg


Fact file
Project Name: Sangha Bhawan
Location: Kolkata
Size: 18000 sq ft
Typology: Hospitality
Design firm: Spaces and Design
Photographer credits: rohit_think

AI文本分析中……
AI色彩命名中……
syhgdesign2026-4-19 01:42:19
感谢楼主辛苦分享
您需要登录后才可以回帖 登录 | 注册序赞号

快速回复 返回顶部 返回列表