Blueriot Deveron Workspace | CISARSTUDIO | 2024 | 捷克



Blueriot项目是对德弗伦办公室的全面翻新,其建筑本身是一座建于 90 年代的后现代主义建筑。设计要求是创造一个将功能性工作空间、氛围感与强有力的概念融为一体的场所。设计灵感源自客户个人的两大爱好——航空与潜水——并将其转化为一个在海洋深处与广阔天空之间寻求平衡的内部空间。光线、材质与场景设计放大了空间的能量,也为日常工作注入了灵感。


▽项目概览© Alex Shoots Buildings

vsszan208206190923221.jpg
vsszan208206190923222.jpg



原有的内部空间因石膏板隔断和格子吊顶而显得沉重压抑,且缺乏自然采光和通透感。此次翻新揭示了建筑原有的构造形态——一个巨大的整体拱顶和先前被隐藏起来的空间体量,如今这些元素定义了空间的性格。


▽前台© Alex Shoots Buildings

vsszan208206190923223.jpg

▽接待区© Alex Shoots Buildings

vsszan208206190923224.jpg



场景化设计与占据主导地位的拱顶和谐相融,这个拱顶令人联想到倒置的船体。在其下方,悬浮着一组光影与声学装置——“鲸翼”——其灵感源自鲸鱼的骨架和布莱里奥飞机的轻盈感。海洋与天空、深邃与飞翔,在自然、科技与人类创造力的无缝融合中交汇。该装置引入了动感、活力与柔和的自然光,而东侧的玻璃幕墙则最大限度地引入光线,并将室内空间与全景城市景观连接起来。


▽剖透视© CISARSTUDIO

vsszan208206190923225.jpg

▽悬浮的“鲸翼”© Alex Shoots Buildings

vsszan208206190923226.jpg
vsszan208206190923227.jpg



材料和色彩的运用体现了航空与深海的美学:铝材与不锈钢的细节、唤起传奇战斗机飞行员“红男爵”的珊瑚红、深邃的靛蓝,这些都与柔和的巴拉索尔透光天花及带有彩色釉面的裸露混凝土形成对比。反射表面与场景化灯光在视觉上扩展了空间。原有的立柱被攀缘植物覆盖,为室内引入绿意,完成了科技与自然之间的和谐连接。


▽材料和色彩的运用© Alex Shoots Buildings

vsszan208206190923228.jpg
vsszan208206190923229.jpg

▽办公区© Alex Shoots Buildings

vsszan2082061909232210.jpg
vsszan2082061909232211.jpg

▽会议室© Alex Shoots Buildings

vsszan2082061909232212.jpg



该项目的一个关键挑战是实现最优的声学与光照舒适度。主要照明装置——“鲸翼”——跨度达16米,由铝材和3D打印构件制成,表面覆盖巴拉索尔膜,其底面采用微孔设计以增强吸音效果并实现均匀的透光。该装置还优化了空气流通。开放式区域和会议室采用了巴拉索尔 Clim 系统——一种集成了制冷与通风功能的张拉双层膜——确保均匀的热舒适度,同时保持简洁的建筑表达。


▽茶水区© Alex Shoots Buildings

vsszan2082061909232213.jpg
vsszan2082061909232214.jpg

▽公共区© Alex Shoots Buildings

vsszan2082061909232215.jpg

▽洗手间© Alex Shoots Buildings

vsszan2082061909232216.jpg



因此,Blueriot项目将海洋与天空的美学与高科技建筑、创新技术以及能够激发创造力和日常工作的鼓舞人心的氛围融为一体。


▽夜览© Alex Shoots Buildings

vsszan2082061909232217.jpg

▽细部© Alex Shoots Buildings

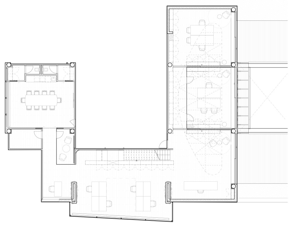
▽首层平面图© CISARSTUDIO

vsszan2082061909232218.jpg

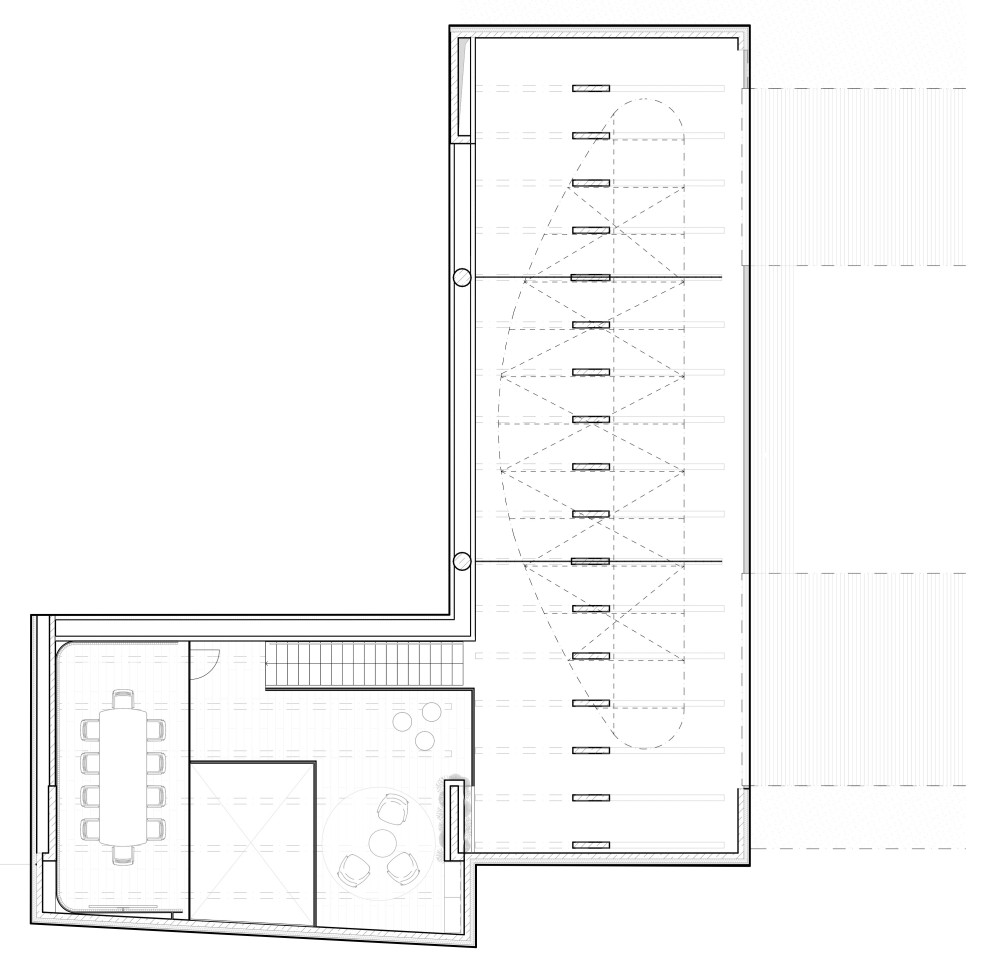
▽二层平面图© CISARSTUDIO

vsszan2082061909232219.jpg
vsszan2082061909232220.jpg
vsszan2082061909232221.jpg
vsszan2082061909232222.jpg


Studio CISARSTUDIO
Author Tomáš Císař
Contact E-mail tomas@cisarstudio.com
Website www.cisarstudio.com
Social media www.instagram.com/cisarstudio
Studio address nám. Winstona Churchilla 1800/2, 130 00 Prague 3, Czech Republic
Project location K Hájům 1233/2, 155 00 Prague
Project country Czech Republic
Project year 2023
Completion year 2024
Gross floor area 350 m²
Usable floor area 340 m²
Cost 750 000 €
Client Deveron
Client’s e-mail koloc@kolo.cz
Photographer Alex Shoots Buildings, www.alexshootsbuildings.com, alex@alexshootsbuildings.com
Collaborators and suppliers Ceiling: Barrisol
Glass partitions: Verti
Furniture and acoustic walls: Cre8
Alucobond cladding: Feal
Built-in furniture: Fs Interier
Lighting supplier: Teto Lightning
Wall paintings: Ganbold Dalajn
Electric fitting supplier: Monobrand

AI文本分析中……
AI色彩命名中……
95qabc2026-4-21 20:23:41
谢谢分享!!!谢谢分享!
您需要登录后才可以回帖 登录 | 注册序赞号

快速回复 返回顶部 返回列表