格物智能汽车总部 | 巢羽设计 | 2025 | 中国江苏

▽鸟瞰图©董博儒

vsszan208354271542521.jpg
vsszan208354271542522.jpg

▽二层挑空区域©董博儒

vsszan208354271542523.jpg



1.缘起
「格物智能汽车总部」位于江苏省常熟市的乡村麦田间,让自然与现代建筑形成对话,苏沪一小时交通圈的区位红利,让这片乡野之地成为连接两大都市资源的关键节点,既便于吸纳苏沪两地的产业人才和技术资源,实现智能汽车研发的高效协同;又为乡村文旅打开通道,让访客便捷抵达,在自然中感受产业与自然的交融力量。


▽区位图©巢羽设计事务所

vsszan208354271542524.jpg

▽项目鸟瞰©董博儒

vsszan208354271542525.jpg



业主起初希望做一些类集装的组合来作为一个企业的办公和及接待,作为一个新能源汽车测试的,极致控制预算的基础上同时希望企业形象有些模块化的展示。再此基础上我们考虑将把每个功能区都作为一个标准的模块。


▽道路视角©董博儒

vsszan208354271542526.jpg



2.场地回响
考察了项目周边的村落和场地,我们希望项目再满足业主对建筑表现呈当代性的需求的同时,在空间的感知及路径上能够回应项目场地周边的乡村肌理。有巷道,有转角,有坡路等乡村里的体验。


▽概念生成©巢羽设计事务所

vsszan208354271542527.gif

▽入口视角©董博儒

vsszan208354271542528.gif



整个建筑外观以简洁的轮廓与利落的线条,在开阔的麦田中形成清晰的视觉焦点,巧妙地融入乡村自然肌理。无论是晨雾里还是夕阳间,这座建筑让智能汽车不再是抽象概念,而是可感知的产业景观。这种乡野自然和产业场景的复合属性,为周边注入科技与田园的独特体验,激活乡村价值。


▽分析图©巢羽设计事务所

vsszan208354271542529.jpg

▽入口夜景©董博儒

vsszan2083542715425210.jpg



综合考虑周边属性,将建筑体块通过错落的盒子组合,局部的挑出与退台,既打破外观的单调感,又为室内留出视觉边界。


▽项目模型©巢羽设计事务所

vsszan2083542715425211.jpg

▽侧立面©董博儒

vsszan2083542715425212.jpg



3.悬浮的灯塔
建筑外观以大面积玻璃幕墙、清水混凝土与穿孔板铝板共同组合。混凝土原生的灰色调与粗糙肌理支撑起建筑的空间骨架,为光线营造提供稳定载体;玻璃幕墙通透,仿佛为建筑加入自然滤镜,朝阳时将麦田的翠绿与天光引入,夕阳时则反射暖橙光影,让建筑随自然时序充满变化。


▽侧立面©董博儒

vsszan2083542715425213.jpg

▽二层架空区域©董博儒

vsszan2083542715425214.jpg

▽二层架空区域©董博儒

vsszan2083542715425215.jpg



大小不一的建筑盒子错落嵌套、有序组合,自然生成多元公共空间——露台,这里是整栋建筑视觉感最丰富的地方,无遮挡直面整片麦田,春风拂过,麦浪清香扑面而来;夕阳西下,暖光布满露台。置身于此,真正有一种身处建筑、心归乡野的深度体验感。


▽东立面©董博儒

vsszan2083542715425216.jpg

▽架空二层©董博儒

vsszan2083542715425217.jpg
vsszan2083542715425218.jpg

▽屋顶露台©董博儒

vsszan2083542715425219.jpg



3.双层皮肤
内层落地玻璃窗,外层穿孔铝板幕墙。双层的建筑表皮,满足了业主对场地可控观察的诉求,又很好的得控制的了夏天玻璃幕墙带来的炎热。穿孔板铝板与建筑交相辉映,形成动态光影,白天,阳光透过穿孔投射出移动的光斑,落在清水混凝土地面与墙面,仿若麦田中的星光;夜晚,室内灯光透过穿孔向外发散,让建筑内观成为乡村夜景的一部分,既提升建筑辨识度,又为乡村文旅增添夜间景观亮点。


▽三层隐藏窗©董博儒

vsszan2083542715425220.jpg

▽三层隐藏窗©董博儒

vsszan2083542715425221.jpg

▽主入口©董博儒

vsszan2083542715425222.jpg



建筑一楼的咖啡馆,以橙色为主色调,既呼应朝阳与夕阳下的自然光影,又与麦田的绿色形成视觉对比,成为建筑内部的情绪亮点,为整个建筑注入温暖活力。


▽室内咖啡吧©董博儒

vsszan2083542715425223.jpg

▽室内咖啡吧©董博儒

vsszan2083542715425224.jpg



4.成长中的建筑
清水混凝土浇筑的通道,以平缓坡度缓慢延展。步入其中,随着坡度的升高,视觉的尺度也随之变化,仿佛在建筑中展开一场趣味探寻,外界的纷扰情绪随脚步渐缓而悄然放下,身心逐渐融入建筑与乡野共生的静谧氛围里。


▽入口雨棚©董博儒

vsszan2083542715425225.jpg

▽户外坡道©董博儒

vsszan2083542715425226.jpg

▽户外坡道©董博儒

vsszan2083542715425227.jpg



建筑为未来可能增加的功能预留了结构框架,企业在成长,建筑也跟着企业的步伐再逐步完生长。


▽预留结构©董博儒

vsszan2083542715425228.jpg



盒子模块打造的空间骨架,勾勒出清晰脉络,纵横交错的墙体与光线相互作用,形成富有秩序的规则感,恰好契合智能汽车总部所需的严谨、高效属性,让空间形态与产业特质自然相融。


▽室内活动区©董博儒

vsszan2083542715425229.jpg



内庭天井通过半透明玻璃,将外部天光与内部空间串联,天井底部的绿植,让内部空间兼具自然生机,呼应乡村有庭有院的感受。我们希望通过在地性设计另一种的尝试,当代建筑下的设计是否也能对场地及周边有所回应。


▽内庭院©董博儒

vsszan2083542715425230.jpg



田野间的苏州格物智能汽车总部,不仅让建筑成为契合产业属性的现代化表达,更以一种“润物细无声”的方式激活乡村潜力,推动乡村产业的转变。


▽田野间的汽车总部©董博儒

vsszan2083542715425231.jpg

▽周围乡村肌理©巢羽设计事务所

vsszan2083542715425232.jpg

▽模型©巢羽设计事务所

vsszan2083542715425233.jpg
vsszan2083542715425234.jpg

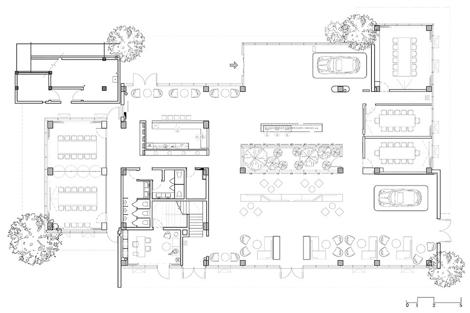
▽一层平面图©巢羽设计事务所

vsszan2083542715425235.jpg

▽二层平面图©巢羽设计事务所

vsszan2083542715425236.jpg

▽三层平面图©巢羽设计事务所

vsszan2083542715425237.jpg

▽立面图©巢羽设计事务所

vsszan2083542715425238.jpg
vsszan2083542715425239.jpg

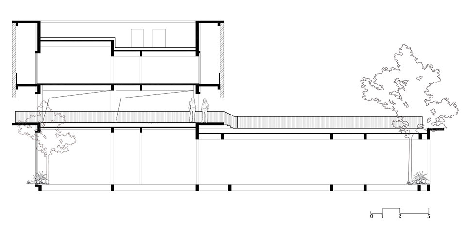
▽剖面图©巢羽设计事务所

vsszan2083542715425240.jpg
vsszan2083542715425241.jpg


项目名称|格物智能汽车总部
项目地址 | 江苏 苏州
项目面积|1200㎡
竣工时间|2025.11
建筑设计|巢羽设计事务所设计
主创|王星、梁飞
设计团队 | 薛佳凯、杨佳豪,程志涵
室内设计|巢羽设计事务所设计
张跃、王永波、程志涵、张啸天
文宣策划|EDG贰道杠传媒
空间摄影|董博儒

AI文本分析中……
AI色彩命名中……
syhgdesign2026-4-29 01:27:43
感谢楼主辛苦分享
陈Bn4e622026-4-29 08:05:09
感谢楼主的分享
95qabc2026-4-29 16:28:00

谢谢分享!!!谢谢分享!
您需要登录后才可以回帖 登录 | 注册序赞号

快速回复 返回顶部 返回列表