HW Studio:设计师自宅,缓如细水长流
vsszan208359280001031.png
©Gustavo Quiroz 一座房子的灵魂不在于墙壁,也不在于屋顶,而在于那种能够容纳一切的“空寂”,它让我们得以呼吸、行动、思考和生活,承载最本质的轻盈。这正是HW Studio设计Kehai House的初衷,作为建筑师本人的自宅,其理念核心并非某种具体的表达元素,而是给生活留白、专注于当下的思考。
vsszan208359280001032.png
vsszan208359280001033.png
vsszan208359280001034.png
vsszan208359280001035.png
©Gustavo Quiroz HW Studio由Rogelio Vallejo Bores于2015年创立于墨西哥的莫雷利亚,这个多学科的创作团队不仅擅长通过材料和光线塑造空间感知,也致力于从心理学的角度解析设计,使居住者与场地能够真正产生积极性的相互联系。Kehai House的主人正是团队内的专业心理学家Vera Sánchez Macouzet,因此,这个作品从设计师与实际使用者这两个不同主体的视角出发,将多年来的经验与理解融入了有限的空间之中。
vsszan208359280001036.png
△Vera Sánchez Macouzet 住宅建设的预算有限,其中许多决策与其说是出于美学考量,不如说是基于现实的选择。但抛开这种经济限制不谈,真正塑造空间美学的,是无常的日本禅宗与侘寂的思想——落花缺月各有其美,正因不完整、不完美,才有了超越表象的内在感悟。
vsszan208359280001037.png
vsszan208359280001038.png
vsszan208359280001039.png
vsszan2083592800010310.png
©Gustavo Quiroz 从外部望去,住宅就像一个静谧而封闭的方盒子,然而一但越过大门,白色与绿意交织的纯粹便会柔和地沁入感官。看似密不透风的围墙实则包容万象,静静地守护着来之不易的朴素与深邃,为生活其中的人们,提供了一处不受外界干扰、却又与万物相连的空间。
vsszan2083592800010311.png
vsszan2083592800010312.png
vsszan2083592800010313.png
vsszan2083592800010314.png
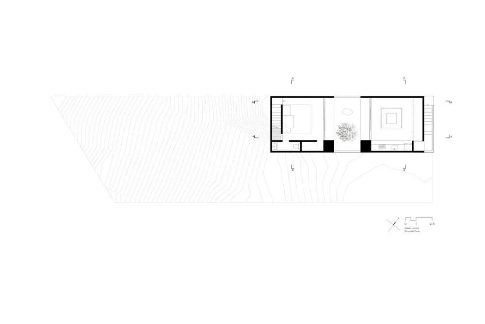
©Gustavo Quiroz 沿着入口处的楼梯向下进入内部,如同穿过一座无形的神社鸟居,意在放低精神姿态,以谦和的内心迎接生活。此外,这种做法还能减少基建费用,将经济化的设计策略与美学衔接。一层空间被中庭一分为二,利用和纸障子作为划分室内外的屏障,白昼不再匆匆介入内部,而是缓缓降落、沉淀,走进静谧的日常。
vsszan2083592800010315.png
vsszan2083592800010316.png
vsszan2083592800010317.png
©Gustavo Quiroz 中庭设计呼应了京都寺庙庭园的美学意象,通过几块精心排列的原石和铺地的砾石,展现超脱世俗的深邃隐约之美。庭园一侧,未经修饰的老木架起连接檐廊的通道,空间如同卫星般围绕着庭园运转,从而形成自身的内在节律,使得侘寂不再仅是一种哲学,更是可实践的生活艺术。
vsszan2083592800010318.png
vsszan2083592800010319.png
©Gustavo Quiroz 庭园两侧的空间氛围截然不同,其中一侧是挑高的餐厅与厨房,从天花板垂落的管道将日常烟火与围坐炉边的记忆一一收集,诠释了远在城市出现之前就已存在的生活哲学。庭园另一侧是一个可以沉思、冥想的多功能起居室,无论晴空万里还是阴雨绵绵,空间本身都鼓励人们在此停留,寻求与尘世的和解。
vsszan2083592800010320.png
vsszan2083592800010321.png
vsszan2083592800010322.png
vsszan2083592800010323.png
©Gustavo Quiroz 起居室上方的卧室是整个序列的终点,简约而私密的氛围做了大量留白,仅有一扇圆形窗户与庭园相连,通过内向性的表达使空间退隐。建筑师没有追求刻意的圆满,而是在有限的预算成本下,用朴素的禅意消解喧嚣,拥抱安放身心的诗意归处。
vsszan2083592800010324.png
©Gustavo Quiroz
vsszan2083592800010325.png
vsszan2083592800010326.png
vsszan2083592800010327.png
vsszan2083592800010328.png
vsszan2083592800010329.png
vsszan2083592800010330.png
vsszan2083592800010331.png
左右滑动查看更多图片 策划:NeiWai编辑: YouChuan校对:ZiYu排版:NingBai
vsszan2083592800010332.png
预览时标签不可点
    • 转自:内外之间
    • 图片©内外之间
    • 编辑:序赞网
    • 阅读原文
    AI文本分析中……
    AI色彩命名中……
    95qabc2026-4-29 16:21:07

    谢谢分享!!!谢谢分享!
    您需要登录后才可以回帖 登录 | 注册序赞号

    快速回复 返回顶部 返回列表