Room 1101 | Kouichi Kimura Architects | 2025 | 日本



本次改造的目的,是将一处城市公寓重新激活,使其成为一处第二居所式的空间。回应业主提出的“在多功能空间中体验非日常生活”的需求,设计从最初阶段便将重点放在开口部的处理上。


▽入口© Norihito Yamauchi

vsszan208398290832111.jpg



该公寓单元位于建筑的第11层,即顶层空间。拥有约5米高挑空的室内空间中,随机布置着多种形态的大尺度窗洞。为控制通过这些窗洞复杂进入的自然光,设计引入了墙体与磨砂玻璃屏风,为空间增添了新的光影体验。


▽室内空间概览© Norihito Yamauchi

vsszan208398290832112.jpg
vsszan208398290832113.jpg
vsszan208398290832114.jpg

▽高差过渡空间© Norihito Yamauchi

vsszan208398290832115.jpg
vsszan208398290832116.jpg



这些距离原墙体约40厘米设置的屏风,使窗洞的存在变得模糊,通过接收光线而自身转化为“光之墙”。夜晚,来自间接照明的柔和漫射光为室内空间带来丰富的色彩层次。同时,设置在分隔屏风的悬挂墙体上的镜面,反射出连续的框景,营造出空间的延展感与深度。


▽起居区望向光之墙© Norihito Yamauchi

vsszan208398290832117.jpg

▽光之墙© Norihito Yamauchi

vsszan208398290832118.jpg
vsszan208398290832119.jpg

▽光线变化下的光之墙© Norihito Yamauchi

vsszan2083982908321110.jpg
vsszan2083982908321111.jpg

▽光之墙一角© Norihito Yamauchi

vsszan2083982908321112.jpg



该单间公寓的平面布局中引入了辅助动线,使人可由入口直接通往湿区。空间通过地面高差与材料转换被分隔。在入口门厅中,于玻璃砖墙前设置了一道具有进深的墙体,嵌入其中的磨砂玻璃进一步柔化了光线。透过磨砂玻璃隐约显现的玻璃砖网格,为空间带来了丰富的层次变化。在磨砂玻璃前,陈列着来自业主自有时尚品牌的一件服装作品,将其作为艺术品展示。光线强化了该作品的轮廓。


▽门厅望向服装展示© Norihito Yamauchi

vsszan2083982908321113.jpg

▽磨砂玻璃屏风与服装展示© Norihito Yamauchi

vsszan2083982908321114.jpg

▽服装展示近景© Norihito Yamauchi

vsszan2083982908321115.jpg



部分天花采用清水混凝土外露处理,以确保层高并赋予空间个性。沿墙设置的沙发座椅可供多人休憩,营造出开放而舒展的氛围。克制的色彩体系、高品质材料与粗粝的混凝土质感共同营造出一种现代而略带奢华的空间氛围。对于生活节奏繁忙的业主而言,这一在不断变化的光影中安静自处的空间,成为一处“替代性的居所”,为日常生活提供重置与缓冲。


▽沙发座与休憩空间开灯/关灯© Norihito Yamauchi

vsszan2083982908321116.gif

▽洗手间© Norihito Yamauchi

vsszan2083982908321117.jpg

▽细部© Norihito Yamauchi

vsszan2083982908321118.jpg

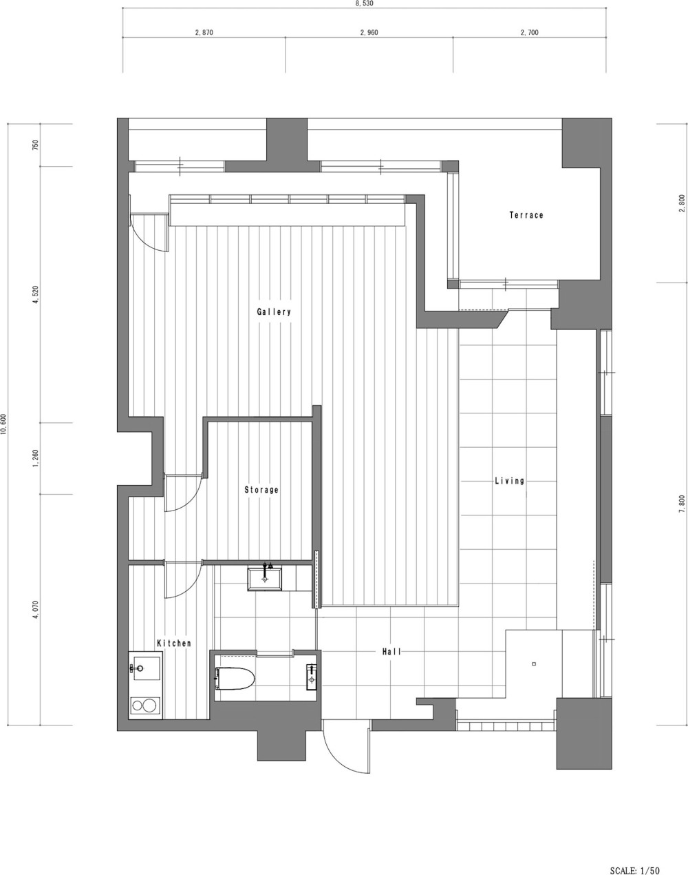
▽平面图© FORM/Kouichi Kimura Architects

vsszan2083982908321119.jpg
vsszan2083982908321120.jpg
vsszan2083982908321121.jpg


Architects: FORM/Kouichi Kimura Architects
Location: Osaka, Japan
Client: Private
Construction Year: 2025
Floor area: 77,73m2
Photographs: Norihito Yamauchi

AI文本分析中……
AI色彩命名中……
95qabc2026-5-8 19:26:10
谢谢分享!!!谢谢分享!
您需要登录后才可以回帖 登录 | 注册序赞号

快速回复 返回顶部 返回列表