The House of the Green Pond | aceboXalonso studio | 2025 | 西班牙
vsszan123503171945581.jpg
vsszan123503171945582.jpg



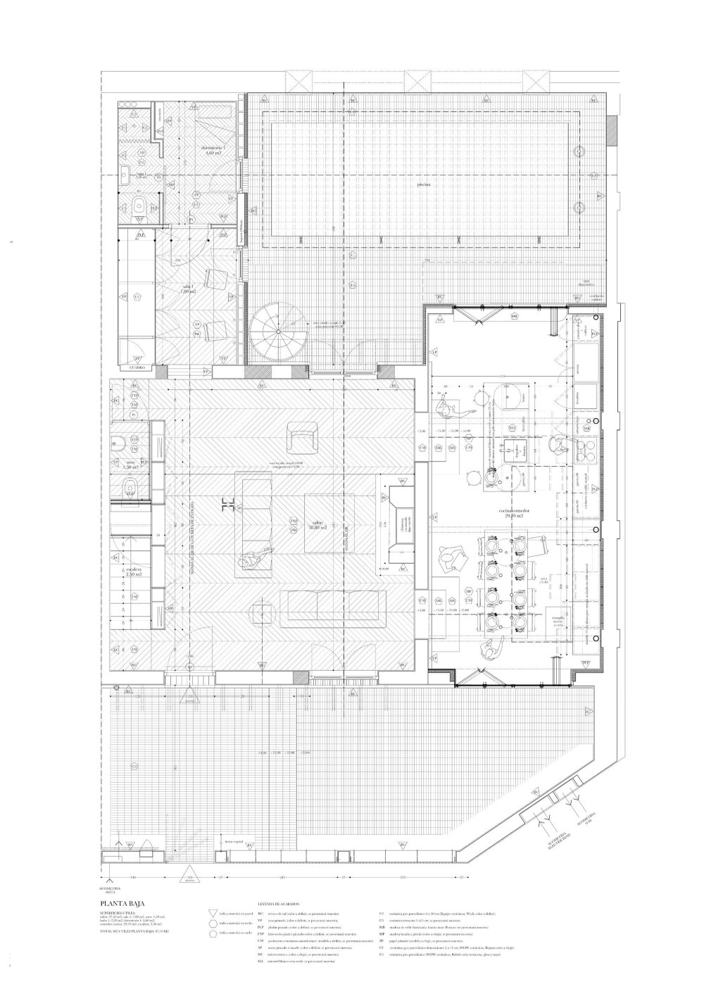
In 1971, the then-owners of a row-end single-family home located in one of the historical neighborhoods of Madrid incorporated into it one of the iconic objects of the imagery of developmental Spain: the blue pool. For their private use, they decided to build a pool, sacrificing nearly all of the twenty-eight square meters that made up the backyard of their home, which until then had been a place for children's revelry and a respite from domestic tasks. It is possible that the decision was made simply in response to changing circumstances: with the children grown and the housekeeper working outside the home, the yard fell into disuse; or perhaps, it was the pool, as a fantasy imported from postcards of sun and tourism, that managed to carve out a place as a desire among other domestic needs.


vsszan123503171945583.jpg
vsszan123503171945584.jpg
vsszan123503171945585.jpg
vsszan123503171945586.jpg
vsszan123503171945587.jpg
vsszan123503171945588.jpg
vsszan123503171945589.jpg
vsszan1235031719455810.jpg
vsszan1235031719455811.jpg
vsszan1235031719455812.jpg
vsszan1235031719455813.jpg
vsszan1235031719455814.jpg
vsszan1235031719455815.jpg
vsszan1235031719455816.jpg
vsszan1235031719455817.jpg
vsszan1235031719455818.jpg
vsszan1235031719455819.jpg
vsszan1235031719455820.jpg
vsszan1235031719455821.jpg
vsszan1235031719455822.jpg
vsszan1235031719455823.jpg
vsszan1235031719455824.jpg
vsszan1235031719455825.jpg
vsszan1235031719455826.jpg
vsszan1235031719455827.jpg
vsszan1235031719455828.jpg
vsszan1235031719455829.jpg
  • 项目设计:aceboXalonso studio
  • 项目年份:2025
  • 首席建筑师:Victoria Acebo, Ángel Alonso
  • Category: Houses, Renovation
  • Quantity Surveyors: Javier Gonzalez, Javier Mach
  • 建筑公司: Fernando Roca. Buril estudio
  • 项目成市: Madrid
  • 项目国家: Spain
    • 转载自:Archdaily
    • 设计师:aceboXalonso studio
    • 图片©aceboXalonso studio
    • 语言:英语
    • 编辑:序赞网
    • 阅读原文
    AI文本分析中……
    AI色彩命名中……
    syhgdesign2026-4-18 01:32:22
    感谢楼主辛苦分享
    您需要登录后才可以回帖 登录 | 注册序赞号

    快速回复 返回顶部 返回列表